Thiết kế shop mẹ và bé, Thiết kế nội thất shop mẹ và bé, Thiết kế shop, Thiết kế cửa hàng mẹ và bé, Thiết kế cửa tiệm kinh doanh mẹ và bé
Gia đình anh Trung, chị Linh đã có một thời gian kinh doanh các mặt hàng dành cho mẹ và bé tại quê nhà, nhưng với sự thay đổi hành vi, tư duy mua bán hàng của người tiêu dùng, cùng sự cạnh tranh giữa nhiều thương hiệu lớn như hiện nay đã thôi thúc chủ đầu tư phải có chiến lược, thay đổi chiều hướng kinh doanh.

Thực tế, một diện mạo kém chuyên nghiệp không chỉ làm giảm sức hút với khách hàng mà còn ảnh hưởng rất lớn đến hiệu suất kinh doanh của chủ đầu tư.
Nhìn vào hiện trạng mặt bằng có thể thấy cách bài trí không gian chưa khoa học còn khiến cửa tiệm lộ ra nhiều khuyết điểm, chưa có sự gọn gàng, ngăn nắp, không gian trưng bày mặt hàng bị mất đi tính thẩm mỹ. Chính những điều này đã thôi thúc gia đình anh Trung tìm đến PenViet để được tư vấn về mẫu thiết kế shop mẹ và bé ấn tượng, tạo sức hút với khách hàng.

Biển hiệu quả của quán không có sự nổi bật và kém thu hút
Sau khi thực hiện khảo sát mặt bằng và lắng nghe ý kiến của chủ đầu tư, các kiến trúc sư của PenViet đã tư vấn cho gia đình anh Trung lựa chọn phong cách thiết kế hiện đại, xây dựng hình ảnh thương hiệu chuyên nghiệp cho shop mẹ và bé. Chúng tôi sử dụng gam màu trắng kết hợp với màu kem, nâu sữa tạo điểm nhấn cho họa tiết trang trí, bố trí nội thất, quầy kệ khoa học để mang đến công năng trong quá trình sử dụng, góp phần hoàn thiện giải pháp không gian cho dự án thiet ke shop mẹ và bé 4BéBé.
Biển hiệu cũ của quán đã có dấu hiệu xuống cấp và không còn phù hợp với phong cách thiết kế mà chủ đầu tư muốn hướng đến, vì vậy chúng tôi đã tư vấn cho gia đình anh Trung tháo dỡ phần biển cũ và thay thế với biển quảng cáo lớn kết hợp với Alu giật cấp với các thanh lam gỗ viền Led làm nổi bật hình ảnh thương hiệu và thông tin của cửa tiệm.

Mặt tiền được thiết kế với kiểu dáng thanh lịch, cuốn hút
Nhằm mang đến tính nhất quán trong mẫu thiết kế shop mẹ và bé, chúng tôi cũng tiến hành ốp 2 bên cột biển hiệu với màu nâu kem tinh tế, nhẹ nhàng.

Lối thiết kế mở tạo không gian thoáng đãng, trong trẻo
Khung cửa kính cường lực tạo không gian mở giúp cửa tiệm đón được nguồn ánh sáng tự nhiên mang đến một không gian thoáng đãng, rộng rãi, hiện đại.
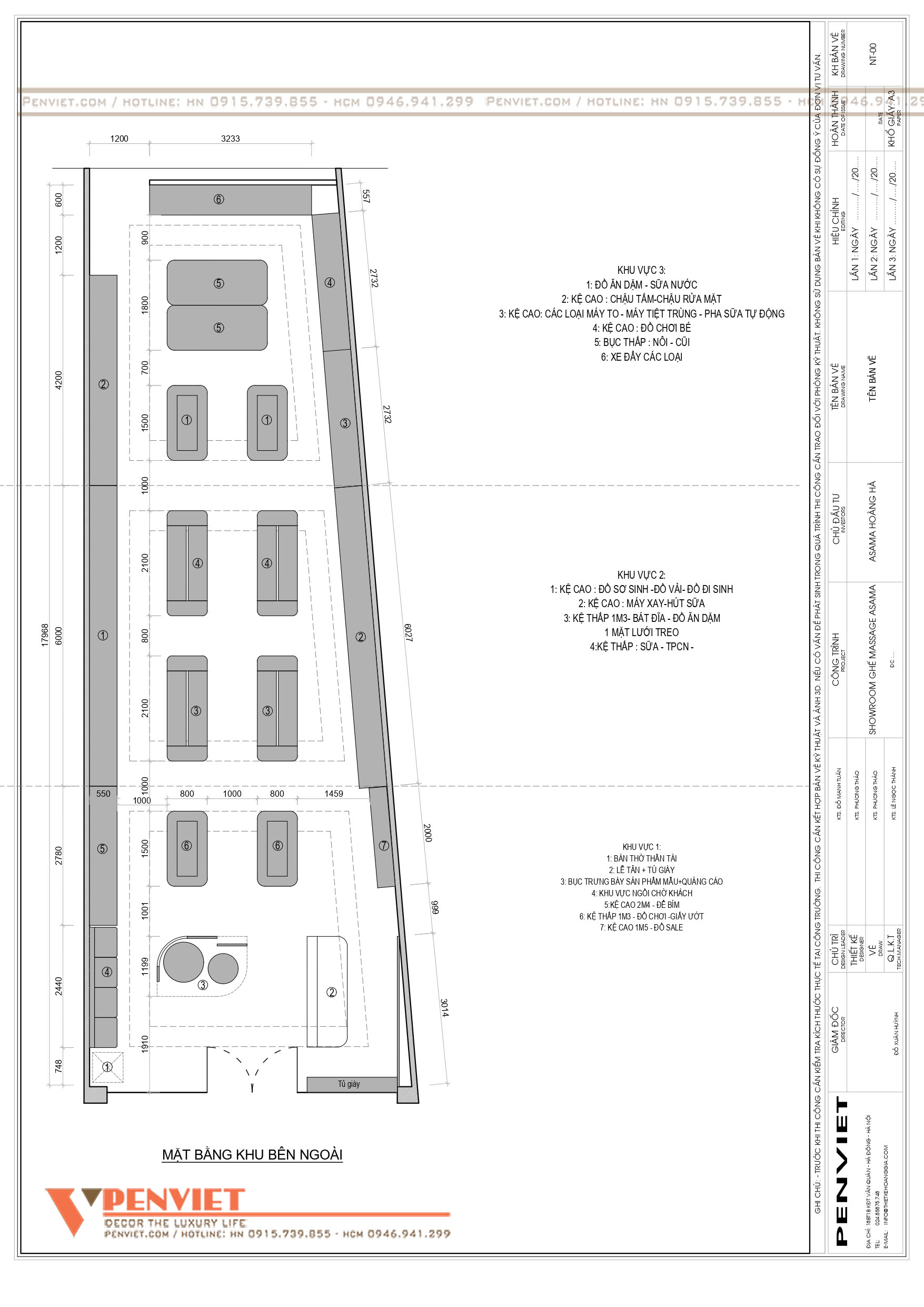
Dự án shop mẹ và bé 4BéBé của gia đình anh Trung được chia làm 2 phân khu chính, tùy thuộc vào đặc tính của không gian và đặc trưng trưng bày hàng hóa mà các kiến trúc sư của PenViet đưa ra những giải pháp thiết kế độc đáo vừa tạo công năng trong quá trình sử dụng, vừa mang đến tính thẩm mỹ cho toàn bộ không gian.
Mặt bằng hiện trạng của cửa tiệm được phân chia rõ ràng theo các khu vực trưng bày hàng hóa.
Nhằm tận dụng triệt để những ưu thế về diện tích, chúng tôi setup 2 kệ tủ áp tường, các kệ hàng được setup khoa học, tạo lối đi thông thoáng trong cửa tiệm.

Bản vẽ bố trí mặt bằng khu bên ngoài shop mẹ và bé
Ngay khi bước vào cửa tiệm, khách hàng sẽ cảm nhận được sự chuyên nghiệp, trong trẻo trong mẫu thiết kế shop mẹ và bé. Lối setup nội thất khoa học, trang trí tinh tế với hình ảnh ngôi sao, mặt trăng, hình bướm trắng thả nhẹ nhàng khiến cho không gian shop càng trở nên mơ mộng và lôi cuốn.

Không gian trang hoàng giúp khách hàng cảm nhận được sự chuyên nghiệp
Mẫu quầy thu ngân thiết kế với kiểu dáng đơn giản được bố trí ngay khu vực gần cửa chính giúp khách hàng luôn được chào đón nồng nhiệt, tiếp đón tận tình.
Kệ hàng phía trước quầy thu ngân vừa giúp gia tăng diện tích trưng bày, vừa thúc đẩy nhu cầu mua sắm khi khách hàng chờ thanh toán, từ đó gia tăng doanh số lợi nhuận.

Hình ảnh ngọt ngào, lôi cuốn được thể hiện ngay khu vực cửa tiệm
Phía sau quầy thu ngân, PenViet khéo léo thiết kế bộ nhận diện thương hiệu và bộ chữ bằng Mica phát sáng mang đến tính nhất quán trong phong cách thiết kế shop mẹ và bé.

Setup nội thất khoa học tạo sự thông thoáng cho không gian
Để tô điểm cho không gian, tránh sự nhàm chán, chúng tôi tư vấn cho chủ đầu tư decor bức tường gần khu vực quầy thu ngân với họa tiết thiên nhiên ngôi sao, đám mây thân thuộc - đây là những hình ảnh thường thấy trong các câu truyện cổ tích của các bạn nhỏ. Bên dưới được thiết kế các bục gỗ vuông màu sắc thanh lịch tạo không gian chờ thoải mái cho khách hàng.

Decor hình ảnh ngôi sao, đám mây tạo không gian nhẹ nhàng, lôi cuốn
Tại khu vực trung tâm, chúng tôi setup hệ kệ với 2 bục tròn nâng độ cao so với sàn để trưng bày các sản phẩm chủ đạo, gây sự chú ý với khách hàng. Lối thiết kế nội thất shop mẹ và bé mang đậm nét hiện đại, trong trẻo, ngọt ngào.

Quầy tủ kệ được thiết kế khoa học mang tạo công năng sử dụng
Thiết kế shop mẹ và bé 4BéBé cũng cho thấy sự khoa học khi sắp xếp các kệ hàng, tủ trưng bày cao gỗ MDF phun sơn sát tường, trán khung tủ quầy vừa tạo sự ngăn nắp, dễ dàng vệ sinh và gia tăng diện tích trưng bày hàng hóa.
Các kiến trúc sư của PenViet cũng vô cùng tinh tế khi sử dụng bộ chữ Mica trán trên phần tủ kệ hàng mang đến sự thuận tiện, giúp khách hàng dễ dàng tìm kiếm được sản phẩm mình mong muốn.

Setup nội thất khoa học tạo lối đi thông thoáng cho cửa tiệm
Tại vị trí trung tâm, chúng tôi bố trí các kệ hàng thấp gỗ MDF chống ẩm với các đợt gỗ chắc chắn có tính chịu lực cao thích hợp trưng bày những mặt hàng phổ biến được nhiều khách hàng tìm kiếm, từ đó giúp tăng doanh số cho cửa tiệm.

Setup nội thất khoa học, tạo không gian trưng bày đa dạng hàng hóa

Kệ hàng với nhiều kiểu dáng bắt mắt giúp thu hút khách hàng mua sắm

Kết hợp các loại vật liệu linh hoạt trong mẫu thiết kế shop mẹ và bébé
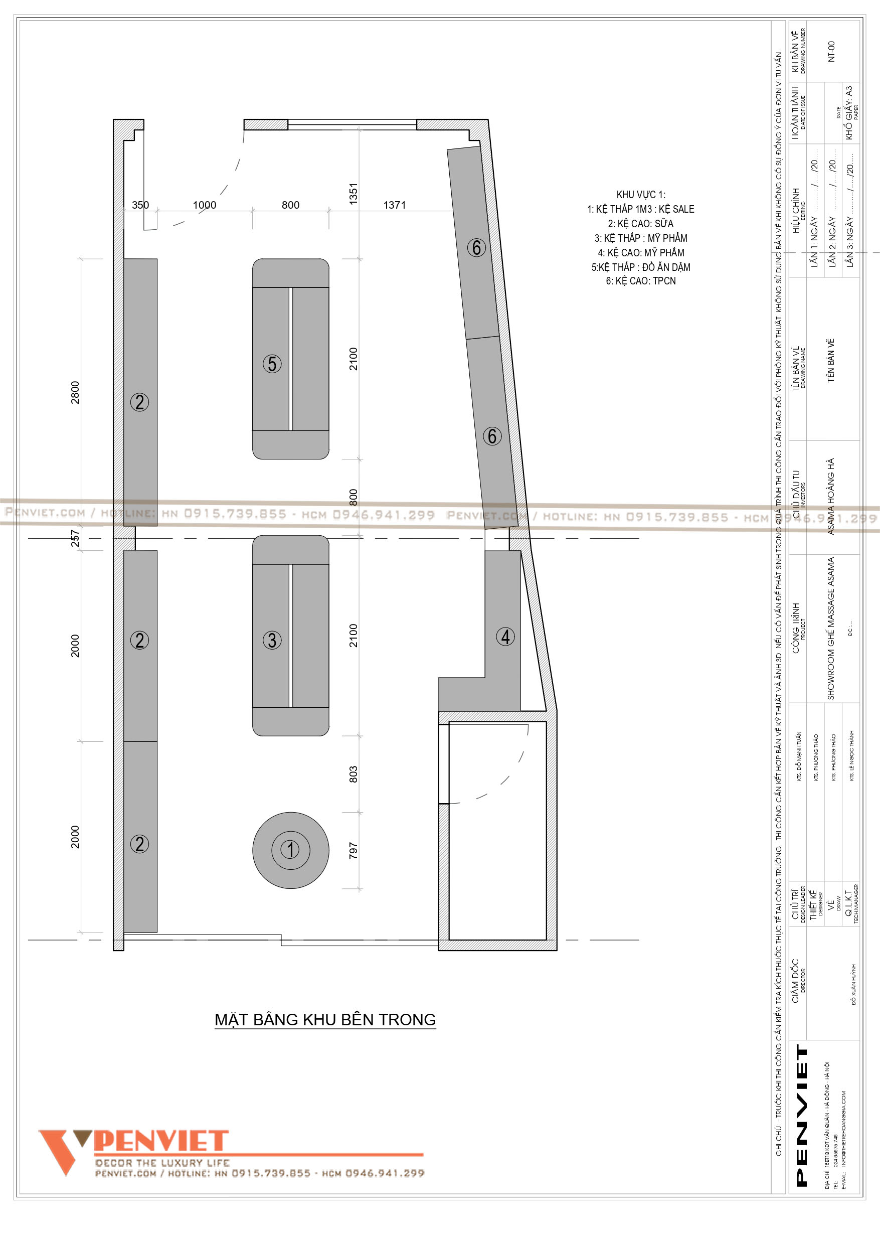
Không gian nội thất bên trong được thiết kế với các phân khu bày bán các loại sữa, mỹ phẩm, đồ ăn dặm và thực phẩm chức năng. Theo đó, các kiến trúc sư cũng đưa ra ý tưởng thiết kế nội thất phù hợp với đặc trưng trưng bày các mặt hàng này.

Bản vẽ bố trí mặt bằng khu vực bên trong shop mẹ và bé
Không gian bên trong shop được thiết kế đơn giản với 2 kệ cao đặt áp tường, hệ kệ thấp giữa nhà tránh gây cản trở tầm nhìn của khách hàng.

Kệ trưng bày hàng hóa sử dụng vật liệu có tính chịu lực
PenViet tư vấn cho chủ đầu tư dự án thiết kế shop mẹ và bé 4BéBé sử dụng các loại vật liệu có tính chịu lực cao như khung sắt sơn tĩnh điện, gỗ MDF chống ẩm phủ Melamine cho tủ kệ trưng bày sữa, đảm bảo kệ hàng luôn vững chắc, tránh bị rơi rớt, bóp méo ảnh hưởng đến hiệu suất kinh doanh.

Tranh in PP minh họa sản phẩm tạo điểm nhấn cho không gian shop
Tại khu vực trung tâm, chúng tôi bố trí các kệ hàng thấp, bày bán các sản phẩm chủ đạo, giúp người tiêu dùng dễ dàng phân loại và tìm kiếm mặt hàng.

Kệ hàng thấp trưng bày khoa học, tránh bị cản tầm nhìn
Việc bố trí quầy kệ trưng bày đồ ăn dặm cũng tạo thành những lối đi thông thoáng chẳng những giúp nhân viên dễ dàng trưng bày, lau dọn, vệ sinh mà còn giúp khách hàng cảm thấy thoải mái, muốn ghé thăm cửa hàng ở những lần tiếp theo khi có nhu cầu.

Không gian mua sắm rộng rãi hoàn thiện trải nghiệm mua hàng của người tiêu dùng

Kệ trưng bày mỹ phẩm, thực phẩm chức năng gỗ MDF tạo sự ngăn nắp, thuận tiện

Mẫu thiết kế shop khoa học giúp hoàn thiện trải nghiệm của khách hàng
Không gian trên tủ quầy được trang trí với các bức tranh in phát sáng minh họa cho các sản phẩm thiên nhiên không chỉ giúp tạo sự tin tưởng với khách hàng mà còn giúp hoàn thiện vẻ đẹp không gian, tránh cảm giác bị nhàm chán.
Mẫu thiết kế shop mẹ và bé 4BéBé cho thấy những ý tưởng sáng tạo vô cùng độc đáo của kiến trúc sư PenViet đã mang đến một không gian nhẹ nhàng, trong trẻo nhưng vẫn vô cùng cuốn hút, đảm bảo đầy đủ các yếu tố về thẩm mỹ, công năng trong quá trình sử dụng.
Bạn thấy sao về mẫu thiết kế shop mẹ và bé này? Hãy gọi ngay tới hotline của PenViet để được các chuyên gia của chúng tôi tư vấn và hỗ trợ setup không gian nhé!







A. PenViet có hệ thống chi nhánh văn phòng và xưởng sản xuất ở nhiều nơi trên toàn quốc, nên giá thành sản phẩm là giá xuất xưởng, cạnh tranh nhằm đảm bảo chất lượng và dịch vụ phục vụ Khách hàng tốt nhất.
A: PenViet cung cấp dịch vụ tới mọi thành phần kinh tế, chúng tôi cung cấp dịch vụ thiết kế, thi công và bán lẻ các mặt hàng nội thất.
- Với các sản phẩm khách hàng đã có bản vẽ 2D hoặc 3D: PenViet sẽ phân tích bản vẽ và báo giá cạnh tranh.
- Với các sản phẩm cần thiết kế chi tiết: PenViet sẽ báo giá từ thiết kế đến thi công.
- Với những khách hàng mua hàng có sẵn với số lượng lớn: vui lòng liên hệ để nhận báo giá cạnh tranh.
- Đối với các Showroom có diện tích trưng bày sản phẩm rộng lớn: PenViet có khung giá phù hợp với ngân sách của khách hàng.