Thiết kế spa có thể giúp bạn thay đổi diện mạo cho cơ sở làm đẹp của mình. Nếu còn chưa tin, hãy cùng Penviet khám phá ngay những gợi ý không gian tại spa Phương Loan ngay sau đây nhé!
NHỮNG NÉT CHÍNH TRONG DỰ ÁN THIẾT KẾ SPA PHƯƠNG LOAN
Tư vấn giải pháp thiết kế tạo được sự đồng điệu giữa spa với không gian sinh hoạt
Hiện trạng mặt bằng
Mặt bằng 5 tầng với tổng diện tích 620m2 gần như còn trống, do đó, để xây dựng được hình ảnh của một cơ sở làm đẹp sang trọng, chuyên nghiệp cần tới những giải pháp đồng bộ. Đây là lý do khiến cho chị Loan quyết định tìm đến Penviet – đơn vị top 1 trong thiết kế cửa hàng, thiết kế spa, … để được các kiến trúc sư giàu kinh nghiệm tư vấn và hỗ trợ.
Sau khi tiếp nhận thông tin, chúng tôi đã ngay lập tức tiến hành khảo sát hiện trạng mặt bằng để tìm kiếm phương án phù hợp cho không gian.

Mặt bằng hiện trạng tầng trệt spa Phương Loan
Mới được hoàn thiện xây thô, do đó, chủ đầu tư mới chỉ có sự định hình sơ bộ cho các không gian.

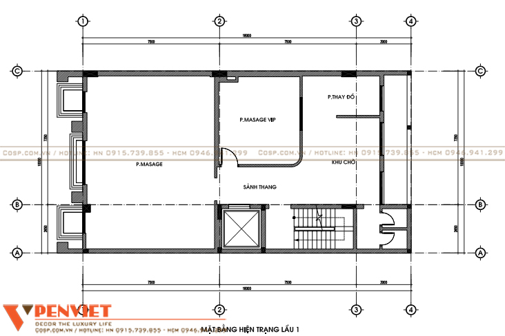
Mặt bằng hiện trạng lầu 1 trong thiết kế spa Phương Loan

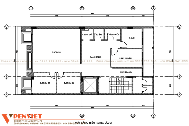
Mặt bằng hiện trạng lầu 2 spa Phương Loan

Mặt bằng hiện trạng lầu 3 spa Phương Loan

Mặt bằng hiện trạng lầu 4 spa Phương Loan
Mặt bằng được sử dụng để kinh doanh dịch vụ làm đẹp

Cần tiền hành cải tạo lại một số hạng mục thô để phù hợp với đặc trưng kinh doanh

Hiện trạng mặt bằng kinh doanh trước khi triển khai dự án thiết kế spa Phương Loan
Định hình phong cách thiết kế spa
Nắm bắt được mong muốn của khách hàng về một không gian sang trọng, xứng tầm với chất lượng dịch vụ hoàn hảo, chúng tôi tư vấn setup spa theo phong cách Tân Cổ Điển, sử dụng màu sắc nhẹ nhàng làm chủ đạo mang đến cảm giác dễ chịu cho khách hàng. Đồng thời, những gam màu này cũng làm nổi bật điểm nhấn màu nhũ vàng, thể hiện được sự xa hoa trong không gian cửa tiệm.
Nét đặc trưng trong thiết kế spa mang phong cách Tân Cổ Điển là những đường phào chỉ tinh tế tôn lên vẻ đẹp của những bức tường cũng được các kiến trúc sư Penviet thể hiện một cách vô cùng khéo léo. Khách hàng sẽ có thể hoàn toàn đắm chìm trong một không gian nhẹ nhàng, yên tĩnh để tận hưởng những dịch vụ cao cấp tại cơ sở làm đẹp này.

Sự lột xác ấn tượng của spa Phương Loan
Một điểm độc đáo nữa trong dự án thiết kế spa Phương Loan đó là ngoài để kinh doanh các dịch vụ làm đẹp, chủ đầu tư còn muốn setup khu vực lầu 3 và lầu 4 làm không gian sinh hoạt của gia đình với những yêu cầu khắc biệt.
Qua tìm hiểu nhu cầu của khách hàng, chúng tôi thấy rằng, các gia đình trẻ luôn mong muốn có được sự riêng tư cho mỗi thành viên song vẫn cần có những không gian để gắn kết tình cảm gia đình. Ngoài ra, với việc hướng đến một cuộc sống tiện nghi, thoải mái, Penviet nhận thấy việc thiết kế căn hộ mang phong cách hiện đại sẽ là lựa chọn tối ưu đối với chủ đầu tư.
Bên cạnh đó, để tạo được sự liên kết trong tổng thể không gian, chúng tôi cũng tư vấn setup không gian sinh hoạt hướng tới sự sang trọng. Việc này cũng góp phần thể hiện được sự đẳng cấp của gia chủ.
Phương án cải tạo mặt bằng và bố trí nội thất spa Phương Loan
Để đáp ứng được các tiêu chuẩn thiết kế spa được Hiệp hội Spa thế giới quy định, chúng tôi nhận thấy cần cải tạo lại các hạng mục thô như trần, sàn cho phù hợp.
Bên cạnh đó, Penviet cũng tăng cường hệ thống cách âm và dựng các vách gương, vách thạch cao để vừa khéo léo phân chia không gian, vừa mang lại tính thẩm mỹ cho cửa tiệm. Điều này chẳng những giúp cho spa có đầy đủ các phòng chức năng mà còn tạo được sự thoải mái, riêng tư cho khách hàng khi tới đây sử dụng dịch vụ.

Bố trí mặt bằng khoa học trong mẫu thiết kế spa Phương Loan

Dựng vách phân chia không gian

Đảm bảo spa có đầy đủ các phòng chức năng
Lầu 3 và lầu 4 được setup để ở, do đó, ngoài việc bố trí những không gian sinh hoạt chung để gắn kết tình cảm gia đình như bếp, phòng khách, phòng ăn, Penviet cũng chú trọng vào việc tạo dựng thế giới riêng cho mỗi thành viên, giúp họ luôn cảm thấy được sự thoải mái.
Setup không gian sinh hoạt cho gia đình

Không gian riêng được thiết kế nhu cầu sử dụng nhưng vẫn đảm bảo sự nhất quán

Bố trí mặt bằng phòng ngủ
Hiện thực hóa ý tưởng thiết kế nội thất
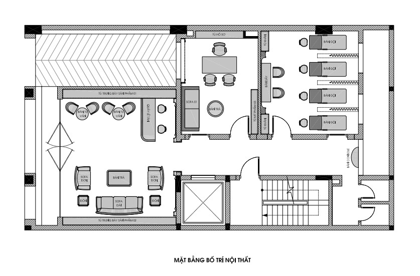
Thiết kế nội thất spa Phương Loan
Không gian tầng trệt của spa Phương Loan
Sảnh đón khách
Thiết kế spa phong cách Tân Cổ Điển hướng đến việc tạo dựng một không gian sang trọng, mang đến những trải nghiệm hoàn hảo cho người dùng thông qua việc sử dụng vật liệu nội thất cao cấp.
Tại đây, Penviet lựa chọn sofa khung gỗ tự nhiên, nệm bọc simili mang đến cho khách hàng sự thoải mái, dễ chịu. Bàn trà bằng gỗ MDF chống ẩm dán laminate, chân dán inox vàng gương, mặt đá nhân tạo màu trắng là giải pháp vừa tiết kiệm được chi phí so với sử dụng đá tự nhiên song vẫn mang đến sự đẳng cấp cho không gian.
Đôn trang trí mặt đá nhân tạo trắng, chân inox mạ vàng PVD cũng góp phần tạo nên sự tinh tế, trang nhã cho thiết kế spa Phương Loan.

Sử dụng sofa cao cấp mang tới sự thoải mái cho người sử dụng
Để phục vụ nhu cầu tư vấn riêng, Penviet sắp xếp thêm bàn với chân inox mạ xi vàng PVĐ cao cấp, mặt đá trắng vân mây và các ghế ngồi chân gỗ bọc inox đế, nệm bọc simili ở vị trí phù.

Khu vực tư vấn riêng dành cho khách hàng
Penviet cũng tận dụng đặt các tủ trưng bày sản phẩm bằng gỗ MDF chống ẩm phun sơn 2K, hậu gương thủy, viền inox mạ xi vàng gold uốn cong sát tường, vừa tối ưu mặt bằng kinh doanh, vừa để mở rộng không gian trưng bày cho thiết kế spa Phương Loan. Chúng tôi cũng kết hợp thêm hệ thống đèn led thanh hắt đợt và đèn âm trần hắt sáng uốn vòm giúp làm nổi bật các mặt hàng được bày bán tại đây.
Ngoài ra, thiết kế này còn tạo nên sự mềm mại, uyển chuyển, mang đến sự lôi cuốn cho không gian.

Bố trí các tủ trưng bày sản phẩm tận dụng triệt để mặt bằng
Quầy lễ tân bằng gỗ MDF chống ẩm sơn 2K kết hợp dán laminate được đẩy về cuối căn phòng giúp cho nhân viên dễ dàng bao quát toàn bộ không gian để hỗ trợ khách hàng một cách nhanh chóng, kịp thời. Họa tiết vân đá cùng việc trang trí viền inox mạ si vàng gold tạo được sự nhất quán trong phong cách thiết kế spa.

Quầy lễ tân được đẩy về cuối cửa hàng
Để khu vực sảnh tạo được sự ấn tượng đối với khách hàng, ngoài việc trang trí bổ sung cho trần hiện trạng với phào cổ trần bản cao trang trí, inox gương vàng bản cáo dán dựng máng hắt, chúng tôi còn sử dụng thêm vách gương trang trí gỗ MDF chống ẩm sơn 2K, laminate vân đá, gương thủy thủy cắt CNC mài vát cạnh, U inox mạ xi vàng ốp gỗ tạo chỉ nổi; vách backdrop gỗ MDF chống ẩm sơn 2K, laminate vân đá, gương thủy thủy cắt CNC mài vát cạnh, U inox mạ xi vàng ốp gỗ làm nổi bật tên spa bằng inox mạ si vàng.
Các vòm uốn cong trang trí bằng laminate vân đá, U inox mạ si vàng uốn cong cũng mang tới sự cao cấp và vè đẹp xa hoa cho thiết kế spa Phương Loan.

Sử dụng các vách trang trí tạo sự cuốn hút cho không gian
Sự nhất quán cũng được thế hiện qua lối trang trí hành lang với những họa tiết và vật liệu quen thuộc.

Sự nhất quán được thể hiện qua việc sử dụng vật liệu, họa tiết trang trí
Phòng gội đầu
Nét đẹp Tân Cổ Điển nhẹ nhàng, tinh tế được thể hiện nhất quán trong không gian.

Nét đẹp Tân Cổ Điển trong không gian
Những chi tiết đặc trưng như phào cổ trần bản cao sơn trắng hay phào PU gắn tường được Penviet tập trung thể hiện nhằm làm nổi bật tinh thần của mẫu thiết kế spa Phương Loan.

Tập trung vào các chi tiết đặc trưng của phong cách Tân Cổ Điển
Ngoài ra, chúng tôi cũng sử dụng thêm tranh trang trí khung inox mạ vàng pvd cắt CNC kết hợp gỗ MDF sơn 2K, Mica và tranh in để tô điểm cho phòng chức năng này.

Sử dụng tranh trang trí để decor cho không gian
Các tủ trưng bày, bàn console cũng được sắp xếp một cách khéo léo để tối ưu không gian và mở rộng khu vực trưng bày, lưu trữ cho phòng gội đầu.

Bố trí nội thất một cách khoa học tại spa Phương Loan
Phòng làm việc trong thiết kế spa Phương Loan
Tại đây, chúng tôi tư vấn thiết kế văn phòng để vừa làm toát lên sự trang trọng, lịch sự cho không gian nhưng cũng cần giữ được sự đồng điệu, nhất quán trong ý tưởng setup spa.
Penviet lựa chọn mẫu bàn làm việc bằng gỗ MDF chống ẩm sơn 2K, mặt dán laminate, viền inox mạ si vàng chạy dưới mặt bàn cho phòng giám đốc. Kiểu dáng đơn giản nhưng được phối hợp màu sắc hài hòa khiến cho thiết kế văn phòng vừa giữ được nét tịnh tế nhưng cũng vô cùng chuyên nghiệp.
Chúng tôi cũng tận dụng không gian phía sau để bố trí tủ đựng hồ sơ bằng gỗ MDF chống ẩm phun sơn 2K, nẹp chỉ nhựa Hàn Quốc phun sơn 2K, hệ thống đèn led chẳng những mang đến giải pháp thiết kế spa tối ưu mà còn tạo được sự thuận tiện cho người sử dụng.

Không gian phòng làm việc của giám đốc
Căn phòng này ngoài chức năng của một phòng làm việc thông thường, nó còn được sử dụng để đón tiếp đón những đối tác quan trọng của spa, do đó, Penviet tư vấn cho chủ đầu tư bố trí thêm sofa dài khung gỗ tự nhiên, nệm bọc simili và bàn trà khung inox mạ si vàng, mặt đá nhân tạo vân mây mang đến cảm giác trang trọng, lịch sự và mang đến ấn tượng tốt cho khách hàng.
Sự nhất quán trong ý tưởng thiết kế spa Tân Cổ Điển cũng được thể hiện trong không gian phòng giám đốc thông qua việc setup vách thạch cao 1 mặt sơn bả hoàn thiện, phào PU bản rộng sơn trắng kết hợp với gương decor gắn tường nhập khẩu nguyên chiếc độc đáo, mang lại sự sang trọng, đẳng cấp cho khu vực phòng làm việc.

Thiết kế văn phòng sang trọng cũng thể hiện sự tôn trọng với đối tác
Nhằm tận dụng triệt để mặt bằng, văn phòng trong mẫu thiết kế spa còn được chúng tôi bố trí thêm tủ mỹ phẩm bằng gỗ MDF chống ẩm phun sơn 2K, hậu tủ dán gương thủy kết hợp với đèn Led thanh hắt đợt tạo sự thu hút cho khu vực trưng bày hàng hóa. Việc này cũng giúp chủ đầu tư khéo léo giới thiệu các sản phẩm tới đối tác.

Bố trí tủ trưng bày mỹ phẩm để giới thiệu tới đối tác
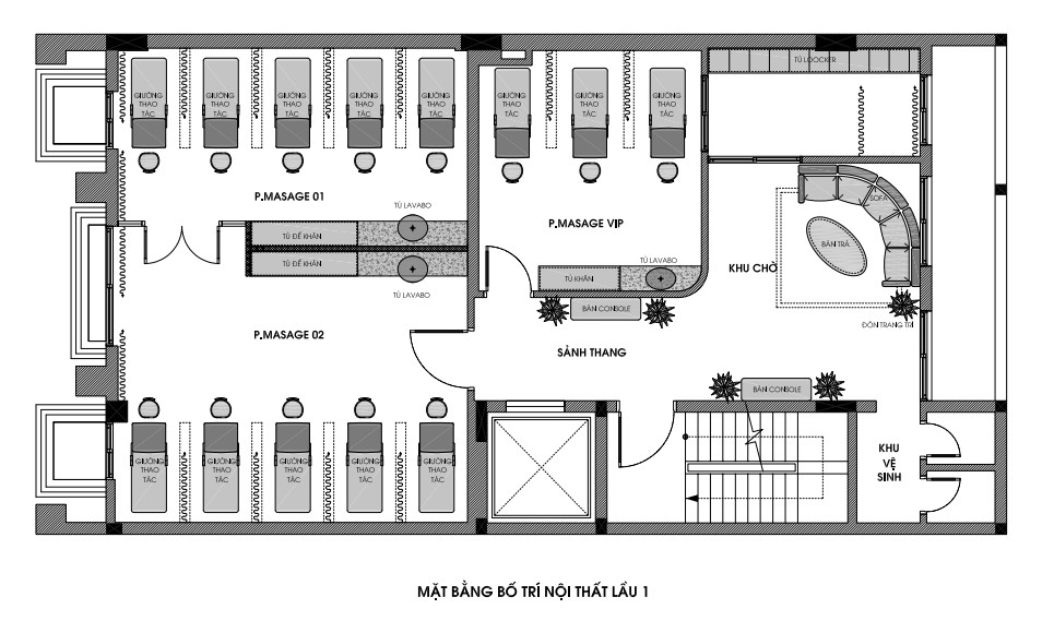
Các phòng chức năng tại lầu 1 spa Phương Loan
Phòng massage trong mẫu thiết kế spa Phương Loan
Phòng massage được bố trí các giường trị liệu sử dụng nội thất cao cấp mang tới cho người dùng sự thoải mái, dễ chịu. Không gian sang trọng kết hợp với màu sắc và ánh sáng nhẹ nhàng giúp cho khách hàng sự thư thái để tận hưởng các dịch vụ làm đẹp tại cơ sở làm đẹp cao cấp này.
Thiết kế spa Phương Loan cũng sử dụng rèm giữa các giường massage nhằm mang lại sự riêng tư cho khách hàng cũng như đảm bảo các tiêu chuẩn do Hiệp hội spa thế giới quy định.

Bố trí không gian tạo sự riêng tư, thoải mái cho khách hàng
Tủ để khăn bằng gỗ MDF chống ẩm phun sơn 2K, hậu dán gương thủy, U Inox mạ si vàng ốp khung gỗ tạo G trang trí, đèn Led được bố trí nhằm tăng không gian lưu trữ cho phòng chức năng.
PenViet lắp đặt tủ Lavabo sử dụng các loại vật liệu có tính chống nước để phù hợp với đặc điểm sử dụng nhằm đảm bảo độ bền và tính thẩm mỹ cho nội thất. Mẫu tủ này với hậu tủ dán tấm PVC giả đá, đèn Led thanh hắt đợt, mặt đá nhân tạo màu trắng, khung gỗ, gương, đèn Led vừa mang tới sự thu hút, vừa tạo sự sang trọng cho thiết kế spa.

Sử dụng vật liệu nội thất phù hợp với điều kiện sử dụng
Phòng massage VIP trong thiết kế nội thất spa Phương Loan
Phòng massage VIP được bố trí 3 giường trị liệu, ngăn cách bởi những tấm rèm che.

Không gian phòng massage VIP
Tại đây, chúng tôi cũng sắp xếp tủ khăn bằng gỗ MDF chống ẩm phun sơn 2K để lưu trữ đồ.
Bên cạnh những chi tiết trang trí phào cổ trần, phào chỉ đặc trưng trong phong cách thiết kế spa Tân Cổ Điển, PenViet còn lựa chọn tranh trang trí khung Inox mạ PVD cắt CNC kết hợp với gỗ MDF phun sơn 2K, Mica, tranh, đèn Led để tạo điểm nhấn cho không gian.

Những chi tiết trang trí Tân Cổ Điển được tái hiện trong không gian
Khu vực chờ tại không gian lầu 1 spa Phương Loan
Sofa ca cấp chân gỗ tự nhiên, đệm bọc simili kết hợp bàn trà gỗ MDF chống ẩm thái lan, dán phủ Laminate, mặt đá nhân tạo màu trắng giúp duy trì hình ảnh sang trọng, đẳng cấp cho không gian.
Mẫu đôn trang trí chân Inox mạ vàng PVD, mặt đá nhân tạo màu trắng tinh tế càng góp phần hoàn thiện vẻ đẹp xa hoa của thiết kế nội thất spa.

Không gian đẳng cấp tại spa Phương Loan
Chủ đầu tư chia sẻ với chúng tôi sự hài lòng khi các kiến trúc sư PenViet khéo léo tăng cường nhận diện thương hiệu thông qua bộ chữ tên cửa tiệm bằng Mica phát sáng chân.

Giúp chủ đầu tư tăng cường nhận diện thương hiệu
Bàn console mặt đá nhân tạo, chân Inox mạ vàng PVD kết hợp với gương decor gắn tường, đôn góc mặt đá nhân tạo, chân Inox mạ vàng PVD với thiết kế độc đáo tạo nên điểm nhấn thu hút cho khu vực sảnh chờ tại lầu 1.

Tạo sự thu hút cho thiết kế nội thất tiệm vàng
Khu vực hành lang rộng rãi vừa giúp di chuyển được thuận tiện, vừa mang đến sự thông thoáng cho spa.

Nét đẹp hoàn mỹ của spa Phương Loan

Hành lang được thiết kế rộng rãi
Thiết kế nội thất spa Phương Loan với các phòng chức năng tại lầu 2
Hướng đến việc cung cấp những dịch vụ làm đẹp cao cấp, sử dụng công nghệ hiện đại. PenViet tư vấn cho chủ đầu tư phương án phân chia không gian phù hợp để đảm bảo đầy đủ các phòng và khu vực chức năng. Tầng 2 bao gồm khu vực sảnh lễ tân, các phòng chăm sóc body, phòng tắm trắng được setup riêng biệt giúp khách hàng luôn cảm thấy riêng tư. Việc tạo tâm lý thoải mái cùng giúp nâng cao hiệu quả của các gói trị liệu.

Bố trí mặt bằng lầu 2
Sảnh lễ tân và khu vực hành lang rộng rãi trong mẫu thiết kế spa Phương Loan
Quầy lễ tân bằng gỗ MDF chống ẩm phun sơn 2K kết hợp nhựa PVC giả đá vân mây, khung viền Inox mạ si vàng mang đến sự sang trọng cho không gian. PenViet cũng khéo léo lồng ghép tên spa bằng Mica dẹp dán quầy giúp chủ đầu tư tăng cường nhận diện thương hiệu.
Vị trí quầy lễ tân được sắp xếp giúp nhân viên dễ dàng quan sát cũng như tạo sự thuận tiện cho khách hàng khi cần trợ giúp.

Vị trí quầy tạo sự thuận tiện cho khách hàng khi cần hỗ trợ
Khu vực hành lang được trang trí với các bàn Console chân Inox mạ vàng PVD, mặt đá nhân tạo tạo điểm nhấn tinh tế cho thiết kế spa.

Sử dụng bàn console trang trí

Khéo léo tạo điểm nhấn cho không gian
Việc sử dụng nội thất đồng nhất tạo nên sự liên kết giữa các không gian.

Tạo sự liên kết cho không gian nhờ sử dụng nội thất tương đồng

Tối đa công năng sử dụng của nội thất
Chúng tôi cũng bố trí những bộ bàn ghế nhỏ xinh dành cho khách hàng trong khi chờ đợi sử dụng dịch vụ hoặc cần tư vấn chuyên sâu từ các chuyên gia.

Khu vực chờ thuận tiện cho khách hàng

Chi tiết trang trí phào chỉ là điểm đặc trưng nổi bật trong phong cách Tân Cổ Điển
Để khu vực hành lang trong mẫu thiết kế spa Phương Loan thêm phần thu hút, chúng tôi sử dụng tranh tường trang trí khung Inox mạ si vàng PVD cắt CNC, gỗ MDF phun sơn 2K, Mica cùng với vách lam trang trí bằng gỗ MDF cắt CNC phun sơn trắng đồng nhất với không gian.

Vách lam cắt CNC trang trí tinh tế
Các phòng chăm sóc body trong thiết kế nội thất spa Phương Loan
Các phòng chăm sóc body sử dụng các giường trị liệu cao cấp mang đến trải nghiệm hoàn hảo cho khách hàng.

Sử dụng nội thất cao cấp mang tới trải nghiệm hoàn hảo cho khách hàng
Chúng tôi lắp đặt tủ Lavabo bằng gỗ MDF chống ẩm phun sơn 2K, hậu tủ dán tấm PVC giả đá, mặt đá nhân tạo màu trắng tạo sự sang trọng. Gương khung gỗ kết hợp với hệ thống đèn Led, đèn led hắt tạo sự thu hút và mang đến tính thẩm mỹ cho thiết kế spa.

Tủ Lavabo ưu tiên sử dụng vật liệu chống nước
Các tủ khăn bằng gỗ MDF chống ẩm phun sơn 2K, hậu tủ dán gương thủy, U Inox mạ xi vàng trang trí cùng các đèn led thanh hắt đợt cũng được sử dụng để mở rộng khu vực lưu trữ cho phòng chức năng.

Bố trí tủ khăn trong các phòng chức năng

Không gian phòng chăm sóc body
PenViet lựa chọn các vách gương trang trí tạo điểm nhấn sang trọng cho không gian.

Phòng chăm sóc body trong mẫu thiết kế nội thất spa Phương Loan

Sử dụng vách gương trang trí cho không gian
Ngoài phòng chăm sóc body lớn, chúng tôi cũng bố trí các phòng nhỏ dựa theo nhu cầu của chủ đầu tư cũng như đặc điểm mặt bằng.

Phòng chăm sóc body nhỏ
Nội thất với kích thước phù hợp giúp khắc phục hạn chế về diện tích cho các phòng chức năng này.

Sử dụng nội thất có kích thước phù hợp với không gian

Việc sử dụng nội thất thống nhất cũng mang đến sự chuyên nghiệp cho spa

Sự nhất quán trong ý tưởng thiết kế nội thất spa được thể hiện rõ nét
Phòng tắm trắng trong thiết kế spa Phương Loan
Các phòng chức năng riêng biệt được thiết kế phù hợp với đặc điểm của từng loại dịch vụ chuyên sâu của spa.

Phòng phi thuyền
Song, đặc điểm chung của các khu vực này chính là sự sang trọng, đẳng cấp đậm chất Tân Cổ Điển.

Vẻ đẹp Tân Cổ Điển thể hiện trong tất cả các không gian

Khu vực đặt giường trị liệu

Giường trị liệu được đặt trong phòng phi thuyền
Phòng sục được chúng tôi lựa chọn đá Marble cao cấp ốp tường, thành bể sục, sàn.

Sử dụng đá Marble cao cấp ốp tường, sàn
Lòng bể sục ốp gạch Mosaic.

Sử dụng vật liệu cao cấp cho thiết kế nội thất spa
Chúng tôi cũng thi công nẹp mũi bậc chống trơn nhằm mang đến sự an toàn cho người sử dụng.

Không gian đẳng cấp tại spa Phương Loan

Setup không gian mang đến cho khách hàng trải nghiệm hoàn hảo
Tạo dựng thế giới riêng trong không gian sinh hoạt
Bên cạnh việc thiết kế spa sang trọng, PenViet còn mong muốn tạo nên không gian sống đẳng cấp cho khách hàng thông qua lối setup hiện đại.
Thiết kế phòng ngủ Master
Sự tiện nghi là điều mà chúng tôi kỳ vọng sẽ mang đến cho khách hàng.

Không gian phòng ngủ Master
Tại đây, PenViet lựa chọn giường ngủ và vách đầu giường khung gỗ tự nhiên bọc simili mang đến sự thoải mái, dễ chịu cho khách hàng.
Tab đầu giường được làm từ gỗ MDF chống ẩm, viền Inox mạ si vàng tạo sự thuận tiện cho người dùng.
Ngoài ra, chúng tôi còn bố trí thêm hệ bàn phấn bằng gỗ MDF chống ẩm, chân Inox mạ vàng PVD, gương thủy nhập khẩu kết hợp với khung gỗ MDF chống ẩm phun sơn 2K cho mẫu thiết kế căn hộ này để đáp ứng nhu cầu dụng của chủ đầu tư.

Sử dụng giường ngủ khung gỗ tự nhiên bọc simili
PenViet setup vách tivi xương gỗ tự nhiên ghép thanh, gỗ MDF chống ẩm phun sơn 2K; kệ tivi khung gỗ MDF chống ẩm phun sơn 2K; bàn console trang trí thùng tủ gỗ mdf chống ẩm dán phủ veneer kỹ thuật, sơn bóng 2K, cánh tủ gỗ mdf chống ẩm sơn trắng 2K cho thiết kế phòng ngủ Master.
Bên cạnh đó, ghế đôn khung gỗ, chân bọc inox bọc simili; ghế đơn chân inox mạ vàng PVD, đệm ngồi bọc nỉ cùng với bàn trà độc đáo cũng góp phần mang đến sự thoải mái cho gia chủ cũng như hoàn thiện không gian.

Nội thất được lựa chọn kỹ lưỡng để mang lại sự thoải mái cho người dùng

Không gian phòng ngủ Master
Phòng thay đồ trong phòng ngủ Master bố trí các tủ quần áo khung nhôm sơn tĩnh điện, thùng gỗ Melamine chống ẩm, kính cường lực kết hợp với hệ thống đèn Led mang tới sự tiện lợi cho gia chủ.

Phòng thay đồ tại phòng ngủ Master
Các tủ này được sắp xếp khoa học tạo không gian trống rộng rãi, mang lại sự thuận tiện cho người sử dụng.

Bố trí nội thất phòng thay đồ khoa học
Thiết kế phòng bé trai
Giường ngủ khung giường gỗ tự nhiên bọc nỉ, chân giường sắt bản mã sơn tĩnh điện màu đen; tab đầu giường gỗ mdf chống ẩm phủ Melamine, chân sắt hộp sơn tĩnh điện màu đen được chúng tôi sử dụng cho thiết kế phòng bé trai.

Phòng ngủ bé trai trong thiết kế spa Phương Loan
Kệ tivi liền bàn học bằng gỗ chống ẩm phủ Melamine và giá sách treo tường bằng gỗ MDF chống ẩm phủ Melamine mang đến giải pháp tối ưu cho không gian.

Không gian phòng ngủ bé trai
Bên cạnh việc setup phòng thay đồ riêng, PenViet còn lựa chọn tủ thấp để đồ bằng gỗ MDF chống ẩm phủ Melamine giúp tăng không gian lưu trữ.

Bố trí tủ thấp để đồ giúp tăng không gian lưu trữ
Thiết kế phòng ngủ con gái
Những gam màu trung tính được sử dụng tạo nên sự liên kết giữa các không gian.

Sử dụng màu sắc trung tính tạo sự liên kết không gian
Phòng ngủ bé gái sử dụng giường khung gỗ tự nhiên bọc Simili; vách đầu giường gỗ MDF sơn 2K ốp tường chạy ron, lam gỗ mdf chống ẩm phủ Melamine màu vân gỗ, soi rãnh trang trí, rãnh soi sơn PU sẫm màu; tab đầu giường gỗ mdf chống ẩm, ốp laminate, mặt đá nhân tạo màu trắng, viền inox mạ si vàng tạo sự sang trọng cho không gian.

Không gian phòng ngủ bé giá trong dự án thiết kế nội thất spa Phương Loan
Tại đây, chúng tôi thiết kế kệ tivi liền bàn phấn bằng gỗ MDF chống ẩm phun sơn 2K nhằm tối ưu diện tích mặt bằng.

Sử dụng nội thất với thiết kế thông minh
Nội thất thông minh một lần nữa được PenViet sử dụng thông qua mẫu tủ quần áo liền giá sách bằng gỗ MDF chống ẩm phủ Melamine kết hợp với khung nhôm sơn tĩnh điện và kính cường lực.
Bàn học bằng gỗ MDF chống ẩm phủ Melamine được bố trí gần cửa sổ nhằm tận dụng được ánh sáng tự nhiên cũng như tạo tâm trạng thoải mái cho người sử dụng.

Thiết kế phòng ngủ con gái
Vẻ đẹp đặc trưng của phong cách Tân Cổ Điển đã được các kiến trúc sư PenViet tái hiện trong mẫu thiết kế nội thất spa Phương Loan. Mong rằng, đây sẽ là gợi ý thú vị cho cơ sở làm đẹp của bạn. Đừng ngại lên hệ ngay với chúng tôi để sở hữu những mẫu thiết kế nội thất độc nhất vô nhị nhé!







A. PenViet có hệ thống chi nhánh văn phòng và xưởng sản xuất ở nhiều nơi trên toàn quốc, nên giá thành sản phẩm là giá xuất xưởng, cạnh tranh nhằm đảm bảo chất lượng và dịch vụ phục vụ Khách hàng tốt nhất.
A: PenViet cung cấp dịch vụ tới mọi thành phần kinh tế, chúng tôi cung cấp dịch vụ thiết kế, thi công và bán lẻ các mặt hàng nội thất.
- Với các sản phẩm khách hàng đã có bản vẽ 2D hoặc 3D: PenViet sẽ phân tích bản vẽ và báo giá cạnh tranh.
- Với các sản phẩm cần thiết kế chi tiết: PenViet sẽ báo giá từ thiết kế đến thi công.
- Với những khách hàng mua hàng có sẵn với số lượng lớn: vui lòng liên hệ để nhận báo giá cạnh tranh.
- Đối với các Showroom có diện tích trưng bày sản phẩm rộng lớn: PenViet có khung giá phù hợp với ngân sách của khách hàng.