Sống xanh an lành là phong cách sống được ưa chuộng trên thế giới khi bản thân mỗi chúng ta được sống trong một môi trường xanh, trong lành, học được cách sống bình yên, an lạc trong tiềm thức kết hợp với việc rèn luyện thể chất khỏe mạnh một cách tự nhiên, tạo ra nguồn năng lượng xanh tích cực và toàn diện.

Tổ hợp chăm sóc sức khỏe xanh Green Concept
Tọa lạc trên tầng 31 tòa nhà Riverside Garden tại 349 Vũ Tông Phan, Q. Thanh Xuân, Hà Nội, GREEN Concept trở thành điểm đến cuối tuần cho các gia đình hay những ai đang muốn tìm nơi tĩnh lặng, sống chậm lại trong 1 ngày.
Bước qua cánh cửa thang máy hiện đại, du khách sẽ cảm nhận được ngay không gian tĩnh lặng, ngồi uống chén trà đạo tẩy trần và lắng đọng tâm hồn, chậm rãi ngồi bình tâm trước tượng Phật và không gian thoáng mát, nhắm mắt lại để hít thở và lằng nghe tiếng nói bên trong mình. Rồi nhẹ nhàng nhâm nhi tách trà ấm, để mọi giác quan được cảm nhận mọi thứ thật chậm thật yên.

Thiết kế nội thất spa green concept
Cosp cũng tự hào là đơn vị thiết kế nội thất spa Green Concept này vì đây là một dự án khá lớn và quan trọng. Toàn bộ nội thất trong spa phải thể hiện được sự trong lành, thoải mái, tự nhiên và cũng cao cấp.
Các bạn có thể thấy sàn nhà được ốp gỗ tự rất đẹp, những khung cửa kính trong suốt sẽ có nhiệm vụ đem ánh sáng vào khu vực trà đạo và thiền này. ngoài ra, chúng tôi cũng thiết kế thêm 2 chiếc kệ trưng bày để sát tường bằng gỗ MDF phủ Venner rất tự nhiên. Kệ có nhiều ngăn được đặt ở sát tường nên tiết kiệm diện tích.

Thiết kế spa green concept
Hình ảnh bên trên là khu vực giao giữa khu vực trà đạo và sảnh chính. Khu vực này cũng được thiết kế rất tỉ mỉ, mọi góc cạnh trong tổ hợp sức khỏe này đều phải thể hiện tinh hoa của thiên nhiên, chúng tôi đảm nhiệm vai trò thiết kế nội thất cho spa nên cần phải cho khách hàng đến với khu nghỉ dường có một tâm trạng tốt nhất.

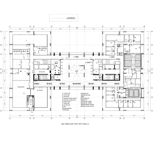
Bản vẽ 2D thiết kế tổ hợp chăm sóc sức khỏe xanh Green Concept
Nội thất Cosp đảm nhận vai trò thiết kế toàn bộ nội thất tổ hợp chăm sóc sức khỏe này nên có đủ bản vẽ thiết kế 2D và 3D. Ngoài ra chúng tôi có cả bảng báo giá chi tiết cho từng hạng mục ngoại thất đến Thiết kế spa. Đây là những hình ảnh đã được đưa lên báo nên có phần hơi bí mật, bạn có thể liên hệ trực tiếp với chúng tôi để biết thêm thông tin về dự án này.








A. PenViet có hệ thống chi nhánh văn phòng và xưởng sản xuất ở nhiều nơi trên toàn quốc, nên giá thành sản phẩm là giá xuất xưởng, cạnh tranh nhằm đảm bảo chất lượng và dịch vụ phục vụ Khách hàng tốt nhất.
A: PenViet cung cấp dịch vụ tới mọi thành phần kinh tế, chúng tôi cung cấp dịch vụ thiết kế, thi công và bán lẻ các mặt hàng nội thất.
- Với các sản phẩm khách hàng đã có bản vẽ 2D hoặc 3D: PenViet sẽ phân tích bản vẽ và báo giá cạnh tranh.
- Với các sản phẩm cần thiết kế chi tiết: PenViet sẽ báo giá từ thiết kế đến thi công.
- Với những khách hàng mua hàng có sẵn với số lượng lớn: vui lòng liên hệ để nhận báo giá cạnh tranh.
- Đối với các Showroom có diện tích trưng bày sản phẩm rộng lớn: PenViet có khung giá phù hợp với ngân sách của khách hàng.