Tận dụng không gian hiện trạng của tiệm mới được sơn sửa, các kiến trúc sư của Penviet đã tư vấn giúp chị Ngọc Anh - chủ đầu tư của dự án lựa chọn phong cách thiết kế hiện đại, nhằm khắc phục hạn chế diện tích mặt bằng nhỏ hẹp, tạo công năng sử dụng, đồng thời làm toát sự thiện cảm với khách hàng đến Ngọc Anh Spa làm đẹp, thư giãn.

Mặt bằng nhỏ hẹp chính là một hạn chế lớn với cửa tiệm
Mặt bằng nhỏ hẹp chính là một hạn chế lớn với cửa tiệm, vì thế ngoài việc tư vấn lựa chọn phong cách hiện đại, chúng tôi còn sử dụng nội thất với gam màu nâu gỗ với kích thước phù hợp giúp không gian trở nên rộng rãi, thoáng đãng, đặc biệt thể hiện đúng ý tưởng của chủ đầu tư mong muốn tạo không gian có vẻ đẹp mộc mạc, đơn giản ít bị lỗi thời.
Việc kết hợp gam màu trắng và nâu gỗ tạo nên một nét rất riêng, gây ấn tượng và thiện cảm của mẫu thiết kế spa này.
Để thể hiện đúng ý tưởng của của chủ tiệm, Penviet đã thiết kế biển quảng cáo bằng khung sắt với phần lam nhựa giả gỗ làm nổi bật bộ logo in phát sáng chân mang đến vẻ đẹp hiện đại nhưng vẫn toát lên được những nét mộc mạc, tối giản cho tiệm Spa Ngọc Anh.

Thiết kế mặt tiền hiện đại, mộc mạc với màu nâu trầm
Với hạn chế mặt bằng có diện tích nhỏ hẹp, Penviet đã tư vấn cho chủ đầu tư nên giữ lại phần cửa kính của mặt tiền, vừa giúp tiết kiệm chi phí, vừa tạo lên sự nhất quán, tạo một không gian mở khiến cửa tiệm trở nên thông thoáng và có cảm giác rộng rãi hơn. Bên cạnh đó, việc này cũng giúp spa tận dụng được nguồn ánh sáng tự nhiên, tránh việc tiêu tốn quá nhiều điện năng khi đi vào hoạt động.
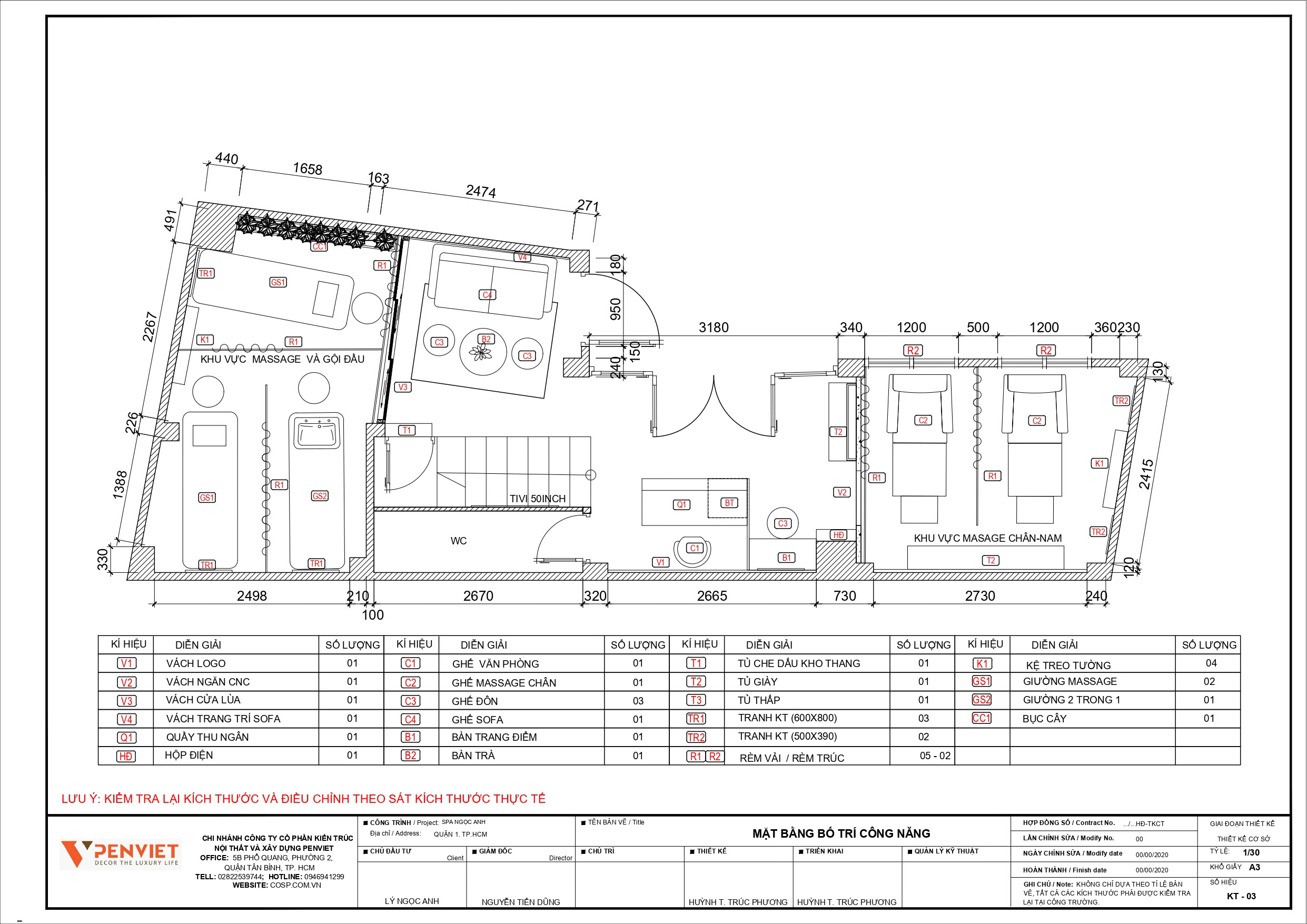
Mặc dù sở hữu diện tích không quá lớn, nhưng thiết kế spa Ngọc Anh vẫn đảm bảo được tính thẩm mỹ, đồng thời đáp ứng được đầy đủ tiêu chuẩn của một tiệm spa chuyên nghiệp. Bản vẽ được các kiến trúc sư Penviet phác thảo thấy rất rõ điều này.

Bản vẽ thiết kế nội thất Spa Ngọc Anh
Quầy lễ tân bằng gỗ MDF phủ melamine phối màu sắc thời thượng kết hợp với họa tiết vân gỗ mang tới sự hiện đại cho cửa tiệm. Chúng tôi bố trí quầy ngay chính giữa khu vực chính cửa ra vào để nhân viên có thể chào đón khách hàng ngay khi họ đến với spa. Đây cũng là một cách tạo thiện cảm và gây ấn tượng tốt để níu giữ chân khách hàng.
Vì có diện tích hạn chế, chúng tôi còn khéo léo thiết kế đặt bàn thờ thần tài bên góc phải quầy thu ngân, hướng đặt này theo phong thủy báo hiệu những điều may mắn, thuận lợi trong kinh doanh sẽ đến với chủ tiệm.
Penviet cũng giúp chủ đầu tư tăng cường nhận diện thông qua việc setup vách logo lam nhựa giả gỗ được nẹp viền inox sang trọng phía sau quầy lễ tân để làm nổi bật phần logo, tên thương hiệu kết hợp với họa tiết vân đá. Điều này đã tạo lên sức hút mạnh mẽ trong mẫu thiết kế spa đẹp hiện đại.

Quầy lễ tân được bài trí khoa học giúp tiếp đón khách hàng nồng hậu
Bàn trang điểm bằng gỗ MDF phủ melamine cũng được bố trí gần sát với quầy lễ tân, kết hợp với gương trang điểm họa tiết viền gỗ làm tôn lên nét đẹp hiện đại trong không gian, đồng thời giúp khách hàng có thể soi ngắm lại nhan sắc của mình sau khi sử dụng dịch vụ.
Để khách hàng được trải nghiệm chất lượng dịch vụ tốt nhất khi đến với Ngọc Anh Spa, tại khu vực tiếp đón chúng tôi đã lựa chọn ghế sofa với khung gỗ tự nhiên cao cấp. Chất liệu đệm bọc nỉ Hàn Quốc mang lại cảm giác êm ái cho khách hàng. Đôn ngồi và bàn trà được thiết kế đồng bộ với ghế sofa góp phần hoàn thiện vẻ đẹp sang trọng, hiện đại cho không gian của tiệm.

Phần vách lam sau sofa được thiết kế với gương bỉ cắt decor tinh xảo
Phần vách lam sau sofa được thiết kế với gương bỉ cắt decor tinh xảo hậu gỗ MDF phủ melamine giúp không gian thêm thoáng đãng, sáng sủa, đặc biệt làm tăng tính thẩm mỹ cho toàn bộ không gian tiếp đón khách hàng.
Với nhiều năm kinh nghiệm trong lĩnh vực thi công thiết kế spa, chúng tôi hiểu được rằng, việc tạo ra giải pháp không gian và sự thoải mái cho khách hàng chính là những điều vô cùng quan trọng với mô hình kinh doanh này. Vì thế, Penviet đã tư vấn cho chủ đầu tư bố trí 2 ghế massage chân đặt song song với đệm bọc nỉ êm ái, giúp khách có thể thả lỏng cơ thể, thư giãn sâu, đồng thời giúp cho nhân viên spa có thể phục vụ tận tình, chu đáo.

Setup khu vực massage chân với không gian nội thất cuốn hút
Để tạo sự riêng tư cho khách hàng, chúng tôi cũng khéo léo thiết kế phần khung rèm trong suốt giữa 2 ghế massage chân, kết hợp với rèm trúc che cửa sổ màu nâu trầm giúp điều chỉnh ánh sáng tự nhiên theo ý thích.
Vách trang trí đặt áp tường được thiết kế họa tiết lam nhựa giả gỗ với 2 gương decor, đèn led viền làm tăng tính thẩm mỹ. Nhằm tận dụng triệt để không gian, phía dưới được bố trí tủ khăn làm từ chất liệu gỗ MDF họa tiết vân đá, tạo sự thuận lợi cho nhân viên dễ dàng lấy đồ khi đang phục vụ cho khách hàng, điều này phần nào thể hiện sự chuyên nghiệp, chỉn chu, tận tâm của spa.

Tủ khăn được sắp xếp hài hòa giúp nhân viên dễ dàng phục vụ khách hàng
Mẫu vách lam trang trí màu nâu trầm chất liệu gỗ MDF phủ melamine kết hợp các đợt kệ cũng được đưa vào ý tưởng thiết kế spa Ngọc Anh để tạo không gian riêng tư giữa phòng tiếp đón và phòng massage chân.
Ngoài ra, để mang đến sự độc đáo cho không gian, chúng tôi setup kệ pat tường với gỗ MDF phủ melamine chắc chắn giúp cửa tiệm trưng bày thêm các mặt hàng mỹ phẩm, rất phù hợp với mẫu thiết kế spa mini. Phía trên được trang trí với tranh in PP viền gỗ kết hợp với bộ chữ mica dày tạo điểm nhấn cho toàn bộ khu vực.
Lấy tông màu nâu làm gam màu chủ đạo, giường spa được làm từ chất liệu gỗ thông công nghiệp, họa tiết vân gỗ, nệm bọc da tạo cảm giác êm ái cho khách hàng khi trải nghiệm dịch vụ trong thời gian dài. Bên cạnh đó, để tạo sự riêng tư, chúng tôi đã bố trí 2 giường spa song song, phần giữa lối đi được thiết kế rèm che trong suốt, khung rèm chắc chắn có thể điều khiển linh hoạt.

Giường spa rộng rãi bọc đệm nỉ tạo sự thoải mái cho khách hàng
Nhằm tận dụng tối đa không gian giúp khách hàng không phải chờ đợi quá lâu, một giường spa được bổ sung sát phía góc ghế sofa tiếp đón khách hàng. Mỗi giường đều được trang bị ghế spa có bánh xe nhỏ, giúp các nhân viên linh hoạt trong quá trình phục vụ.
Bộ decor áp tường được làm từ chất liệu gỗ MDF cắt CNC cao cấp kết hợp với bộ đèn rọi chiếu sáng mang đến vẻ đẹp thời thượng mà không làm mất đi nét đặc trưng của ý tưởng thiết kế. Chúng tôi cũng tư vấn cho chị Ngọc Anh bổ sung thêm phần bục chậu cây tạo không gian xanh mát, thoáng đãng cho khu vực này.
Kết hợp cùng với các phần lam nhựa giả gỗ, các kiến trúc sư của Penviet đã trang trí khung tranh in PP có đèn chiếu rọi. Song song với đó kệ pát tường gỗ MDF phủ melamine hiện đại làm tôn vinh lên vẻ đẹp và giá trị của sản phẩm được trưng bày rất hiệu quả. Bức tranh tổng thể này còn tạo nên sự cuốn hút, đồng thời tô điểm thêm cho không gian của tiệm thêm sang trọng, hiện đại.

Phong cách hiện đại trong thiết kế Ngọc Anh Spa
Nếu các ổ điện hay kho chứa đồ luôn là nhược điểm khiến không gian mất đi điểm nhấn thì các kiến trúc sư của Penviet đã vô cùng tinh tế khi đã lên ý tưởng che đi khuyết điểm này bằng loại tủ gỗ MDF phủ melamine và sơn màu 2K với đường bo tròn, hệ thống đèn led vô cùng bắt mắt. Đặc biệt, tủ che kho này còn giúp spa trưng bày thêm nhiều mặt hàng, phụ kiện.
Trên đây Penviet vừa giới thiệu tới các bạn mẫu thiết kế nội thất spa có diện tích nhỏ mà chúng tôi đã thực hiện tại TP Hồ Chí Minh. Với hơn 10 năm kinh nghiệm và có nhiều chi nhánh, nhà xưởng trên khắp cả nước, Penviet tự tin và luôn sẵn sàng đồng hành, kiến tạo nên những không gian cửa tiệm đẹp với giá thành hợp lý cho các chủ đầu tư. Nếu bạn đang có dự định thiết kế, thi công spa mà nhưng chưa có ý tưởng hay gặp bất kỳ băn khoăn, khúc mắc nào, đừng ngần ngại, hãy nhấc máy gọi ngay cho Penviet để chuyên viên tư vấn cụ thể tới bạn nhé.







A. PenViet có hệ thống chi nhánh văn phòng và xưởng sản xuất ở nhiều nơi trên toàn quốc, nên giá thành sản phẩm là giá xuất xưởng, cạnh tranh nhằm đảm bảo chất lượng và dịch vụ phục vụ Khách hàng tốt nhất.
A: PenViet cung cấp dịch vụ tới mọi thành phần kinh tế, chúng tôi cung cấp dịch vụ thiết kế, thi công và bán lẻ các mặt hàng nội thất.
- Với các sản phẩm khách hàng đã có bản vẽ 2D hoặc 3D: PenViet sẽ phân tích bản vẽ và báo giá cạnh tranh.
- Với các sản phẩm cần thiết kế chi tiết: PenViet sẽ báo giá từ thiết kế đến thi công.
- Với những khách hàng mua hàng có sẵn với số lượng lớn: vui lòng liên hệ để nhận báo giá cạnh tranh.
- Đối với các Showroom có diện tích trưng bày sản phẩm rộng lớn: PenViet có khung giá phù hợp với ngân sách của khách hàng.