Nhu cầu sử dụng dịch vụ spa phun xăm ngày càng tăng cao nên nhiều cơ sở đã mở rộng để phục vụ khách hàng. Trong đó, sở hữu cửa tiệm spa ấn tượng, tạo sự thoải mái chính là điểm thu hút khách hàng đến trải nghiệm dịch vụ. Bạn đọc cùng tham khảo mẫu thiết kế spa phun xăm Alexa - Khánh Phương do PenViet triển khai dưới đây để có thêm nhiều ý tưởng trang trí nội thất mới lạ hơn.
Tên dự án: Thiết kế spa phun xăm Alexa - Khánh Phương
Địa chỉ: Xuân La
Quy mô: 20m2
Loại công trình: Spa phun xăm
Phong cách, ý tưởng: Hiện Đại
Chủ đầu tư: Chị Phương
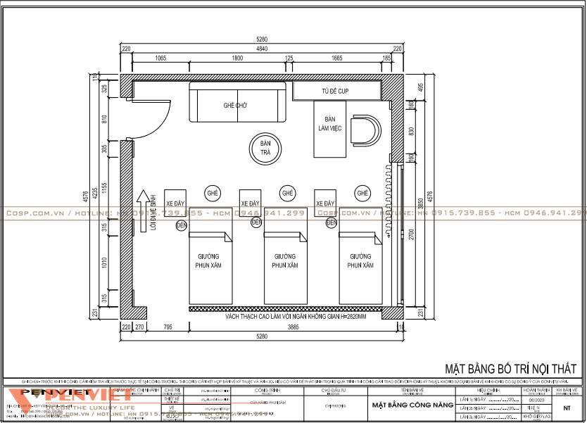
Spa phun xăm Alexa - Khánh Phương sở hữu diện tích nhỏ chỉ 20m2 nên việc bố trí nội thất đòi hỏi sự tính toán kỹ lưỡng, hợp lý. Khi lựa chọn PenViet để hợp tác, chủ đầu tư hoàn toàn có thể an tâm bởi chúng tôi có đội ngũ kiến trúc sư chuyên nghiệp, sáng tạo và giỏi chuyên môn. PenViet đưa ra phương án bố trí nội thất spa với 3 giường chức năng cùng bàn tiếp khách, bàn thu ngân tư vấn.

Mặt bằng công năng nội thất spa phun xăm Alexa
Thiết kế spa phun xăm Alexa - Khánh Phương nổi bật với gam màu sắc nhẹ nhàng, tươi sáng. Sự đồng bộ của màu sắc từ chiếc ga trải giường, màu ghế ngồi đến bàn làm việc giúp không gian spa thêm đẹp mắt, tinh tế hơn.

Màu sắc spa Alexa có sự đồng điệu, tươi sáng
Phía bức tường phía sau giường nằm là vách trang trí làm bằng thạch cao kết hợp khung sắt trang trí. Ngoài ra còn sử dụng các chi tiết như nẹp inox lá dán bản nhỏ, bản to và tấm ốp PVC vân đá tạo nên vách trang trí hoàn hảo, ấn tượng. Bộ chữ logo làm từ chân mica phát sáng, mặt inox vàng gương nổi bật trên nền vân đá trắng. Khách hàng khi đến trải nghiệm dịch vụ sẽ dễ dàng nhận thấy tên thương hiệu, logo và ghi dấu ấn trong tâm trí.

Vách trang trí nổi bật với các chi tiết nẹp inox
Trên các bức tường trống được PenViet bố trí các mẫu tranh kính có nẹp viền inox nhỏ cùng đèn LED tạo hiệu ứng nổi bật. Sự sắp xếp các đồ nội thất gọn gàng, ngăn nắp nên không gian spa tuy nhỏ gọn nhưng không hề bí bách hay ngột ngạt. Trong đó, các chi tiết nẹp viền inox chính là điểm nhấn giúp cho spa thêm phần lộng lẫy và sang trọng hơn.

Không gian spa gọn gàng và ngăn nắp
Để phục vụ khách hàng tốt nhất, PenViet bố trí bộ ghế sofa ngồi êm ái cùng bàn trà để thuận tiện tư vấn. Bàn lễ tân làm từ gỗ MDF cốt xanh Thái Lan chống ẩm kết hợp lá inox dán quanh thân bàn tô điểm thêm cho sản phẩm.
Ngoài ra, PenViet còn sắp xếp hệ giá kệ trưng bày cúp lưu niệm, kỷ niệm chương, giấy chứng nhận spa. Khách hàng sẽ cảm thấy an tâm và tin tưởng hơn vào dịch vụ phun xăm mà spa cung cấp khi nhìn thấy các vật phẩm này.

Bàn ghế tiếp khách tạo sự thoải mái cho khách hàng
Tổng thể mẫu thiết kế spa phun xăm Alexa - Khánh Phương mang phong cách hiện đại, sang trọng thu hút khách hàng. Nếu quý khách cần tư vấn thêm về các phương án trang trí nội thất, hãy liên hệ PenViet ngay hôm nay.







A. PenViet có hệ thống chi nhánh văn phòng và xưởng sản xuất ở nhiều nơi trên toàn quốc, nên giá thành sản phẩm là giá xuất xưởng, cạnh tranh nhằm đảm bảo chất lượng và dịch vụ phục vụ Khách hàng tốt nhất.
A: PenViet cung cấp dịch vụ tới mọi thành phần kinh tế, chúng tôi cung cấp dịch vụ thiết kế, thi công và bán lẻ các mặt hàng nội thất.
- Với các sản phẩm khách hàng đã có bản vẽ 2D hoặc 3D: PenViet sẽ phân tích bản vẽ và báo giá cạnh tranh.
- Với các sản phẩm cần thiết kế chi tiết: PenViet sẽ báo giá từ thiết kế đến thi công.
- Với những khách hàng mua hàng có sẵn với số lượng lớn: vui lòng liên hệ để nhận báo giá cạnh tranh.
- Đối với các Showroom có diện tích trưng bày sản phẩm rộng lớn: PenViet có khung giá phù hợp với ngân sách của khách hàng.