Dự án thiết kế trọn gói tiệm Bếp Mẹ Gấu của chủ đầu tư Mr Thế Anh tại Nguyễn Cơ Thạch, xã Vụ Bản, Nam Định có cách tổ chức không gian khoa học, hình ảnh thương hiệu rõ ràng và tối ưu diện tích 65m2. Bài viết phân tích chi tiết các điểm mạnh của dự án hướng đến những chủ đầu tư đang có nhu cầu cải tạo hoặc mở mới mô hình trà sữa, ăn vặt.
Hiện trạng trước thiết kế
.jpg)
.jpg)
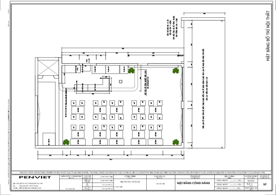
Mặt bằng công năng
.png)
Dự án được định hướng theo phong cách hiện đại, thân thiện, phù hợp với nhóm khách hàng trẻ và gia đình. Không gian được chia tách rõ ràng giữa khu vực phục vụ, quầy pha chế và khu ngồi tại chỗ, giúp vận hành trơn tru trong giờ cao điểm. Diện tích 65m2 được khai thác tối đa mà không tạo cảm giác chật chội. Cách bố trí thể hiện rõ tư duy thiết kế dành cho chủ đầu tư muốn cải tạo mặt bằng vừa và nhỏ nhưng vẫn đảm bảo hiệu quả kinh doanh.
.jpg)
Ý tưởng thương hiệu “Bếp Mẹ Gấu” được thể hiện xuyên suốt từ nội thất đến mặt tiền. Tông màu trung tính kết hợp điểm nhấn ấm áp giúp không gian gần gũi, dễ ghi nhớ. Đây là yếu tố quan trọng giúp cửa hàng nổi bật trong khu vực dân cư và trục đường đông người qua lại tại Nam Định. Với cách tiếp cận này, chủ đầu tư có thể xây dựng hình ảnh thương hiệu bền vững ngay từ giai đoạn đầu.
Thông tin dự án
Chủ đầu tư: Mr Thế Anh
Địa điểm: Nguyễn Cơ Thạch - xã Vụ Bản - Nam Định
Diện tích: 65m2 thiết kế trọn gói
Nội dung: thiết kế tiệm trà sữa và đồ ăn vặt
Mặt tiền tiệm trà sữa được thiết kế gọn gàng, dễ nhìn và tập trung vào biển hiệu chính. Logo và tên thương hiệu Bếp Mẹ Gấu được đặt ở vị trí trung tâm, dễ quan sát từ xa. Gam màu sáng kết hợp hình ảnh minh họa tạo cảm giác thân thiện, phù hợp với mô hình đồ ăn vặt trà sữa. Điều này giúp tăng khả năng nhận diện và thu hút khách hàng vãng lai.
.jpg)
Hệ cửa kính lớn được sử dụng nhằm mở rộng tầm nhìn từ bên ngoài vào không gian bên trong. Ánh sáng tự nhiên được tận dụng tối đa, tạo cảm giác thoáng đãng cho toàn bộ cửa hàng. Đây là giải pháp hiệu quả cho các chủ đầu tư cải tạo mặt bằng phố, giúp không gian nhỏ trở nên rộng rãi hơn. Mặt tiền không chỉ đẹp mà còn đóng vai trò như một công cụ marketing trực tiếp cho cửa hàng.
Không gian bên trong được sắp xếp theo trục rõ ràng, đảm bảo luồng di chuyển thuận tiện cho cả khách hàng và nhân viên. Khu vực quầy pha chế được đặt ở vị trí trung tâm, dễ quan sát và phục vụ nhanh chóng. Các bàn ghế được bố trí linh hoạt, phù hợp cho nhóm nhỏ hoặc khách đi lẻ. Cách tổ chức này giúp tối ưu số lượng chỗ ngồi mà vẫn giữ được sự thoải mái.
.jpg)
Nội thất sử dụng vật liệu bền, dễ vệ sinh và phù hợp với mô hình F&B. Màu sắc trung tính kết hợp gỗ tạo cảm giác ấm cúng, giúp khách hàng có xu hướng ngồi lại lâu hơn. Đối với chủ đầu tư, đây là yếu tố quan trọng để tăng giá trị trải nghiệm và doanh thu trên mỗi khách. Thiết kế hướng đến sự cân bằng giữa thẩm mỹ và công năng sử dụng lâu dài.
.jpg)
.jpg)
Thiết kế nội thất hướng đến trải nghiệm trẻ trung nhưng không quá cầu kỳ. Các mảng tường trang trí bằng hình vẽ minh họa đồ uống và món ăn tạo điểm nhấn sinh động. Điều này giúp không gian trở nên gần gũi, dễ chụp hình và phù hợp với xu hướng check in của khách trẻ. Với các gia đình có trẻ nhỏ, không gian vẫn đảm bảo sự an toàn và thoải mái.
.jpg)
Hệ thống chiếu sáng được bố trí đồng đều, kết hợp đèn thả tạo điểm nhấn cho từng khu vực bàn ngồi. Ánh sáng vàng ấm giúp không gian trở nên dễ chịu, phù hợp cho cả ban ngày lẫn buổi tối. Đây là giải pháp thiết kế hiệu quả cho những chủ đầu tư muốn cải tạo không gian cũ, thiếu sáng. Trải nghiệm tổng thể được nâng cao mà không cần tăng quá nhiều chi phí đầu tư.
Dự án Bếp Mẹ Gấu được triển khai theo hình thức thiết kế trọn gói từ mặt bằng 2D đến phối cảnh 3D. Điều này giúp chủ đầu tư hình dung rõ ràng không gian trước khi thi công thực tế. Các phương án được tính toán kỹ lưỡng để hạn chế phát sinh chi phí. Đây là lợi thế lớn đối với những chủ đầu tư lần đầu mở tiệm trà sữa hoặc cải tạo mặt bằng cũ.
.jpg)
Thiết kế 3D thể hiện chi tiết màu sắc, vật liệu và ánh sáng, giúp quá trình thi công bám sát ý tưởng ban đầu. Chủ đầu tư dễ dàng kiểm soát tiến độ và chất lượng công trình. Với diện tích 65m2, việc có bản vẽ trọn gói giúp tối ưu từng mét vuông sử dụng. Đây là giải pháp phù hợp cho các dự án F&B quy mô nhỏ và vừa tại khu vực tỉnh như Nam Định.
.jpg)
Dự án thiết kế tiệm trà sữa và đồ ăn vặt Bếp Mẹ Gấu tại Nam Định là minh chứng cho hiệu quả của việc cải tạo không gian bài bản, có định hướng thương hiệu rõ ràng. Với diện tích 65m2, thiết kế giúp chủ đầu tư Mr Thế Anh sở hữu một không gian kinh doanh hiện đại, tối ưu công năng và thu hút khách hàng.







A. PenViet có hệ thống chi nhánh văn phòng và xưởng sản xuất ở nhiều nơi trên toàn quốc, nên giá thành sản phẩm là giá xuất xưởng, cạnh tranh nhằm đảm bảo chất lượng và dịch vụ phục vụ Khách hàng tốt nhất.
A: PenViet cung cấp dịch vụ tới mọi thành phần kinh tế, chúng tôi cung cấp dịch vụ thiết kế, thi công và bán lẻ các mặt hàng nội thất.
- Với các sản phẩm khách hàng đã có bản vẽ 2D hoặc 3D: PenViet sẽ phân tích bản vẽ và báo giá cạnh tranh.
- Với các sản phẩm cần thiết kế chi tiết: PenViet sẽ báo giá từ thiết kế đến thi công.
- Với những khách hàng mua hàng có sẵn với số lượng lớn: vui lòng liên hệ để nhận báo giá cạnh tranh.
- Đối với các Showroom có diện tích trưng bày sản phẩm rộng lớn: PenViet có khung giá phù hợp với ngân sách của khách hàng.