Trong xu hướng ẩm thực hiện nay, những quán mì cay Hàn Quốc đang ngày càng được yêu thích tại Việt Nam. Dự án thiết kế quán mì cay Hải Linh tại Thiên Lộc, Hà Nội chú trọng đầu tư vào không gian nội thất giúp chủ quán khẳng định thương hiệu, nâng cao hiệu quả kinh doanh. Với diện tích 100m2, đội ngũ kiến trúc sư đã khéo léo tạo nên một không gian vừa mang phong cách Hàn Quốc, vừa giữ được sự gần gũi, ấm cúng phù hợp với thị hiếu của khách Việt.
Hiện trạng trước thi công
.jpg)
.jpg)
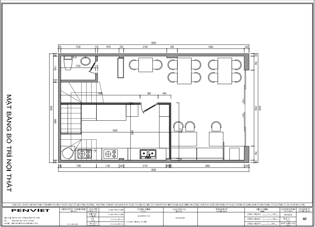
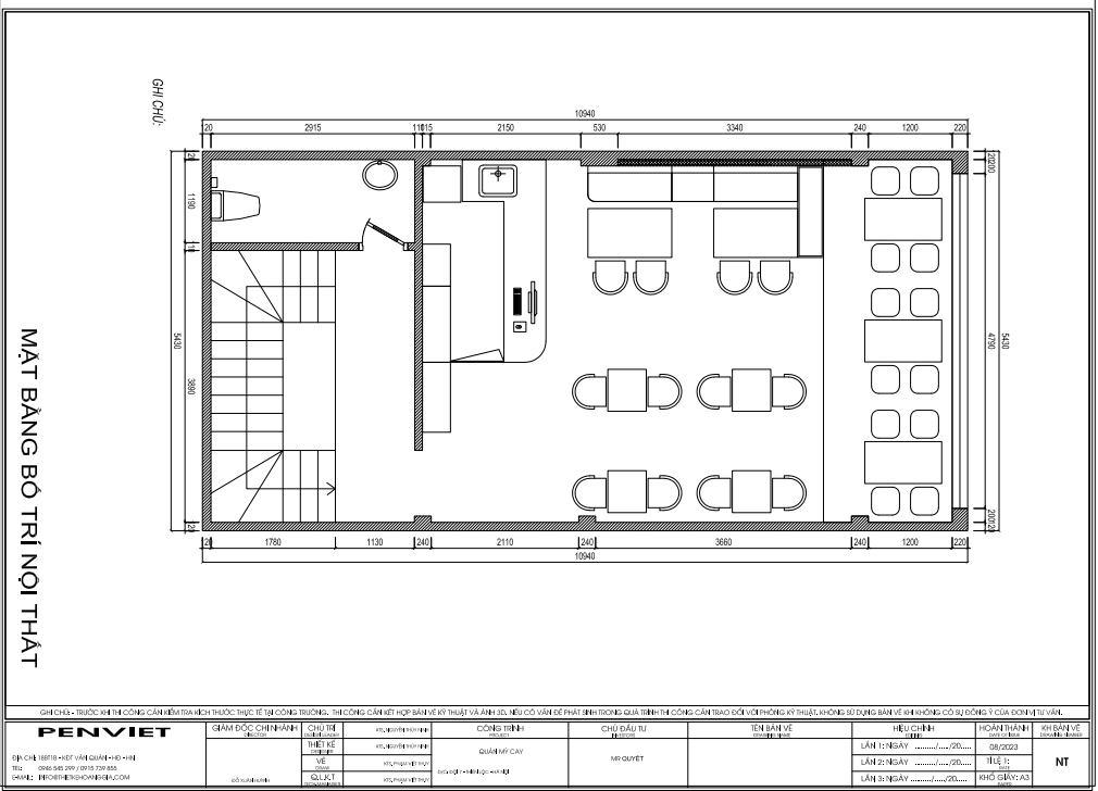
Mặt bằng công năng
.png)
.png)
Chủ đầu tư: Lê Văn Hải
Địa điểm: Thiên Lộc Hà Nội
Diện tích : 100m2
Nội dung: Thiết kế Quán Mì Cay.
Không gian quán được chia làm hai khu chính gồm khu phục vụ khách và khu bếp, quầy order. Bố cục được tổ chức khoa học, đảm bảo luồng di chuyển thuận tiện giữa các khu vực. Đây là yếu tố quan trọng giúp quán vận hành hiệu quả, đặc biệt trong khung giờ cao điểm.
Ngay từ phần mặt tiền, quán đã tạo được dấu ấn thị giác mạnh mẽ nhờ bảng hiệu nổi bật với tông màu đen chủ đạo kết hợp chữ vàng và đỏ. Thiết kế mặt tiền gọn gàng, hiện đại, dễ nhận diện từ xa, giúp khách hàng nhanh chóng ghi nhớ thương hiệu. Việc sử dụng vật liệu ốp tường giả đá sáng màu tạo cảm giác vững chắc, sang trọng và sạch sẽ.
Ý tưởng chủ đạo của thiết kế là mang lại không gian đậm chất Hàn Quốc, nhưng vẫn phù hợp với gu thẩm mỹ và hành vi tiêu dùng của khách hàng Việt. Màu đỏ là biểu tượng cho sự cay nồng đặc trưng của món ăn sử dụng khéo léo làm điểm nhấn trên nền tường xám trung tính. Sự kết hợp này không chỉ gợi lên cảm giác ấm áp mà còn giúp không gian trở nên sinh động, kích thích vị giác khách hàng ngay từ khi bước vào.
.jpg)
Bên cạnh đó, phong cách tối giản hiện đại được thể hiện rõ trong từng chi tiết nội thất. Bàn ghế gỗ công nghiệp với gam màu nâu tự nhiên, kiểu dáng vuông vức mang lại cảm giác gọn gàng, dễ sắp xếp. Ánh sáng trắng được bố trí theo từng vùng, kết hợp với hệ đèn rọi làm nổi bật những bức tranh trang trí mang đậm dấu ấn ẩm thực Hàn Quốc. Cách xử lý ánh sáng này tạo chiều sâu cho không gian, đồng thời tôn vinh từng món ăn khi được phục vụ trên bàn.
.jpg)
Mặt tiền của quán Mì cay Hải Linh được thiết kế với phong cách đơn giản nhưng hiệu quả cao về nhận diện. Tông đen chủ đạo làm nổi bật logo tô mì đỏ, cùng dòng chữ “Mì cay 7 cấp độ Hàn Quốc” tạo nên sự tương phản mạnh mẽ, dễ nhớ. Font chữ được lựa chọn mang đậm phong cách Hàn, vừa trẻ trung vừa hiện đại, phù hợp với đối tượng khách hàng mục tiêu là giới trẻ.
.jpg)
Ngoài bảng hiệu chính, biển tròn phụ đặt ở cạnh bên cũng giúp người đi bộ dễ dàng nhận biết thương hiệu khi tiếp cận từ nhiều hướng. Khu vực cửa kính lớn không chỉ tạo cảm giác mở rộng không gian mà còn giúp khách hàng nhìn thấy bên trong quán.
Hai chậu cây đặt đối xứng hai bên bậc thềm mang đến sự cân đối, mềm mại cho kiến trúc mặt tiền, đồng thời thể hiện sự chỉn chu và tinh tế của chủ đầu tư trong từng chi tiết.
Không gian phục vụ khách được chia làm nhiều nhóm bàn nhỏ, phù hợp với đa dạng nhu cầu của khách hàng. Việc bố trí lối đi thông thoáng giúp nhân viên dễ dàng phục vụ, đồng thời mang lại cảm giác thoải mái khi khách ngồi dùng bữa.
.jpg)
.jpg)
Phần tường được chia mảng rõ ràng: phía dưới sơn đỏ, phía trên là tông xám sáng, tạo cảm giác cân bằng và không bị bí bách. Những bức tranh món ăn treo xen kẽ không chỉ làm sinh động không gian mà còn đóng vai trò khơi gợi sự tò mò và kích thích khẩu vị khách hàng.
Một chi tiết đáng chú ý là các chậu cây xanh nhỏ được bố trí khéo léo trên bàn và góc tường, mang lại cảm giác tươi mát, tạo điểm nhấn tự nhiên cho không gian. Trong bối cảnh quán ăn thường có ánh sáng nhân tạo chiếm ưu thế, sự xuất hiện của yếu tố thiên nhiên giúp cân bằng thị giác và tạo cảm giác thư giãn.
.jpg)
.jpg)
Khu vực quầy bar được đặt ở vị trí trung tâm gần cửa ra vào, vừa thuận tiện cho nhân viên thao tác, vừa dễ quan sát khách hàng ra vào quán. Thiết kế quầy theo đường cong mềm mại tạo sự thân thiện, tránh cảm giác khô cứng. Mặt quầy được ốp gỗ kết hợp nẹp đen tinh tế, mang lại vẻ hiện đại và chuyên nghiệp.
.jpg)
.jpg)
.jpg)
Phía sau quầy là hệ tủ trưng bày sản phẩm khô và nguyên liệu chế biến, vừa có tác dụng trang trí vừa giúp khách hàng cảm nhận được sự minh bạch và sạch sẽ trong quy trình vận hành. Hệ thống đèn treo thả ánh vàng nhẹ trên quầy tạo điểm nhấn ấm áp, gợi lên sự thân thiện và gần gũi.
.jpg)
Ngoài ra, bảng menu được thiết kế hiện đại, bố trí rõ ràng, dễ nhìn giúp khách hàng nhanh chóng lựa chọn món. Việc tận dụng ánh sáng đèn rọi trên nền đen giúp toàn bộ khu vực này trở thành điểm nhấn thị giác mạnh, gây ấn tượng với bất kỳ ai khi bước vào quán.
.jpg)
Với diện tích chỉ 100m², bài toán đặt ra là làm sao vừa đảm bảo đủ chỗ ngồi, vừa giữ được sự thông thoáng và tiện lợi. Đội ngũ thiết kế đã khéo léo tận dụng từng khoảng diện tích để sắp xếp hợp lý. Các bàn đơn và bàn đôi được bố trí sát tường, trong khi khu vực trung tâm dành cho nhóm khách lớn hơn. Việc sử dụng ghế gỗ nhẹ giúp dễ dàng di chuyển, linh hoạt trong quá trình vận hành.
7.Khu vực nhà bếp
.jpg)
.jpg)
Sàn gỗ sáng màu không chỉ giúp không gian rộng hơn mà còn tạo cảm giác ấm cúng, sạch sẽ. Hệ thống chiếu sáng gồm đèn downlight âm trần kết hợp đèn rọi treo tạo nên hiệu ứng ánh sáng đa tầng, vừa đủ sáng, vừa làm nổi bật vật liệu và màu sắc nội thất.
Đặc biệt, không gian tầng trệt được thiết kế mở với khả năng nhìn xuyên suốt, giúp khách hàng cảm thấy thoải mái và chủ quán dễ kiểm soát toàn bộ hoạt động. Đây là một ưu điểm lớn trong thiết kế quán ăn hiện đại, đặc biệt đối với những mặt bằng có chiều sâu như công trình này.
Không chỉ dừng lại ở tính thẩm mỹ, thiết kế quán Mì cay Hải Linh còn mang lại nhiều giá trị thực tế cho chủ đầu tư. Một không gian được thiết kế bài bản giúp nâng cao hình ảnh thương hiệu, tạo ấn tượng mạnh với khách hàng và giữ chân họ quay lại. Bố cục hợp lý còn giúp tối ưu quy trình phục vụ, tiết kiệm thời gian và chi phí vận hành.
.jpg)
Việc sử dụng tông màu nhận diện thương hiệu rõ ràng giúp việc quảng bá trở nên dễ dàng hơn, đồng thời tạo tính đồng nhất trong toàn bộ hệ thống.
Dự án thiết kế quán mì cay Hải Linh tại Thiên Lộc, Hà Nội được đánh giá cao có thể nâng tầm giá trị kinh doanh cho chủ đầu tư. Từ mặt tiền đến không gian bên trong, mọi chi tiết đều được tính toán kỹ lưỡng để tạo nên một quán ăn vừa mang phong cách riêng, vừa đáp ứng tốt nhu cầu thực tế. Đối với những chủ đầu tư đang có ý định cải tạo hoặc mở mới quán ăn thì đây là gợi ý hoàn hảo.







A. PenViet có hệ thống chi nhánh văn phòng và xưởng sản xuất ở nhiều nơi trên toàn quốc, nên giá thành sản phẩm là giá xuất xưởng, cạnh tranh nhằm đảm bảo chất lượng và dịch vụ phục vụ Khách hàng tốt nhất.
A: PenViet cung cấp dịch vụ tới mọi thành phần kinh tế, chúng tôi cung cấp dịch vụ thiết kế, thi công và bán lẻ các mặt hàng nội thất.
- Với các sản phẩm khách hàng đã có bản vẽ 2D hoặc 3D: PenViet sẽ phân tích bản vẽ và báo giá cạnh tranh.
- Với các sản phẩm cần thiết kế chi tiết: PenViet sẽ báo giá từ thiết kế đến thi công.
- Với những khách hàng mua hàng có sẵn với số lượng lớn: vui lòng liên hệ để nhận báo giá cạnh tranh.
- Đối với các Showroom có diện tích trưng bày sản phẩm rộng lớn: PenViet có khung giá phù hợp với ngân sách của khách hàng.