Thiết kế nhà hàng lẩu nấm anh Bảo tại Vincom Retail Nghệ An mang đến một không gian ấn tượng với phong cách hiện đại, sạch sẽ và tối ưu vận hành. Dự án có diện tích 130m2, được thể hiện qua bố trí khoa học, màu sắc hài hòa và đường nét kiến trúc có điểm nhấn. Mỗi khu vực đều được tính toán chi tiết nhằm nâng cao trải nghiệm khách hàng và tối đa hóa hiệu suất kinh doanh. Những yếu tố này là căn cứ quan trọng cho các chủ đầu tư đang muốn cải tạo hoặc mở mới mô hình lẩu nấm theo tiêu chuẩn chuyên nghiệp.
Hiện trạng trước thiết kế
.jpg)
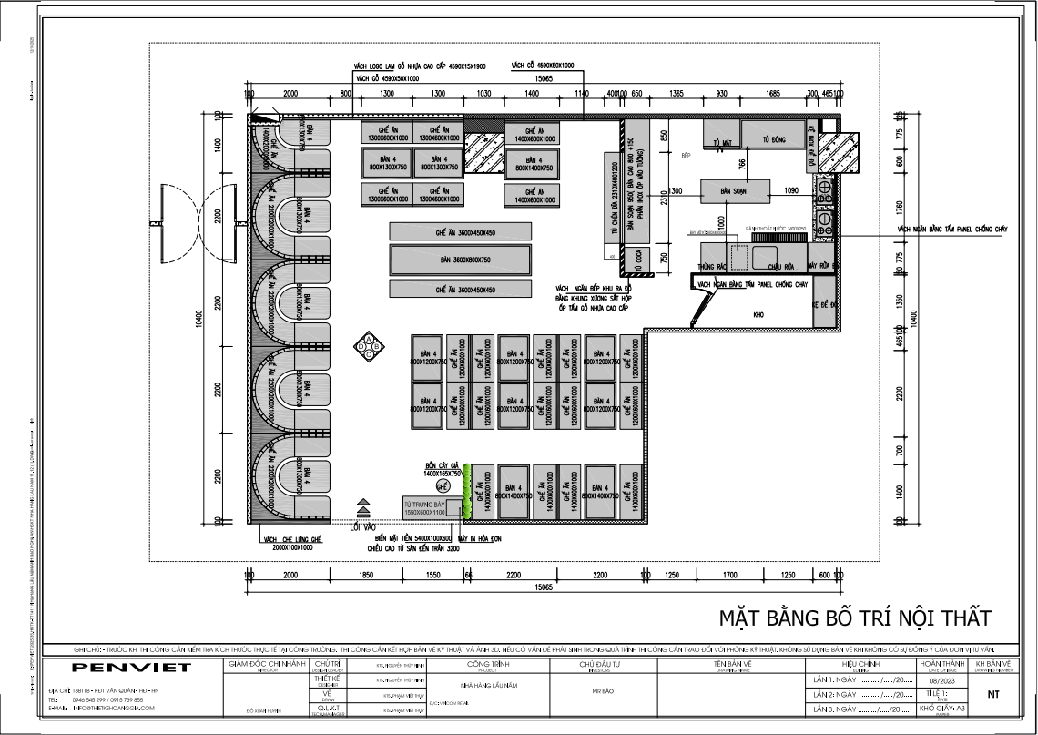
Mặt bằng công năng
.png)
Dự án thiết kế nhà hàng lẩu nấm tại Vincom Retail Nghệ An được triển khai theo hướng hiện đại và hiệu quả. Không gian 130m2 được phân chia một cách khoa học để đáp ứng nhu cầu phục vụ số lượng khách lớn trong khung giờ cao điểm. Định hướng thiết kế nhấn mạnh sự thoải mái, thẩm mỹ và phù hợp nhận diện ngành F&B. Điều này giúp nhà hàng xây dựng hình ảnh chuyên nghiệp ngay từ ấn tượng đầu tiên.
.jpg)
Không gian được định hình với gam màu gỗ, nâu và xám tạo cảm giác ấm áp. Màu cam được sử dụng như điểm nhấn phù hợp với phong cách lẩu nấm. Sự kết hợp này gợi liên tưởng đến sự gần gũi và trải nghiệm ẩm thực tự nhiên.
Thông tin dự án
Chủ đầu tư: Mr Bảo
Địa điểm: Vincom Retail Nghệ An
Diện tích: 130m2
Nội dung: thiết kế nhà hàng lẩu nấm
.jpg)
Diện tích 130m2 đòi hỏi phương án bố trí hợp lý để khai thác tối đa công năng. Không gian được chia thành nhiều khu ngồi khác nhau, phục vụ nhóm khách lớn và khách lẻ. Bàn ghế dạng booth giúp tạo sự riêng tư và tăng số lượng chỗ ngồi hữu ích.
Giữa nhà hàng là dãy bàn gỗ dài phù hợp cho nhóm đông người. Cách bố trí này giúp tối ưu hóa số lượng bàn mà không khiến không gian bị chật. Lối đi rộng rãi bảo đảm thuận tiện cho nhân viên phục vụ trong giờ cao điểm.
.jpg)
Hình ảnh cho thấy hệ trần lam gỗ kết hợp đèn chiếu sáng dạng ô vuông là chi tiết nổi bật của dự án. Thiết kế trần dạng lưới vừa tạo chiều sâu không gian vừa mang lại cảm giác sang trọng. Ánh sáng được bố trí theo nhiều tầng, gồm đèn thả và đèn âm trần, nhằm tăng hiệu ứng thị giác.
.jpg)
Sự hòa quyện của ánh sáng vàng nhẹ và màu gỗ giúp tạo bầu không khí ấm cúng. Điều này phù hợp với mô hình lẩu nấm, là loại hình cần sự thư thái và trải nghiệm ngồi lâu. Ngoài ra, hệ thống đèn được đặt đúng vị trí bàn ăn giúp món ăn trở nên hấp dẫn hơn.
Các vòm cong trên tường là một điểm nhấn thẩm mỹ trong không gian. Chi tiết đường cong được phối màu cam, trắng kết hợp đèn hắt tạo chiều sâu. Đây là phong cách trang trí giúp nhà hàng tránh sự đơn điệu.
.jpg)
Những vòm cong đồng thời tạo cảm giác mềm mại và hiện đại. Chúng làm nổi bật thương hiệu mà không cần sử dụng quá nhiều hình ảnh hoặc text. Đối với chủ đầu tư muốn cải tạo, chi tiết này là gợi ý hiệu quả cho việc tăng nhận diện mà không tốn nhiều diện tích.
Ghế booth là kiểu ghế được sử dụng xuyên suốt trong nhà hàng, với hai tông màu chủ đạo là cam và xám. Chất liệu bọc da công nghiệp mang lại cảm giác sạch sẽ và dễ vệ sinh. Đây là lựa chọn phù hợp cho mô hình lẩu, nơi cần sự chắc chắn và độ bền cao.
.jpg)
Booth ghế còn giúp định hình lối đi và phân chia khu vực rõ ràng. Nhờ đó khách hàng có không gian ăn uống riêng tư hơn. Chủ đầu tư khi cải tạo có thể áp dụng loại ghế này để tối ưu mật độ bàn ghế mà không gây cảm giác chật chội.
Bàn ăn trong nhà hàng được thiết kế mặt đá sáng kết hợp chân thép đen. Sự kết hợp này vừa sang trọng vừa dễ vệ sinh. Đối với mô hình lẩu nấm, mặt đá chịu nhiệt và không bám mùi là yếu tố rất quan trọng.
Chất liệu gỗ ốp ở ghế và bàn dài tạo sự hài hòa với hệ trần lam gỗ. Điều này giúp không gian trở nên thống nhất. Các vật liệu cũng được lựa chọn theo tiêu chí bền vững, hạn chế thay mới trong thời gian dài.
.jpg)
Cửa kính dạng vòm lớn cho phép ánh sáng tự nhiên tràn vào không gian. Điều này giúp nhà hàng tiết kiệm điện năng vào ban ngày. Ánh sáng tự nhiên còn tạo cảm giác rộng và thoáng hơn cho diện tích 130m2.
.jpg)
Đèn hắt tường xung quanh các vòm kính tạo nên sự cân bằng về ánh sáng khi về tối. Sự phối hợp giữa ánh sáng tự nhiên và nhân tạo tạo nên bầu không khí hài hòa. Điều này là yếu tố giúp khách hàng cảm nhận sự dễ chịu khi dùng bữa.
Bàn dài ở trung tâm nhà hàng là một điểm cộng lớn cho mô hình lẩu nấm. Đây là loại bàn phù hợp nhóm từ 6 đến 10 người. Mô hình nhà hàng trong trung tâm thương mại thường đón nhiều nhóm khách gia đình, nên lựa chọn này tăng khả năng phục vụ.
Bàn dài bằng gỗ mang lại sự ấm áp và tự nhiên. Ghế băng đi kèm giúp tối ưu số lượng chỗ ngồi. Thiết kế này giúp nhà hàng linh hoạt phục vụ nhiều hình thức tổ chức tiệc nhỏ.
Gam màu cam, nâu, xám được phối hài hòa để tạo nên bầu không khí ấm cúng. Màu cam giúp kích thích vị giác và phù hợp với lĩnh vực F&B. Màu xám và gỗ giúp cân bằng, mang lại cảm giác sang trọng nhưng không quá lạnh.
.jpg)
Việc chọn màu sắc nhất quán giúp nhà hàng tạo dấu ấn thương hiệu rõ ràng. Đồng thời giúp khách hàng cảm thấy thân thiện và gần gũi. Màu sắc là yếu tố mà các chủ đầu tư cần cân nhắc khi cải tạo mô hình lẩu.
Lối đi giữa các dãy booth được thiết kế rất rộng rãi. Điều này hỗ trợ nhân viên dễ dàng di chuyển trong giờ đông khách. Không gian thoáng cũng giúp giảm va chạm và tăng trải nghiệm của khách hàng.
Chiều rộng lối đi kết hợp với bố trí bàn ghế hợp lý tạo nên sự linh hoạt. Đối với nhà hàng lẩu phục vụ đồ nóng, thiết kế lối đi là điều cần ưu tiên hàng đầu. Đây là điểm mạnh lớn mà hình ảnh dự án thể hiện.
.jpg)
Một điểm đáng chú ý là sự đồng bộ trong phong cách thiết kế. Từ trần lam gỗ, tường vòm cong đến bàn ghế đều tuân theo một tông màu và đường nét nhất quán. Điều này tạo nên một không gian liền mạch và tăng tính nhận diện.
.jpg)
Sự đồng nhất giúp nhà hàng đạt độ chuyên nghiệp cao. Khi khách bước vào, hình ảnh thương hiệu được củng cố thông qua cảm nhận thị giác. Đây là yếu tố quan trọng khi cải tạo một mô hình F&B hướng đến lâu dài.
Các chi tiết trang trí trong nhà hàng được tiết chế để giữ sự gọn gàng. Đèn treo và đèn gắn tường được sử dụng làm điểm nhấn. Những vật trang trí mang tính tối giản nhằm tránh gây rối mắt cho thực khách.
Nét đơn giản này giúp không gian sạch sẽ và trẻ trung. Đây cũng là xu hướng thiết kế hiện nay tại các trung tâm thương mại. Các chủ đầu tư muốn cải tạo có thể áp dụng phong cách tối giản để giảm chi phí mà vẫn đạt hiệu quả cao.
.jpg)
Phong cách thiết kế mang hơi hướng hiện đại, phù hợp với nhóm khách trẻ trung tại Vincom. Màu sắc ấm và ánh sáng dễ chịu cũng giúp thu hút nhóm khách gia đình. Nhà hàng trở thành một điểm đến phù hợp nhiều phân khúc khách.
Không gian không quá cầu kỳ, nhưng được bố trí tiêu chuẩn mang lại sự thân thiện. Thiết kế này giúp tăng khả năng quay lại của khách. Đây là điều mà nhiều chủ đầu tư hướng đến khi cải tạo mô hình F&B.
Dự án có thể được áp dụng cho nhiều mặt bằng khác có diện tích từ 100 đến 150m2. Bố cục linh hoạt và dễ thi công giúp rút ngắn thời gian hoàn thiện. Chi phí đầu tư hợp lý nhờ sử dụng vật liệu bền và phổ biến.
Đối với các chủ đầu tư cần cải tạo nhanh để kịp tiến độ khai trương, đây là mẫu giải pháp đáng tham khảo. Thiết kế không phụ thuộc quá nhiều vào kiến trúc gốc của mặt bằng. Điều này giúp tối ưu chi phí và hiệu quả kinh doanh.
Thiết kế nhà hàng lẩu nấm anh Bảo 130m2 tại Vincom Retail Nghệ An sở hữu phong cách hiện đại, tối ưu chỗ ngồi và vận hành hiệu quả. Tông màu ấm, bố trí thông minh và điểm nhấn thẩm mỹ giúp nhà hàng tạo trải nghiệm tốt cho khách hàng. Đây là mẫu thiết kế phù hợp để nhân rộng cho nhiều mặt bằng khác trong trung tâm thương mại.







A. PenViet có hệ thống chi nhánh văn phòng và xưởng sản xuất ở nhiều nơi trên toàn quốc, nên giá thành sản phẩm là giá xuất xưởng, cạnh tranh nhằm đảm bảo chất lượng và dịch vụ phục vụ Khách hàng tốt nhất.
A: PenViet cung cấp dịch vụ tới mọi thành phần kinh tế, chúng tôi cung cấp dịch vụ thiết kế, thi công và bán lẻ các mặt hàng nội thất.
- Với các sản phẩm khách hàng đã có bản vẽ 2D hoặc 3D: PenViet sẽ phân tích bản vẽ và báo giá cạnh tranh.
- Với các sản phẩm cần thiết kế chi tiết: PenViet sẽ báo giá từ thiết kế đến thi công.
- Với những khách hàng mua hàng có sẵn với số lượng lớn: vui lòng liên hệ để nhận báo giá cạnh tranh.
- Đối với các Showroom có diện tích trưng bày sản phẩm rộng lớn: PenViet có khung giá phù hợp với ngân sách của khách hàng.