Tổng quan
Thiết kế bệnh viện tổ hợp y học cổ truyền và chăm sóc sức khỏe chất lượng cao
Chủ đầu tư: Công ty cổ phần TNH99 Việt Nam
Người đại diện: Phạm Hữu Hải
Địa chỉ: 519 -521 Lạc Long Quân, Tây Hồ, Hà Nội.
Diện tích: 2000m2
Phong cách: Hiện Đại
Thông qua khảo sát hiện trạng, các kiến trúc sư Penviet đã tư vấn và đưa ra giải pháp thiết nhằm mang đến một bệnh viện tổ hợp y học cổ truyền và chăm sóc sức khỏe chất lượng cao có diện mạo chuyên nghiệp, tối ưu công năng sử dụng.
Thiết kế bệnh viện đông y, chúng tôi tư vấn chủ đầu tư phương án thiết kế phong cách hiện đại, sử dụng màu sắc trang nhã phù hợp với đặc trưng của ngành đông y tạo được cảm giác thân thiện, gần gũi, giảm thiểu sự lo lắng, căng thẳng của người bệnh khi đến thăm khám.
Thiết kế bệnh viện tổ hợp y học cổ truyền và chăm sóc sức khỏe chất lượng cao có diện tích lên đến 2000m2 chia thành 5 tầng, do đó việc bố trí công năng phòng chức năng cũng là vấn đề quan trọng. Mẫu thiết kế bệnh viện đông y được bố trí thành 5 tầng (tầng 1,2,3,4,8) được phân thành nhiều khoa khác nhau và bố trí bảng hướng dẫn để bệnh nhân dễ dàng tìm đến nơi. Các phòng khám riêng biệt khác nhau được thiết kế một cách đơn giản nhưng bố trí đầy đủ trang thiết bị để hỗ trợ cho hoạt động chuyên môn của bác sĩ.
Cụ thể thiết kế bệnh viện đông y này như thế nào bạn ấy tham khảo ngay dưới đây!
Chi tiết thiết kế bệnh viện tổ hợp y học cổ truyền và chăm sóc sức khỏe chất lượng cao
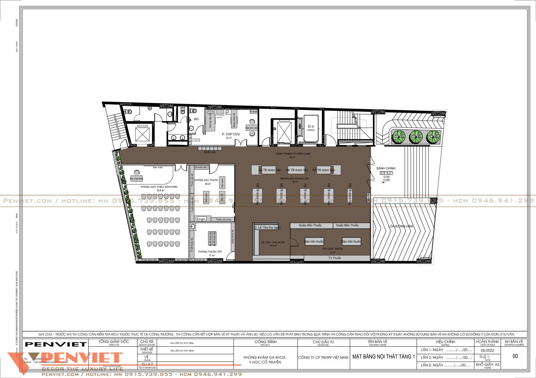
Tầng 1 được thiết với các không gian chức năng cụ thể như sau:
- Sảnh lễ tân và trưng bày thuốc
- Phòng giới thiệu sản phẩm
- Phòng sắc thuốc
- Phòng thuốc tây
- Phòng cấp cứu
- Nhà vệ sinh

Hình ảnh thiết kế tầng 1 bệnh viện đông y
Thiết kế sảnh lễ tân và trưng bày thuốc
Thiết kế sảnh lễ tân kết hợp khu vực trưng bày thuốc và bốc thuốc gây ấn tượng với khách hàng về một không gian ấn tượng và giúp họ luôn cảm nhận được sự thoải mái, ân cần khi đến đây thăm khám. Thêm vào đó, không gian được bố trí khoa học với hệ nội thất bao gồm: quầy lễ tân, kệ trưng bày dược liệu, tủ quầy thuốc đông y. Không gian ngăn nắp tiện nghi cũng góp phần củng cố thêm niềm tin, giúp cho người bệnh luôn có cảm giác an tâm khi sử dụng các dịch vụ tại đây.










Thiết kế phòng giới thiệu sản phẩm
Phòng giới thiệu sản phẩm được thiết kế trong diện tích 32,6m2 với sức chứa hơn 30 người. Phòng giới thiệu được thiết kế với phong cách hiện đại với hệ ghế ngồi đơn sắp xếp gọn gàng và khu vực bục phát biểu. Để tránh sự nhàm chán trong không gian, chúng tôi cũng setup các bức tranh với hình ảnh minh họa cho dịch vụ phòng khám và những vách ốp gỗ độc đáo.



Thiết kế phòng sắc thuốc
Khách hàng sau khi bốc thuốc có thể yêu cầu nhân viên y tế sắc thuốc hộ mình. Đồ nội thất phòng sắc thuốc đơn giản nhưng đảm bảo sự tiện ích, sạch sẽ. Chất liệu gỗ tự nhiên được lựa chọn khi thiết kế phòng sắc thuốc mang đến cảm giác thân thuộc dễ chịu.



Thiết kế phòng thuốc tây
Thiết kế phòng thuốc tây diện tích 17m2 lớn hơn diện tích tối thiểu 10m2 của bộ y tế. Cách bài trí quầy kệ tại phòng thuốc tây khoa học và tuân thủ triệt để các quy định của Chính Phủ và Bộ Y Tế về Thực hành tốt cơ sở bán lẻ thuốc.

Thiết kế Phòng cấp cứu
Phòng cấp cứu được đặt tại tầng 1 để thuận tiện trong việc tiếp nhận và xử lý những ca cấp cứu. Theo Nghị định 109/2016/ND-CP ngày 01/07/2016 Quy định cấp chứng chỉ hành nghề đối với người hành nghề và cấp giấy phép hoạt động đối với cơ sở khám bệnh, chữa bệnh, phòng cấp cứu bệnh viện đông y được thiết kế 23m2 và được setup cả tủ thuốc, bàn làm việc của bác sĩ.


Thiết kế nhà vệ sinh





Thiết kế tầng 2 với các không gian chức năng như sau:
- Sảnh lễ tân
- Khu điều trị y học cổ truyền
- Phòng khám chuyên gia 1,2,3
- Phòng Lấy máu xét nghiệm
- Phòng đo mật độ xương
- Phòng giao ban
- Phòng thanh trùng
- Kho vật tư y tế vô trùng
- Phòng thay đồ nam nữ
- Nhà vệ sinh

Hình ảnh thiết kế tầng 2 bệnh viện đông y
Thiết kế sảnh lễ tân
Sảnh lễ tân tầng 2 được PenViet tư vấn đặt ở vị trí trung tâm, để khách hàng có thể nhận được chỉ dẫn và tư vấn nhanh chóng tận tâm trong suốt quá trình sử dụng dịch vụ tại đây.
Chúng tôi thiết kế quầy thu ngân hiện đại làm từ gỗ tự nhiên kết hợp ốp PVC vân đá mang tới cảm giác vừa hiện đại, vừa sang trọng. PenViet bố trí các ghế ngồi tiện dụng cho khách, mang tới sự thuận tiện trong quá trình làm thủ tục.
Background phía sau quầy lễ tân làm từ gỗ tự nhiên tạo cảm giác gần gũi, thân thiện cũng như làm nổi bật logo mica phát sáng của phòng khám.




Thiết kế khu điều trị y học cổ truyền
Penviet sử dụng giường trị liệu và ghế ngồi cho nhân viên khung gỗ kết hợp đệm mang lại sự thoải mái cho người dùng. Ngăn cách giữa các giường trị liệu, chúng tôi sử dụng hệ rèm sáng vừa mang đến sự riêng tư vừa tạo nên hình ảnh chuyên nghiệp cho phòng điều trị.





Thiết kế phòng khám chuyên gia 1
Thiết kế phòng khám chuyên gia 1 được bố trí gọn gàng với đồ nội thất phục vụ các chức năng sử dụng của bác sĩ và bệnh nhân. Chúng tôi bố trí bàn làm việc chất liệu gỗ tự nhiên, tủ tài liệu và tủ lavabo. Ở phía đối diện là giường bệnh tạo sự thuận tiện trong quá trình bác sĩ làm việc.



Thiết kế phòng khám chuyên gia 2
Đây là nơi bác sĩ sẽ khám tổng quát cho bệnh nhân, vì thế, đồ nội thất và trang thiết bị đặc trưng của lĩnh vực được bố trí đầy đủ, đáp ứng được mọi nhu cầu trong không gian khép kín.


Thiết kế phòng khám chuyên gia 3
Bệnh nhân đến khám chữa bệnh thường mang tâm lý lo lắng, e ngại. Do vậy Penviet đã bố trí đồ nội thất, trang trí không gian một cách vừa đủ để thiết kế phòng khám trở nên thoáng rộng, giúp người bệnh bớt lo lắng.


Thiết kế phòng lấy mẫu xét nghiệm
Thiết kế bệnh viện tổ hợp y học cổ truyền và chăm sóc sức khỏe chất lượng cao luôn chú trọng tạo nên được không gian sạch sẽ, bố trí gọn gàng. Ở phòng lấy mẫu xét nghiệm được bố cục đơn giản với bàn lấy mẫu kết hợp giữa chất liệu gỗ và kính cường lực. Thiết kế kiểu dáng đơn giản nhưng phát huy tối đa công năng sử dụng.


Không thể thiếu trong thiết kế phòng lấy mẫu xét nghiệm, được bố trí hệ ghế ngồi chờ chuyên dụng cho phòng khám tông màu be nhã nhặn và lịch sự.



Thiết kế phòng đo mật độ xương
Thiết kế phòng đo mật đọ xương đơn giản và được trang bị đầy đủ trang thiết bị máy móc hiện đại phục vụ cho quá trình kiểm tra.


Thiết kế phòng thanh trùng
Phòng thanh trùng là phòng chức năng không thể thiếu khi thiết kế bệnh viện đông y. Thiết kế phòng sử dụng vật liệu an toàn, dễ vệ sinh đảm bảo không có sự xuất hiện, xâm lấn của vi trùng vi khuẩn.
Tủ lưu trữ và bảo quản vật tư y tế thiết kế dạng treo tường và để sát tường bằng chất liệu gỗ được xử lý kỹ càng đảm bảo chống ẩm và cong vênh mối mọt tốt giúp vật tư y tế luôn được đảm bảo an toàn nhất.


Thiết kế kho vật tư y tế vô trùng
Thiết kế bệnh viên nói chung và bệnh viện đông y nói riêng đều ưu tiên bố trí một không gian để làm kho vật tư y tế vô trùng. Kho vật tư y tế có chức năng tham mưu và tổ chức thực hiện các hoạt động mua sắm, quản lý, cung ứng vật tư, vật liệu y tế tiêu hao, dụng cụ, trang thiết bị y tế,….
Do đó thiết kế phòng vật tư y tế, Penviet sử dụng hệ tủ lưu trữ chất liệu gỗ MDF phủ melamin nhiều ngăn nhỏ để dễ dàng sắp sếp phân loại vật tư y tế. Thêm vào đó, kết hợp cửa kính để nhân viên y tế dễ dàng tìm kiếm và quản lý.

Bàn làm vệc đơn kết hợp ngăn tủ tài liệu và ghế xoay tiện lợi cho y bác sĩ khi di chuyển.

Thiết kế phòng giao ban
Phòng giao ban được sử dụng tông màu trắng tạo không gian thoáng hơn ,tạo điểm nhấn với đồ nội thất màu nâu gỗ đem lại sự sang trọng hiện đại.


Thiết kế phòng thay đồ nam


Thiết kế phòng thay đồ nữ


Thiết kế nhà vệ sinh


Tầng 3 bệnh viện đông y được bố trí các phòng chức năng như sau:
- Sảnh lễ tân
- Khu điều trị y học cổ truyền
- Khu phục hồi vận động chức năng vật lý trị liệu bằng máy
- Khu hồi phục vận động trị liệu
- Phòng khám chuyên gia
- Phòng vô trùng cấy chỉ 1,2
- Phòng xông hơi thuốc
- Phòng ĐTB điện tử trường
- Phòng ĐTB sóng xung kích
- Phòng ĐTB sóng ngắn
- Phòng giao ban
- Phòng thay đồ nam, nữ
- Nhà vệ sinh

Hình ảnh thiết kế tầng 3 bệnh viện đông y
Thiết kế khu điều trị y học cổ truyền và khu phục hồi vận động chức năng vật lý trị liệu bằng máy





Khu hồi phục vận động trị liệu





Thiết kế phòng khám chuyên gia


Thiết kế phòng cấy chỉ vô trùng 1


Thiết kế phòng cấy chỉ vô trùng 2


Thiết kế phòng xông hơi thuốc


Thiết kế phòng ĐTB điện tử trường


Thiết kế phòng ĐTB sóng xung kích


Thiết kế phòng ĐTB sóng ngắn


Thiết kế phòng giao ban


Thiết kế phòng thay đồ nam


Thiết kế phòng thay đồ nữ


Thiết kế nhà vệ sinh


- Sảnh lễ tân
- Phòng VIP 1,2,3,4,5,6
- Phòng lưu bệnh nhân
- Phòng giao ban
- Phòng trực bác sĩ
- Nhà vệ sinh

Hình ảnh thiết kế tầng 4 bệnh viện đông y
Thiết kế sảnh lễ tân






Thiết kế phòng VIP 1





Thiết kế phòng VIP 2



Thiết kế phòng VIP 3




Thiết kế phòng VIP 4





Thiết kế phòng VIP 5





Thiết kế phòng VIP 6






Thiết kế phòng lưu bệnh nhân




Thiết kế giao ban


Thiết kế phòng trực bác sĩ


Thiết kế nhà vệ sinh


- Sảnh lễ tân
- Khu văn phòng
- Phòng họp lớn
- Khu bếp nấu
- Khu ăn uống – café
- Phòng dự phòng
- Nhà vệ sinh

Hình ảnh thiết kế tầng 8 bệnh viện đông y
Thiết kế sảnh lễ tân





Thiết kế văn phòng làm việc




Thiết kế phòng họp lớn




Thiết kế nhà bếp nấu



Thiết kế khu ăn uống cafe






Thiết kế phòng dự phòng


Thiết kế nhà vệ sinh


Tài liệu tham khảo về các tiêu chuẩn của bệnh viện đông y:
Quy định Căn cứ Luật Khám bệnh, chữa bệnh số 40/2009/QH12;
Nghị định số 188/2007/NĐ-CP ngày 27/12/2007 của Chính phủ quy định chức năng, nhiệm vụ, quyền hạn và cơ cấu tổ chức của Bộ Y tế;
Nghị định số 22/2010/NĐ-CP ngày 09/3/2010 của Chính phủ sửa đổi, bổ sung Điều 3 Nghị định số 188/2007/NĐ-CP ngày 27/12/2007 của Chính phủ quy định chức năng, nhiệm vụ, quyền hạn và cơ cấu tổ chức của Bộ Y tế;
Quyết định số 30/2008/QĐ-TTg của Thủ tướng Chính phủ phê duyệt quy hoạch phát triển mạng lưới khám, chữa bệnh đến năm 2010 và tầm nhìn đến năm 2020;
Quyết định số 153/2006/QĐ-TTg ngày 30/6/2006 của Thủ tướng Chính phủ phê duyệt Quy hoạch tổng thể phát triển hệ thống y tế Việt Nam giai đoạn đến năm 2010 và tầm nhìn đến năm 2020;



Q: PenViet có nhận thiết kế và thi công trọn gói không hay chỉ chuyên về thiết kế?
A: PenViet nhận thiết kế và thi công trọn gói trên toàn quốc. Các văn phòng, chi nhánh của PenViet được đặt tại nhiều địa điểm nhằm cung cấp các dịch vụ không chỉ tại các trung tâm của cả nước mà còn phục vụ tới cả vùng biên giới, hải đảo xa xôi.
Q: Thời gian thiết kế và thi công bao lâu thì xong?
A: Vâng, đây là yếu tố được nhiều khách hàng quan tâm khi chuẩn bị thiết kế và thi công nội thất. Với những diện tích nhỏ thì thời gian thi công nhanh. Cụ thể như sau:
- Diện tích <100m2:
+ Thời gian thiết kế: từ 5 đến 7 ngày
+ Thời gian thi công: 10 đến 12 ngày
(Áp dụng trên toàn quốc)
- Diện tích >100m2:
+ Thời gian thiết kế: từ 7 đến 10 ngày
+ Thời gian thi công: 10 đến 15 ngày
(Áp dụng trên toàn quốc)
- Diện tích >500m2: Quý khách vui lòng liên hệ trực tiếp để biết thời gian thiết kế và thi công cụ thể.
Q: Giá thi công của PenViet cao hay thấp?
A. PenViet có hệ thống chi nhánh văn phòng và xưởng sản xuất ở nhiều nơi trên toàn quốc, nên giá thành sản phẩm là giá xuất xưởng, cạnh tranh nhằm đảm bảo chất lượng và dịch vụ phục vụ Khách hàng tốt nhất.
Q: PenViet thiết kế và thi công nội thất như thế nào?
A: PenViet cung cấp dịch vụ tới mọi thành phần kinh tế, chúng tôi cung cấp dịch vụ thiết kế, thi công và bán lẻ các mặt hàng nội thất.
- Với các sản phẩm khách hàng đã có bản vẽ 2D hoặc 3D: PenViet sẽ phân tích bản vẽ và báo giá cạnh tranh.
- Với các sản phẩm cần thiết kế chi tiết: PenViet sẽ báo giá từ thiết kế đến thi công.
- Với những khách hàng mua hàng có sẵn với số lượng lớn: vui lòng liên hệ để nhận báo giá cạnh tranh.
- Đối với các Showroom có diện tích trưng bày sản phẩm rộng lớn: PenViet có khung giá phù hợp với ngân sách của khách hàng.
Q: Khách hàng ở xa thì PenViet có nhận thiết kế và thi công không?
Q: PenViet nhận thiết kế và thi công trên toàn quốc. Ngoài ra, chúng tôi còn xuất khẩu cả sang thị trường nước ngoài.
Q: Chế độ bảo hành và bảo trì của PenViet thế nào?
A: Hầu hết các sản phẩm của PenViet được bảo hành từ 1 đến 2 năm (tùy chủng loại) và bảo trì vĩnh viễn (có tính phí khi thực hiện bảo trì).