Tổng quan
Thiết kế phòng khám nhi ThyCa Clinic đạt tiêu chuẩn y tế
Chủ đầu tư : A Giang
Địa chỉ : Thái Bình
Diện tích : 55,8m2
Phong cách thiết kế : hiện đại
Hạng mục:
- Thiết kế mặt tiền
- Thiết kế nội thất phòng khám nhi: phòng lễ tân, phòng khám nội, phòng khám nhi.
Yêu cầu: Sau khi xây dựng một ngôi nhà phục vụ cho việc tạo dựng một phòng khám nhi nhằm mang đến một nơi thăm khám uy tín cho người dân ở Thái Bình. Anh Giang đã tìm đến Penviet với mong muốn thiết kế phòng khám nhi đạt tiêu chuẩn y tế và đảm bảo yếu tố thẩm mỹ cao nhất.
Ý tưởng thiết kế phòng khám nhi ThyCa Clinic
Thiết kế phòng khám nhi, bên cạnh việc tuân thủ các điều kiện cơ sở vật chất, địa điểm được quy định rõ ràng trong luật, thì những yếu tố thẩm mỹ và cảm xúc cũng vô cùng quan trọng. Bởi vì tâm trạng của trẻ chính là điều kiện quan trọng giúp quá trình thăm khám được diễn ra thuận lợi hay không.
Khi thiết kế phòng khám nhi ThyCa Clinic, kiến trúc sư Penviet đã nghiên cứu kỹ càng hiện trạng mặt bằng và trao đổi ý tưởng với chủ đầu tư, nhằm mang đến không gian thăm khám giúp truyền cảm hứng cho sự tự tin, hy vọng và khuyến khích sự vui tươi cho trẻ nhỏ. Cụ thể:
Phong cách thiết kế: lựa chọn phong cách thiết kế hiện đại kết hợp giữa màu trắng và xanh chủ đạo sẽ giúp không gian thông thoáng dễ chịu hơn cho khách hàng. Thêm vào đó, nhiều chi tiết décor trang trí màu sắc tạo dựng tổng thể không gian sinh động giúp trẻ cảm thấy vui vẻ thích thú.
Nội thất: Đồ nội thất phòng khám chủ yếu bằng chất liệu Gỗ MDF cốt xanh Thái Lan chống ẩm được xử lý kỹ càng đảm bảo an toàn cho người sử dụng. Mọi góc cạnh của đồ nội thất đều được xử lý bo góc mềm mại tránh gây tổn thương khi có va chạm.

Thiết kế mặt tiền phòng khám nhi ThyCa Clinic
Thiết kế mặt tiền là hạng mục rất quan trọng khi thiết kế phòng khám nhi. Bởi vì một mặt tiền nổi bật, chuyên nghiệp chắc chắn sẽ thu hút ánh mắt người đi đường và để lại những ấn tượng nhất định trong họ.
Thiết kế mặt tiền phòng khám nhi ThyCa Clinic mang đến diện mạo mới mẻ hoàn hảo với việc sử dụng hệ biển chính lớn và biển cột. Chất liệu khung sắt hộp 20x20 ốp tấm hợp kim nhôm Alumium được tư vấn lựa chọn cho hệ biển bảng vừa giúp biển bảng bền chắc hơn vừa mang đến vẻ đẹp hiện đại.


Trên khung biển vững chắc nổi bật lên bộ nhận diện thương hiệu của phòng khám bằng chất liệu chân fomex mặt mica phát sáng.

Thiết kế nội thất phòng khám nhi ThyCa Clinic
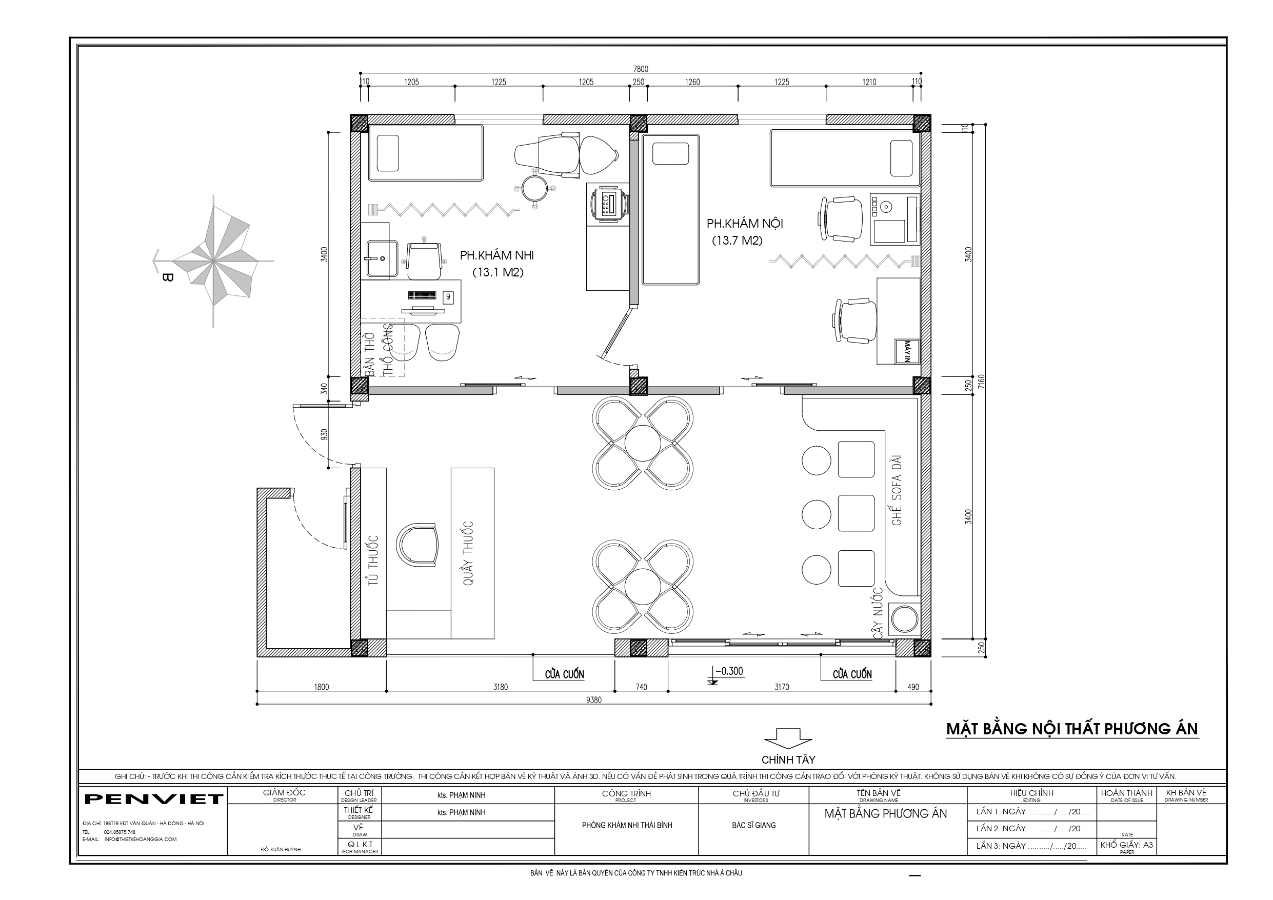
Thiết kế phòng khám nhi với tổng diện tích 56m2, kiến trúc sư đã tính toán cẩn thận bố trí không gian đáp ứng đầy đủ công năng sử dụng bao gồm: phòng tiếp đón và quầy thuốc (29,2m2), phòng khám nội (13,7m2) , phòng khám nhi (13,1m2). Tất cả không gian đều đáp ứng đầy đủ các tiêu chuẩn y tế cần thiết.

Thiết kế phòng lễ tân và quầy thuốc
Khu vực lễ tân chính là nơi khách hàng tiếp xúc với phòng khám và tạo những ấn tượng đầu tiên sâu sắc trong lòng khách hàng. Thiết kế phòng lễ tân giúp họ luôn cảm nhận được sự thoải mái, cởi mở và ân cần khi đến thăm khám. Bên cạnh đó, một không gian chuyên nghiệp cũng phần nào củng cố thêm niềm tin, giúp cho bệnh nhân và những người thân luôn có cảm giác an tâm khi sử dụng các dịch vụ tại đây.
Penviet bố trí khu vực tiếp đón khách hàng và nhà thuốc kết hợp vừa để tận dụng không gian vừa để các nhân viên của phòng khám đều có thể tiếp nhận và tư vấn tận tình cho từng người bệnh.
Chúng tôi lựa chọn mẫu quầy lễ tân hình chữ L với chất liệu gỗ MDF cốt xanh Thái Lan chống ẩm sơn màu trắng, xanh tạo những nét hài hòa. Bộ logo và bộ chữ bằng alu in UV tăng nét đẹp hiện đại vừa tăng độ nhận diện thương hiệu.
Phía sau quầy được tận dụng setup hệ tủ thuốc hiện đại Gỗ MDF cốt xanh Thái Lan chống ẩm phủ melamin kết hợp kính cửa lùa giúp nhân viên y tế dễ dàng sắp xếp và quan sát thuốc bên trong. Trán tủ setup bộ nhận diện thương hiệu bằng Mica dẹt, khiến khu vực lễ tân trong thiết kế phòng khám nhi này trở nên cuốn hút hơn.

Không gian chờ và tiếp đón khách hàng cũng được chúng tôi bố trí ghế sofa bọc nỉ êm ái dáng chữ Y với gam màu xanh bắt mắt. Để giải tỏa tâm lý áp lực, căng thẳng cho trẻ khi đến thăm khám, chúng tôi cũng trang trí vách tường với các hình thù dễ thương và đèn trang trí độc đáo. Từ đó giúp không gian có thêm điểm nhấn, hạn chế sự nhàm chán đơn điệu.


Thiết kế phòng khám nhi
Thiết kế phòng khám nhi diện tích hơn 13,1m2 với một bàn làm việc, 1 giường thăm khám và 1 kệ di động. Thiết kế phòng khám này đã vượt qua những tiêu chuẩn tại Điều 26, Nghị định 109/2016/NĐ-CP của Chính Phủ ký ngày 01/07/2016.




Thiết kế phòng khám nội
Với kinh nghiệm và sự am hiểu kỹ lưỡng về những quy định thiết kế phòng khám nhi, các kiến trúc sư đã lên ý tưởng và thiết kế mẫu phòng khám nội theo phong cách hiện đại, tối giản nhưng vẫn đảm bảo đầy đủ công năng theo quy định, giúp khách hàng cảm nhận được sự chuyên nghiệp.




Trên đây là toàn bộ mẫu thiết kế phòng khám nhi ThyCa Clinic được Penviet thiết kế và thi công trọn gói. Hi vọng mẫu thiết kế này sẽ giúp bạn có những ý tưởng cho phòng khám của riêng mình. Nếu bạn cần tư vấn thiết kế phòng khám có thể liên hệ ngay với Penviet bạn nhé!
Các mẫu thiết kế phòng khám nhi nên tham khảo:
Thiết kế bệnh viện nhi quốc tế chất lượng cao MedGreen 1200m2
Thiết kế phòng khám chuyên khoa nhi



Q: PenViet có nhận thiết kế và thi công trọn gói không hay chỉ chuyên về thiết kế?
A: PenViet nhận thiết kế và thi công trọn gói trên toàn quốc. Các văn phòng, chi nhánh của PenViet được đặt tại nhiều địa điểm nhằm cung cấp các dịch vụ không chỉ tại các trung tâm của cả nước mà còn phục vụ tới cả vùng biên giới, hải đảo xa xôi.
Q: Thời gian thiết kế và thi công bao lâu thì xong?
A: Vâng, đây là yếu tố được nhiều khách hàng quan tâm khi chuẩn bị thiết kế và thi công nội thất. Với những diện tích nhỏ thì thời gian thi công nhanh. Cụ thể như sau:
- Diện tích <100m2:
+ Thời gian thiết kế: từ 5 đến 7 ngày
+ Thời gian thi công: 10 đến 12 ngày
(Áp dụng trên toàn quốc)
- Diện tích >100m2:
+ Thời gian thiết kế: từ 7 đến 10 ngày
+ Thời gian thi công: 10 đến 15 ngày
(Áp dụng trên toàn quốc)
- Diện tích >500m2: Quý khách vui lòng liên hệ trực tiếp để biết thời gian thiết kế và thi công cụ thể.
Q: Giá thi công của PenViet cao hay thấp?
A. PenViet có hệ thống chi nhánh văn phòng và xưởng sản xuất ở nhiều nơi trên toàn quốc, nên giá thành sản phẩm là giá xuất xưởng, cạnh tranh nhằm đảm bảo chất lượng và dịch vụ phục vụ Khách hàng tốt nhất.
Q: PenViet thiết kế và thi công nội thất như thế nào?
A: PenViet cung cấp dịch vụ tới mọi thành phần kinh tế, chúng tôi cung cấp dịch vụ thiết kế, thi công và bán lẻ các mặt hàng nội thất.
- Với các sản phẩm khách hàng đã có bản vẽ 2D hoặc 3D: PenViet sẽ phân tích bản vẽ và báo giá cạnh tranh.
- Với các sản phẩm cần thiết kế chi tiết: PenViet sẽ báo giá từ thiết kế đến thi công.
- Với những khách hàng mua hàng có sẵn với số lượng lớn: vui lòng liên hệ để nhận báo giá cạnh tranh.
- Đối với các Showroom có diện tích trưng bày sản phẩm rộng lớn: PenViet có khung giá phù hợp với ngân sách của khách hàng.
Q: Khách hàng ở xa thì PenViet có nhận thiết kế và thi công không?
Q: PenViet nhận thiết kế và thi công trên toàn quốc. Ngoài ra, chúng tôi còn xuất khẩu cả sang thị trường nước ngoài.
Q: Chế độ bảo hành và bảo trì của PenViet thế nào?
A: Hầu hết các sản phẩm của PenViet được bảo hành từ 1 đến 2 năm (tùy chủng loại) và bảo trì vĩnh viễn (có tính phí khi thực hiện bảo trì).