Thiết kế phòng khám, Thiết kế phòng khám quốc tế, Thiết kế nhà thuốc, Thiết kế bệnh viện,
Mẫu thiết kế phòng khám đang vẫn đang là từ khóa được rất nhiều người tìm kiếm, bởi khi nhu cầu cuộc sống thay đổi, con người không chỉ muốn được thăm khám sức khỏe định kỳ mà còn muốn được chăm sóc toàn diện, được thăm khám tại các cơ sở y tế chuyên nghiệp, không gian sạch sẽ, chỉn chu. Hiểu được điều đó, anh Thắng - chủ đầu tư dự án đã cùng phối hợp với Penviet để đưa ra mẫu thiết kế phòng khám quốc tế vừa đáp ứng được đúng quy định, vừa đảm bảo đầy đủ những yêu cầu về công năng, thẩm mỹ.
Với mong muốn có một mẫu thiết kế phòng khám có đầy đủ công năng, đảm bảo sự vận hành và mang đến hình ảnh chuyên nghiệp, phần nào giải tỏa được sự lo lắng của khách hàng, anh Thắng - chủ đầu tư của dự án đã tìm hiểu và lựa chọn Penviet là đơn vị đồng hành cùng anh trong thiết kế và thi công dự án này.

Hiện trạng mặt bằng phòng khám còn thô sơ
Với diện tích mặt bằng không quá lớn nên Penviet hiểu rằng, việc bố trí không gian, sắp xếp nội thất khoa học là vô cùng quan trọng để đảm bảo quy định Thông tư số 41/2011/TT-BYT ngày 14/11/2011 quy định về điều kiện cấp chứng chỉ hành nghề và cấp giấy phép hoạt động đối với cơ sở khám chữa bệnh và Điều 26, Nghị định 109/2016/NĐ-CP của Chính Phủ ký ngày 01/07/2016 về việc Quy định cấp chứng chỉ hành nghề và cấp giấy phép hoạt động đối với cơ sở khám bệnh, chữa bệnh về thiết kế phòng khám.

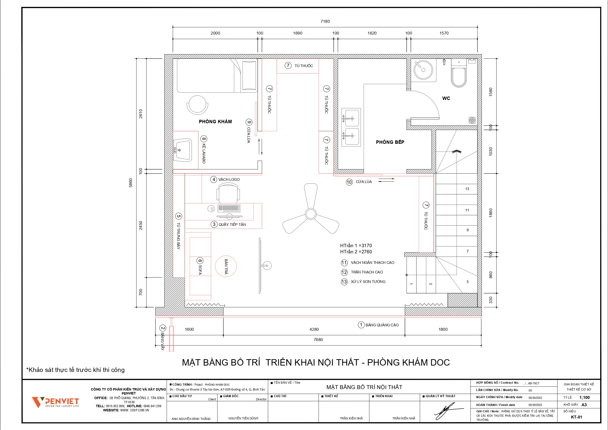
Mặt bằng bố trí triển khai nội thất phòng khám DOC
Chúng tôi tư vấn cho chủ đầu tư lựa chọn phong cách thiết hiện đại, sang trọng với gam màu chủ đạo là màu xanh nước biển và trắng. Theo đó, Penviet sẽ tiến hành thi công, xây dựng cải tạo phần thô với các hạng mục như trần thạch cao khung xương Vĩnh Tường, sơn bả lại phần trần và tường để che đi những khuyết điểm về phần thô của phòng khám.
Có vị trí nằm tại sảnh chung cư Ehome 3 Tây Sài Gòn, phòng khám DOC được thiết kế biển hiệu trên với khung sắt gia cố ốp Alu làm nổi bật bộ chữ và logo Mica. Biển hiệu dọc 2 bên phòng khám được thiết kế với chất liệu Mica dẹp cắt CNC mang đến vẻ đẹp hiện đại, thể hiện sự chuyên nghiệp của phòng khám với khách hàng.
Giữa nhiều cửa tiệm kinh doanh tại các sảnh chung cư, để làm nổi bật và gây được sự chú ý với khách hàng, mẫu thiết kế phòng khám quốc tế DOC còn được bố trí thêm biển vẫy với hình ảnh biểu tượng của ngành Y Dược. Khung sắt gia cố chắc chắn với hộp tranh đèn phát sáng càng làm tôn lên nét đẹp hiện đại, đồng thời thể hiện sự sáng tạo của các kiến trúc sư Penviet.

Phòng khám quốc tế DOC có vị trí mặt tiền tại sản chung cư
Khu vực lễ tân chính là nơi gây ấn tượng cho khách hàng, giúp họ luôn cảm nhận được sự thoải mái, cởi mở và ân cần khi đến thăm khám. Bên cạnh đó, một không gian chuyên nghiệp cũng phần nào củng cố thêm niềm tin, giúp cho bệnh nhân và những người thân luôn có cảm giác an tâm khi sử dụng các dịch vụ tại đây. Penviet lựa chọn bố trí khu vực tiếp đón khách hàng tại vị trí trung tâm để các nhân viên của phòng khám đều có thể tiếp nhận và tư vấn tận tình cho từng người bệnh.
Chúng tôi lựa chọn mẫu quầy lễ tân hình chữ L nhằm tận dụng tối ưu không gian, với chất liệu gỗ MDF phủ melamine sơn màu trắng, xanh tạo những nét hài hòa, đồng bộ với phòng khám.

Mẫu quầy lễ tân được thiết kế giúp khách hàng được chào đón nồng nhiệt
Phía sau quầy được trang trí vách logo khung gỗ MDF, mặt giữa được ốp nhựa PVC họa tiết vân đá, 2 bên được nẹp các lam gỗ không chỉ mang đến cảm giác thân thuộc mà còn làm tôn lên bộ nhận diện thương hiệu bằng Mica uốn nổi, khiến khu vực lễ tân trong thiết kế phòng khám này trở nên cuốn hút hơn.
Không gian chờ và tiếp đón khách hàng cũng được chúng tôi bố trí ghế sofa bọc nỉ êm ái với gam màu xanh bắt mắt. Tại vị trí trung tâm, các kiến trúc sư cũng khéo léo đặt bộ bàn ghế gỗ giúp khách hàng trong quá trình chờ đợi thăm khám không cảm thấy bất tiện và khó chịu. Đây cũng là không gian giúp các Dược sĩ trong phòng khám có thể trao đổi, tư vấn tận tình cho bệnh nhân về cách dùng thuốc chi tiết.

Bàn ghế được bố trí khoa học trong phòng khám
Bố trí không gian khoa học là một trong những cách thức được chúng tôi sử dụng để xây dựng phòng khám đáp ứng được các tiêu chuẩn mà Bộ Y Tế và Chính phủ quy định.
Theo đó, nhằm tận dụng triệt để tối ưu không gian, hệ tủ thuốc được bố trí đặt áp tường và thiết kế áp sát trần giúp tạo thêm không gian trưng bày các sản phẩm.

Hệ tủ thuốc được thiết kế khoa học giúp đảm bảo chất lượng thuốc
Hệ tủ được thiết kế với chất liệu gỗ MDF phủ melamine có bản lề và kính cường lực dày vừa đảm bảo sự an toàn, chất lượng, vừa giúp phòng khám trưng bày được đầy đủ thuốc, thực phẩm chức năng như một thiết kế nhà thuốc mini đầy tiện nghi. Bên cạnh đó, mẫu thiết kế phòng khám có hệ tủ thuốc này còn giúp các nhân viên, Dược sĩ dễ dàng tìm đúng loại thuốc khi hệ tủ được phân chia thành các ô theo tầng rõ ràng, đặc biệt lối thiết kế này cũng không xảy ra tình trạng lộn xộn hàng hóa, gây khó tìm kiếm các mặt hàng.
Để giải tỏa tâm lý áp lực, căng thẳng khi đến thăm khám, chúng tôi cũng trang trí vách tường với các loại tranh in PP nẹp khung gỗ có đèn chiếu sáng. Từ đó giúp không gian có thêm điểm nhấn, không có cảm giác lạnh lẽo và trống trải.

Phòng khám thiết kế DOC được tận dụng triệt để không gian
Việc setup không gian của phòng khám quốc tế DOC được chúng tôi tuân thủ triệt để theo Điều 26, Nghị định 109/2016/NĐ-CP của Chính Phủ ký ngày 01/07/2016 về việc Quy định cấp chứng chỉ hành nghề và cấp giấy phép hoạt động đối với cơ sở khám bệnh, chữa bệnh: Phải có phòng khám bệnh, chữa bệnh diện tích ít nhất là 10m2 và nơi đón tiếp người bệnh.
Với diện tích 43m2, ngoài không gian tiếp đón khách hàng, chúng tôi thiết kế phòng khám riêng của bác sĩ và bệnh nhân theo đúng Thông tư được quy định. Để phân chia không gian, chúng tôi thiết kế phần vách ngăn thạch cao với khung xương chắc chắn được sơn và trám thạch cao 2 mặt. Cửa lùa được thiết kế với khung nhôm và ray kéo giúp quá trình đóng mở tiện ích, không gây ra tình trạng trẻ bị kẹt tay thương tâm.

Thiết kế phòng khám theo quy định của Bộ Y tế và Chính phủ
Thiết kế phòng khám quốc tế DOC diện tích hơn 15m2 với một bàn làm việc, 1 giường thăm khám và 1 kệ Lavabo. Thiết kế phòng khám này đã vượt qua những tiêu chuẩn tại Điều 26, Nghị định 109/2016/NĐ-CP của Chính Phủ ký ngày 01/07/2016.
Để giúp bác sĩ có đầy đủ cơ sở vật chất kỹ thuật thực hiện thăm khám, chúng tôi đặt bàn làm việc gỗ MDF phủ melamine với 2 ray kéo tiện lợi được đặt áp tường khéo léo giới hạn không gian phòng khám.

Phòng khám đầy đủ tiện nghi giúp bác sĩ thăm khám tiện lợi
Bên cạnh đó, kệ Lavabo được thiết thế tối giản phù hợp với đặc điểm mặt bằng giúp mở rộng khu vực cho phòng khám, đồng thời đảm bảo những tiêu chuẩn vệ sinh, giảm thiểu tối đa sự lây nhiễm trong cộng đồng.
Với sự am hiểu kỹ lưỡng về những quy định thiết kế phòng khám, các kiến trúc sư đã lên ý tưởng và thiết kế mẫu phòng khám quốc tế DOC theo phong cách hiện đại, tối giản nhưng vẫn đảm bảo đầy đủ công năng theo quy định, giúp khách hàng cảm nhận được sự chuyên nghiệp, một phòng khám mang “hơi thở” quốc tế như đúng tên gọi.
Nếu bạn đang tìm kiếm một đơn vị hàng đầu về thiết kế phòng khám, bệnh viện, thiết kế nhà thuốc với những ý tưởng sáng tạo tuyệt vời, tối ưu triệt để không gian và đáp ứng đúng theo quy định của Bộ Y tế và Chính phủ quy định thì bạn hãy liên hệ với đội ngũ kiến trúc sư Penviet để được tư vấn và giải đáp ngay nhé! Với sự am hiểu tường tận và kinh nghiệm được đúc rút qua nhiều dự án thì Penviet tự tin sẽ làm khách hàng cảm thấy hài lòng!







A. PenViet có hệ thống chi nhánh văn phòng và xưởng sản xuất ở nhiều nơi trên toàn quốc, nên giá thành sản phẩm là giá xuất xưởng, cạnh tranh nhằm đảm bảo chất lượng và dịch vụ phục vụ Khách hàng tốt nhất.
A: PenViet cung cấp dịch vụ tới mọi thành phần kinh tế, chúng tôi cung cấp dịch vụ thiết kế, thi công và bán lẻ các mặt hàng nội thất.
- Với các sản phẩm khách hàng đã có bản vẽ 2D hoặc 3D: PenViet sẽ phân tích bản vẽ và báo giá cạnh tranh.
- Với các sản phẩm cần thiết kế chi tiết: PenViet sẽ báo giá từ thiết kế đến thi công.
- Với những khách hàng mua hàng có sẵn với số lượng lớn: vui lòng liên hệ để nhận báo giá cạnh tranh.
- Đối với các Showroom có diện tích trưng bày sản phẩm rộng lớn: PenViet có khung giá phù hợp với ngân sách của khách hàng.