Tổng quan
Chủ đầu tư: Chị Hương
Địa chỉ: Vạn Thắng, Ba vì, Hà Nội
Diện tích: 28m2
Phong cách, ý tưởng : Hiện đại
Hạng mục:
- Thiết kế mặt tiền
- Thiết kế nội thất phòng khám nha khoa
Sở hữu mặt bằng trống 28m2, chị Hương mong muốn sở hữu mẫu thiết kế phòng khám răng hàm mặt đáp ứng được những tiêu chuẩn của bộ y tế ban hành và đáp ứng yêu cầu của phòng cháy chữa cháy. Thêm vào đó, tạo ra không gian phòng khám ấn tượng, hiện đại, được bố trí sắp xếp phù hợp để tạo nên sự tiện nghi và dễ dàng cho việc khám chữa bệnh.
Hiện thực hóa ý tưởng thiết kế phòng khám răng hàm mặt Lan Hương
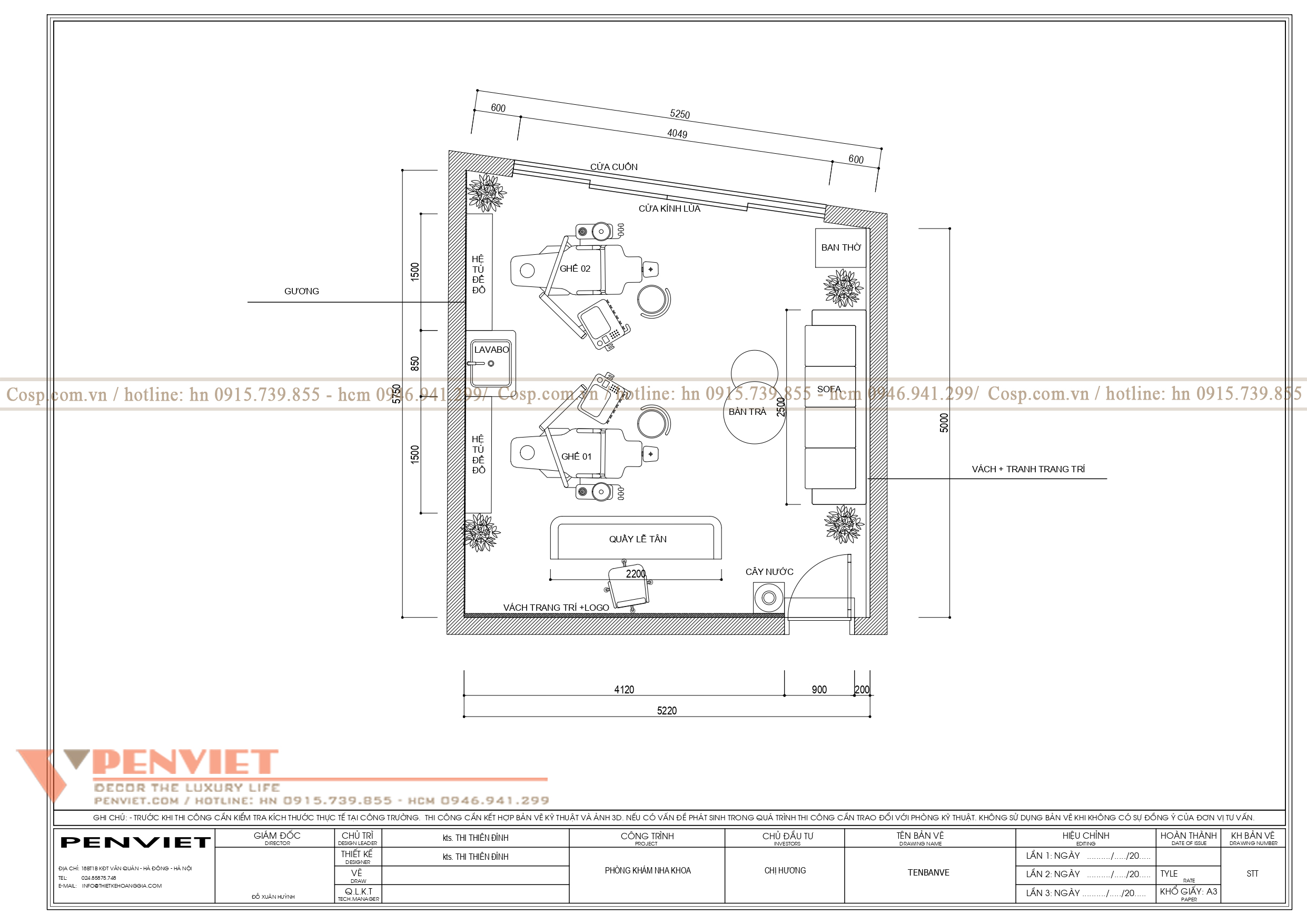
Mặt bằng phòng khám chỉ có diện tích 28m2 và không vuông vức. Do đó đây cũng là thách thức lớn của kiến trúc sư khi thiết kế phòng khám răng hàm mặt.
Sau khi khảo sát thực tế mặt bằng, kiến trúc sư đã đưa ra phương án bố cục nội thất không gian mở, không phân chia các khu vực chức năng riêng biệt. Thiết kế phòng khám răng hàm mặt Lan Hương bao gồm khu vực tiếp đón khách hàng, khu vực chờ đợi và phòng khám chuyên khoa với 2 ghế răng. Các khu vực chức năng được phân chia khéo léo để vừa đảm bảo diện tích mỗi không gian, vừa tạo sự thuận tiện cho người sử dụng cũng như mang đến sự riêng tư, thoải mái cho người bệnh khi đến đây thăm khám.

Phong cách thiết kế phòng khám răng hàm mặt hiện đại với gam màu sắc sáng và sang trọng. Màu sắc trắng và vàng sẽ mang đến khách hàng sự cảm nhận về không gian phòng khám cao cấp và thoải mái. Ngoài ra Penviet còn bố trí cây xanh tại phòng khám để mang đến cảm giác gần gũi, thân thiện, mát mẻ.

Thiết kế mặt tiền phòng khám răng hàm mặt Lan Hương
Hiện trạng trước và sau khi thiết kế mặt tiền phòng khám răng hàm mặt Lan Hương
Mặt tiền phòng khám thường xuyên tiếp xúc với nắng mưa, vì vậy kiến trúc sư tư vấn sử dụng khung sắt hộp 20x20 ốp alu màu trắng cho biển chính và biển cột. Với khung nền bền chắc này sẽ đảm bảo hạn chế tối đa tình trạng bong tróc, méo mó, xỉn màu giúp mặt tiền luôn mới mẻ.
Logo và tên thương hiệu chất liệu mica phát sáng chân màu vàng gương vô cùng nổi bật trên nền trắng sẽ là cách tuyệt vời để mặt tiền sáng hơn, giúp thu hút ánh nhìn khách hàng lâu hơn một chút.

Thiết kế nội thất phòng khám răng hàm mặt Lan Hương
Nội thất phòng khám răng hàm mặt hoạt động với quy mô nhỏ, với 2 ghế đáp ứng tiêu chuẩn và nhu cầu thăm khám của dân cư trong khu vực. Mẫu thiết kế phòng khám răng hàm mặt này phân chia đầy đủ các không gian chức năng cần thiết như lễ tân, khu vực chờ đợi và khu vực điều trị chính.

Hiện trang trước sau khi thiết kế phòng khám răng hàm mặt

Hiện trạng trước và sau thiết kế khu vực chờ đợi của khách hàng
Khu vực quầy lễ tân
Vị trí của khu vực quầy lễ tân được đặt cuối phòng khám là sự tính toán kỹ càng nhằm tạo sự thuận tiện cho chủ đầu tư quản lý hoạt động thăm khám. Quầy thu ngân bằng gỗ MDF cốt xanh Thái Lan chống ẩm phủ melamin, Có đèn led hắt sáng thân quầy mang đến sự hiện đại, sang trọng cho không gian.
Vách logo sau quầy lễ tân được setup bằng Gỗ MDF cốt xanh Thái Lan chống ẩm, màu trắng kết hợp vân gỗ tạo nên sự đồng điệu với quầy lễ tân và giúp tôn lên bộ nhận diện thương hiệu bằng Mica mặt alu vàng gương, phát sáng chân.

Khu vực chờ đợi cho khách hàng
Thiết kế phòng khám răng hàm mặt Lan Hương cũng được Penviet bố trí thêm bộ ghế sofa dài khung gỗ tự nhiên kết hợp gỗ CN, bọc da kết hợp bàn trà chân sắt sơn, mặt bàn bằng đá nhân tạo vân mây hiện đại, tiện dụng, giúp bệnh nhân đến thăm khám luôn được đón tiếp chu đáo.
Kiến trúc sư cũng sử dụng linh hoạt vách trang trí sau ghế sofa Gỗ MDF cốt xanh Thái Lan chống ẩm phủ melamin, xẻ rãnh để làm tăng sự sinh động cho không gian.

Khu vực điều trị chính
Khu vực điều trị răng miệng chính được setup nhằm đáp ứng tiêu chuẩn về diện tích cho việc bố trí 2 ghế răng, đảm bảo chất lượng dịch vụ khám chữa bệnh tại cơ sở y tế.
Ngoài các trang thiết bị hiện đại, tại đây, chúng tôi cũng sắp xếp dãy tủ thấp bằng gỗ MDF phủ Melamine tạo sự thuận tiện cho người sử dụng. Tủ lavabo sử dụng Gỗ nhựa picomat có khả năng chống ẩm, chống nước cực kỳ tốt.

Trên đây là toàn bộ mẫu thiết kế phòng khám răng hàm mặt Lan Hương được Penviet thực hiện. Bạn có hài lòng với mẫu thiết kế này không? Nếu bạn cần tư vấn và báo giá thiết kế phòng khám theo thực tế diện tích của mình, hãy liên hệ ngay với Penviet bạn nhé!
Xem thêm:
Thiết kế phòng khám nha khoa Dr Anh Tá
Thiết kế phòng khám nha khoa Đức Huy



Q: PenViet có nhận thiết kế và thi công trọn gói không hay chỉ chuyên về thiết kế?
A: PenViet nhận thiết kế và thi công trọn gói trên toàn quốc. Các văn phòng, chi nhánh của PenViet được đặt tại nhiều địa điểm nhằm cung cấp các dịch vụ không chỉ tại các trung tâm của cả nước mà còn phục vụ tới cả vùng biên giới, hải đảo xa xôi.
Q: Thời gian thiết kế và thi công bao lâu thì xong?
A: Vâng, đây là yếu tố được nhiều khách hàng quan tâm khi chuẩn bị thiết kế và thi công nội thất. Với những diện tích nhỏ thì thời gian thi công nhanh. Cụ thể như sau:
- Diện tích <100m2:
+ Thời gian thiết kế: từ 5 đến 7 ngày
+ Thời gian thi công: 10 đến 12 ngày
(Áp dụng trên toàn quốc)
- Diện tích >100m2:
+ Thời gian thiết kế: từ 7 đến 10 ngày
+ Thời gian thi công: 10 đến 15 ngày
(Áp dụng trên toàn quốc)
- Diện tích >500m2: Quý khách vui lòng liên hệ trực tiếp để biết thời gian thiết kế và thi công cụ thể.
Q: Giá thi công của PenViet cao hay thấp?
A. PenViet có hệ thống chi nhánh văn phòng và xưởng sản xuất ở nhiều nơi trên toàn quốc, nên giá thành sản phẩm là giá xuất xưởng, cạnh tranh nhằm đảm bảo chất lượng và dịch vụ phục vụ Khách hàng tốt nhất.
Q: PenViet thiết kế và thi công nội thất như thế nào?
A: PenViet cung cấp dịch vụ tới mọi thành phần kinh tế, chúng tôi cung cấp dịch vụ thiết kế, thi công và bán lẻ các mặt hàng nội thất.
- Với các sản phẩm khách hàng đã có bản vẽ 2D hoặc 3D: PenViet sẽ phân tích bản vẽ và báo giá cạnh tranh.
- Với các sản phẩm cần thiết kế chi tiết: PenViet sẽ báo giá từ thiết kế đến thi công.
- Với những khách hàng mua hàng có sẵn với số lượng lớn: vui lòng liên hệ để nhận báo giá cạnh tranh.
- Đối với các Showroom có diện tích trưng bày sản phẩm rộng lớn: PenViet có khung giá phù hợp với ngân sách của khách hàng.
Q: Khách hàng ở xa thì PenViet có nhận thiết kế và thi công không?
Q: PenViet nhận thiết kế và thi công trên toàn quốc. Ngoài ra, chúng tôi còn xuất khẩu cả sang thị trường nước ngoài.
Q: Chế độ bảo hành và bảo trì của PenViet thế nào?
A: Hầu hết các sản phẩm của PenViet được bảo hành từ 1 đến 2 năm (tùy chủng loại) và bảo trì vĩnh viễn (có tính phí khi thực hiện bảo trì).