Thiết kế spa, Thiết kế nội thất spa, Thiết kế tiệm spa, Thiết kế Moon spa, Thiết kế thẩm mỹ viện
Nằm trong khu đô thị Vinhomes Ocean Park sang trọng với nhiều tiện nghi thuộc huyện Gia Lâm - Hà Nội, chị Hòa chủ đầu tư dự án thiết kế nội thất spa Moon muốn tận dụng một căn hộ chung cư để tạo nên một cơ sở cung cấp nhiều dịch vụ làm đẹp, phục vụ cho những cư dân sinh sống tại đây.

Moon Spa Premium nằm trong khu dân cư cao cấp tại Hà Nội
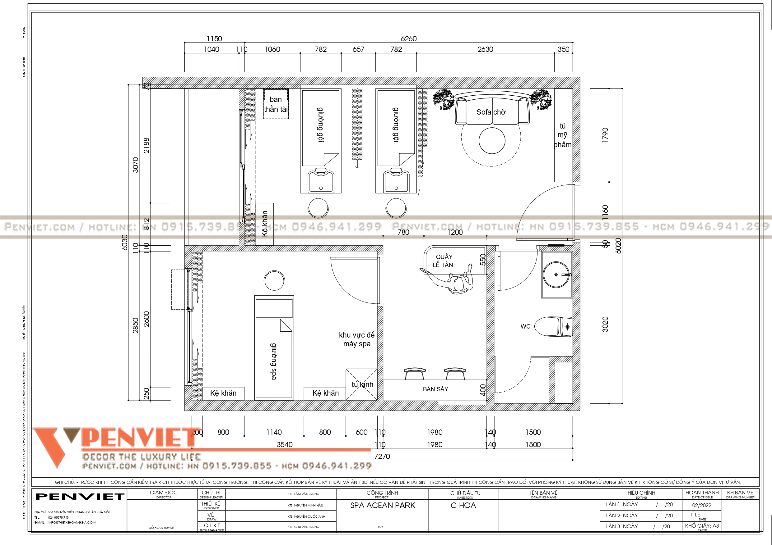
Với diện tích mặt bằng là 50m2, 1 phòng ngủ, 1 phòng khách và 1 nhà vệ sinh, chúng tôi tư vấn cho chị Hòa thiết kế không gian phòng khách trở thành nơi tiếp đón khách hàng kết hợp với phòng gội, thiết kế rèm che đảm bảo sự riêng tư. Phòng ngủ sẽ được thiết kế, trang trí để tạo thành phòng spa mang đến sự thoải mái và yên tĩnh.

Hiện trạng mặt bằng của Moon Spa Premium không cần cải tạo thô quá nhiều
Giải pháp thiết kế spa này đã giúp Moon spa hoàn thiện được các tiêu chí về một spa chuyên nghiệp, có các không gian chức năng riêng để thực hiện các dịch vụ làm đẹp.
Thấy được những tiềm năng khi kinh doanh các dịch vụ làm đẹp trong khu dân cư cao cấp, nên các kiến trúc sư của Penviet đã tư vấn cho chủ đầu tư lựa chọn thiết kế spa theo phong cách hiện đại, hướng đến sự thanh lịch, cuốn hút. Gam màu chủ đạo là màu ghi nhạt, trắng giúp không gian spa thêm thoáng rộng, thoải mái.

Bản vẽ bố trí mặt bằng Moon Spa Premium

Thiết kế spa Moon phong cách hiện đại

Thiết kế spa Moon phong cách hiện đại

Thiết kế spa Moon phong cách hiện đại

Thiết kế spa Moon phong cách hiện đại

Thiết kế spa Moon phong cách hiện đại
Thiết kế khu vực phòng gội
Khu vực phòng gội được setup 2 bàn gội, ở giữa được thiết kế rèm che tạo sự tiêng tư cho khách hàng.


Thiết kế spa Moon phong cách hiện đại

Thiết kế spa Moon phong cách hiện đại

Thiết kế spa Moon phong cách hiện đại

Thiết kế spa Moon phong cách hiện đại

Thiết kế spa Moon phong cách hiện đại

Thiết kế spa Moon phong cách hiện đại

Thiết kế spa Moon phong cách hiện đại
Bạn thấy sao về dự án này, hy vọng mẫu thiết kế spa đẹp theo phong cách hiện đại, thanh lịch này sẽ mang đến cho bạn nhiều ý tưởng cho không gian của mình. Để sở hữu một cơ sở làm đẹp độc đáo, ấn tượng, hãy gọi ngay cho Penviet để tận hưởng dịch vụ thiết kế, thi công trọn gói nhé!







A. PenViet có hệ thống chi nhánh văn phòng và xưởng sản xuất ở nhiều nơi trên toàn quốc, nên giá thành sản phẩm là giá xuất xưởng, cạnh tranh nhằm đảm bảo chất lượng và dịch vụ phục vụ Khách hàng tốt nhất.
A: PenViet cung cấp dịch vụ tới mọi thành phần kinh tế, chúng tôi cung cấp dịch vụ thiết kế, thi công và bán lẻ các mặt hàng nội thất.
- Với các sản phẩm khách hàng đã có bản vẽ 2D hoặc 3D: PenViet sẽ phân tích bản vẽ và báo giá cạnh tranh.
- Với các sản phẩm cần thiết kế chi tiết: PenViet sẽ báo giá từ thiết kế đến thi công.
- Với những khách hàng mua hàng có sẵn với số lượng lớn: vui lòng liên hệ để nhận báo giá cạnh tranh.
- Đối với các Showroom có diện tích trưng bày sản phẩm rộng lớn: PenViet có khung giá phù hợp với ngân sách của khách hàng.