Thiết kế thẩm mỹ viện,Thiết kế spa, Thiết kế nội thất thẩm mỹ viện, Thiết kế shop,
Sau khi tìm hiểu kỹ thông tin, chị Duyên đã tìm đến Penviet - đơn vị thiết kế thi công thẩm mỹ viện hàng đầu để được các kiến trúc sư tư vấn và hỗ trợ. Chủ đầu tư đã chia sẻ với Penviet rằng, chị muốn sở hữu một không gian thẩm mỹ, spa hiện đại, tạo cảm giác thư thái và thể hiện được tính chuyên nghiệp cho cửa tiệm của mình. Bên cạnh đó, mô hình kinh doanh này có kết hợp với nội thất phòng ngủ nên mẫu thiết kế không nên quá sa đà vào sự cầu kỳ, tránh gây những áp lực nặng nề cho các thành viên trong gia đình.
Hiểu được mong muốn của chị Duyên, chúng tôi đã thực hiện khảo sát mặt bằng và cùng thảo luận với chị để đưa ra mẫu thiết kế thẩm mỹ viện kết hợp với nội thất phòng ngủ vô cùng ấn tượng này.

Hiện trạng mặt bằng cũ của cửa tiệm không còn phù hợp với tư duy kinh doanh mới
Nhận thấy được hiện trạng mặt bằng cửa tiệm spa của chị đã trở nên cũ kỹ, không còn phù hợp với tư duy kinh doanh mới, Penviet đã tư vấn cho chủ đầu tư lựa chọn phong cách thiết kế hiện đại với gam màu trắng chủ đạo với các đường phào chỉ nhựa sang trọng, kết hợp trang trí với các chi tiết màu vàng gỗ, xám. Việc sử dụng những màu sắc thanh tao, nhẹ nhàng kết hợp với cách bố trí nội thất khoa học tạo một cảm giác ấm cúng, gần gũi, khách hàng sẽ cảm nhận được sự thoải mái, thư giãn ngay khi bước vào cửa tiệm.

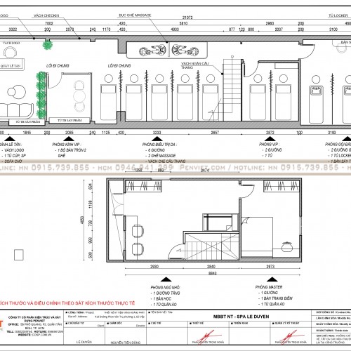
Bản vẽ mặt bằng thiết kế nội thất thẩm mỹ viện Lê Duyên
Ngoài ra, để tạo dựng một không gian chuyên nghiệp, phù hợp với nội thất thẩm mỹ viện, Penviet đã thực hiện cải tạo phần trần nhà với thạch cao giật cấp và khung xương chắc chắn tại tầng lầu và tầng trệt. Bên cạnh đó, chúng tôi cũng không quên bố trí hệ thống đèn downlight âm trần giúp đảm bảo sự vận hành trong thẩm mỹ viện, đồng thời tạo cảm giác ấm cúng, thoải mái cho nhân viên và khách hàng. Sàn nhà được lát nhựa giả gỗ góp phần hoàn thiện vẻ đẹp không gian của mẫu thiết kế thẩm mỹ viện Lê Duyên.
Trong dự án này, tầng 1 được chủ đầu tư sử dụng để thiết kế nội thất thẩm mỹ viện được phân chia thành các khu vực chức năng. Tầng 2 là không gian nội thất phòng ngủ của các thành viên trong gia đình chị Duyên.
Ấn tượng đầu tiên của khách hàng về thẩm mỹ viện Lê Duyên đó chính là không gian phòng khách. Mẫu quầy thu ngân chữ L được thiết kế với kiểu dáng thanh lịch, tạo sự thuận tiện cho nhân viên trong quá trình tiếp đón khách hàng.

Không gian phòng khách được setup nội thất khoa học, tạo không gian hiện đại
Phía sau quầy thu ngân được setup bộ chữ và logo inox vàng gold sang trọng trên nền trắng với các chi tiết phào chỉ nhựa giúp không gian tiếp đón khách hàng trở nên chuyên nghiệp và sang trọng.

Sàn nhà lát nhựa màu gỗ tạo không gian ấm cúng, gần gũi
Kệ trưng bày mỹ phẩm bằng khung sắt sơn tĩnh điện với các đợt gỗ MDF phủ melamine màu vân đá, đèn led hắt đợt chẳng những giúp tối ưu không gian, gia tăng diện tích trưng bày mà còn làm tôn lên vẻ đẹp của các mặt hàng mỹ phẩm.

Không gian tiếp đón khách hàng thoáng đãng, rộng rãi
Để tạo không gian riêng tư, đồng thời đáp ứng những quy chuẩn về thiết kế thẩm mỹ viện, Penviet đã thực hiện setup phòng tư vấn riêng biệt bên cạnh không gian phòng khách.

Không gian phòng tư vấn riêng tư, thoải mái
Bàn tư vấn gỗ MDF phủ melamine vân đá, chân sắt sơn tĩnh điện giúp hoàn thiện vẻ đẹp không gian, tạo tâm lý thoải mái cho nhân viên tư vấn và khách hàng.
Các kiến trúc sư của Penviet cũng vô cùng tinh tế khi setup tủ mỹ phẩm tại đây, không chỉ giúp gia tăng diện tích trưng bày, mà còn tạo sự thuận tiện, riêng tư để các nhân viên dễ dàng tư vấn sử dụng cho khách hàng
Phòng trị liệu trong mẫu thiết kế thẩm mỹ viện Lê Duyên có sự đồng nhất, sáng tạo với gam màu trắng kết hợp với các chi tiết màu vàng gỗ, xám giúp không gian trở nên ấm cúng, sang trọng, toát lên vẻ đẹp hiện đại mà vô cùng gần gũi.
Các bức tranh in minh họa giúp không gian phòng trị liệu có thêm điểm nhấn thu hút. Gầm cầu thang vốn được coi là nhược điểm của không gian cũng được các kiến trúc sư xử lý một cách tinh tế bằng cách setup hệ tủ gỗ MDF phủ melamine, cửa kính cường lực kết hợp với bộ đèn led hắt đợt tạo thêm không gian trưng bày vật dụng trị liệu bắt mắt.

Không gian ấm cúng, tạo cảm giác thư thái cho khách hàng
Nhằm tận dụng triệt để những lợi thế về mặt bằng, trong mẫu thiết kế thẩm mỹ viện chúng tôi setup 5 giường trị liệu được ngăn cách với nhau bằng các tấm rèm voan mềm, thanh suốt inox điều chỉnh linh hoạt vừa đảm bảo sự riêng tư, vừa thể hiện sự chuyên nghiệp của spa.

Hệ rèm tạo sự riêng tư cho khách hàng trải nghiệm dịch vụ
Mỗi giường trị liệu được bố trí các đôn tròn bọc nỉ, chân sắt sơn mạ vàng sang trọng, tạo sự thuận tiện cho nhân viên trong quá trình phục vụ khách hàng.

Chi tiết phào chỉ nhựa giúp hoàn thiện vẻ đẹp trong mẫu thiết kế thẩm mỹ viện
Phòng trị liệu cũng được bố trí thêm 2 ghế massage, giúp hoàn thiện các dịch vụ có trong thẩm mỹ viện Lê Duyên.
Là một người vô cùng tinh tế, chị Duyên muốn thành một không gian riêng dành cho những vị thượng khách đặc biệt của mình. Hiểu được mong muốn đó, các kiến trúc sư của Penviet đã thiết kế không gian phòng VIP với 2 giường trị liệu và tủ đồ vật dụng trong mẫu thiết kế thẩm mỹ viện này.

Không gian phòng VIP tạo sự riêng tư, thoải mái
Bức tường đơn điệu, nhàm chán được tô điểm với các chi tiết phào chỉ nhựa, tranh in treo tường giúp không gian phòng VIP thêm sang trọng, ấm cúng và gần gũi.

Ánh sáng dịu nhẹ mang đến sự thoải mái cho khách hàng
Trong mẫu thiết kế thẩm mỹ viện Lê Duyên, chúng tôi sử dụng hệ đèn âm trần ánh sáng dịu nhẹ, không quá gay gắt đảm bảo sự vận hành và mang đến sự thoải mái tối đa cho khách hàng trải nghiệm dịch vụ tại thẩm mỹ viện Lê Duyên.
Để đảm đến sự tiện nghi trong thiết kế thẩm mỹ viện, phòng gội đầu dưỡng sinh và massage body được bố trí 2 giường gội, bàn sấy tóc và phòng vệ sinh riêng biệt, hạn chế các chi tiết rườm rà và cầu kỳ.

Phòng gội được được bố trí đầy đủ nội thất
Tại phòng gội đầu dưỡng sinh, trong mẫu thiết kế thẩm mỹ viện, chúng tôi đã sử dụng hệ đèn âm trần khoa học, tạo sự tương phản với sàn nhà giả gỗ ngầm tạo không gian thoáng rộng, đồng thời giúp căn phòng thêm sáng sủa hơn.

Lớp rèm ngăn cách đảm bảo sự riêng riêng tư cho khách hàng
Bàn sấy tóc gỗ MDF phủ melamine với ray hộc kéo, gương decor tròn được bố trí sau 2 giường gội giúp khách hàng được luôn được chăm sóc tận tình, chu đáo.

Phòng vệ sinh tiện nghi, tạo sự thoải mái cho khách hàng

Phòng vệ sinh được được được thiết kế trong phòng gội mang đến sự riêng tư, thoải mái
Lựa chọn không gian tầng 2 để thiết kế nội thất phòng ngủ không chỉ giúp hạn chế sự ồn ào mà còn giúp các thành viên trong gia đình không bị ảnh hưởng bởi các dịch vụ làm đẹp dưới tầng 1.

Nội thất phòng ngủ của bé được setup đầy đủ tiện nghi sinh hoạt
Tại phòng ngủ của bé, chúng tôi setup nội thất tương đối đầy đủ để phục vụ nhu cầu sinh hoạt và học tập của 2 bé.
Bàn học gỗ MDF phủ melamine có ray kéo tiện lợi với ghế xoay linh hoạt. Nhằm tối ưu không gian, kệ sách được đặt áp tường chia thành các ngăn ô nhỏ, giúp phân loại và sắp xếp vật dụng khoa học.

Góc học tập được setup bàn và kệ sách
Bức tường đơn điệu cũng được các kiến trúc sư tô điểm với các kệ treo tường gỗ MDF, chân sắt sơn tĩnh điện chắc chắn.

Giường tầng tạo không gian riêng tư cho mỗi bé
Để tạo không gian riêng cho mỗi bé, chúng tôi đã tư vấn cho chị Duyên lựa chọn mẫu giường tầng gỗ MDF có thang lên và chân dưới có ray kéo phía dưới tạo kho chứa đồ mini đầy tiện ích.
Tủ quần áo cũng được thiết kế với 2 ngăn lớn có thanh treo chắc chắn và ray kéo tiện lợi.
Phòng ngủ master tại tầng 2 trong tổng thể dự án thiết kế thẩm mỹ viện Lê Duyên kết hợp mô hình nội thất phòng ngủ cũng được setup nội thất khoa học, tạo sự hài hòa thống nhất với những không gian khác.
Hệ tủ quần áo gỗ MDF phủ melamine mặt kính cường lực, nẹp viền khung nhôm mang đến sự hiện đại, trang trọng. Theo đó, việc sử dụng kính cường lực cũng tạo chiều sâu, giúp không gian phòng ngủ thêm thoáng đãng, rộng rãi hơn.
Gương và bàn trang điểm cũng được bố trí khoa học, đảm bảo nhu cầu sử dụng trong sinh hoạt hàng ngày. Hệ gương kính thủy mài vát cạnh được trang trí đèn viền led giúp không gian phòng ngủ thêm sáng sủa, tinh tế và hiện đại.
Việc sử dụng nội thất hiện đại, đơn giản trong nội thất phòng ngủ mang đến sự tiện nghi, đảm bảo nhu cầu sinh hoạt, học tập và nghỉ ngơi của các thành viên trong gia đình.
Những ý tưởng độc đáo, sự phối hợp ăn ý giữa màu sắc và nội thất của các kiến trúc sư Penviet được vận dụng trong tổng thể dự án thiết kế thẩm mỹ viện Lê Duyên kết hợp mô hình nội thất phòng ngủ. Bạn thấy sao về mẫu thiết kế này? Nếu bạn đang có ý tưởng sở hữu một không gian kinh doanh ấn tượng, giải pháp không gian tối ưu thì hãy liên hệ với Penviet để được tư vấn cụ thể nhé! Với những ý tưởng sáng tạo độc đáo, sự nhiệt huyết, tận tâm của kiến trúc sư, Penviet tự tin sẽ mang đến cho bạn những giải pháp không gian tuyệt tuyệt vời nhất với mức chi phí ưu đãi nhất.







A. PenViet có hệ thống chi nhánh văn phòng và xưởng sản xuất ở nhiều nơi trên toàn quốc, nên giá thành sản phẩm là giá xuất xưởng, cạnh tranh nhằm đảm bảo chất lượng và dịch vụ phục vụ Khách hàng tốt nhất.
A: PenViet cung cấp dịch vụ tới mọi thành phần kinh tế, chúng tôi cung cấp dịch vụ thiết kế, thi công và bán lẻ các mặt hàng nội thất.
- Với các sản phẩm khách hàng đã có bản vẽ 2D hoặc 3D: PenViet sẽ phân tích bản vẽ và báo giá cạnh tranh.
- Với các sản phẩm cần thiết kế chi tiết: PenViet sẽ báo giá từ thiết kế đến thi công.
- Với những khách hàng mua hàng có sẵn với số lượng lớn: vui lòng liên hệ để nhận báo giá cạnh tranh.
- Đối với các Showroom có diện tích trưng bày sản phẩm rộng lớn: PenViet có khung giá phù hợp với ngân sách của khách hàng.