Tổng quan
Chào các bạn, chúng tôi là Nội thất Cosp đây. Rất vui khi được viết về những dự án thiết kế nội thất và thi công nội thất cho các shop và nhà hàng. Cuối tháng 8, chúng tôi đã nhận được một dự án khá thú vị với phong cách thiết kế Hàn Quốc hiện đại. Sau đây xin giới thiệu tới các bạn nhé.
- Tên dự án: Thiết kế nhà hàng Hàn Quốc 329 Kim Mã
- Chủ đầu tư: Công ty cổ phần NWH
- Địa điểm: số 2/629 đường Kim Mã, quận Ba Đình, TP Hà Nội
- Quy mô diện tích: 40m2
- Chi phí thiết kế: 15 Triệu
- ý tưởng thiết kế: Lấy ý tưởng thiết kế theo văn hóa đậm chất nhật bản, vật liệu sử dụng chủ yếu là vật liệu tự nhiện như đá và gỗ, đém đến một không gian thân thiện và gần gữi và ấm cúng.
NÉT CHÍNH CỦA DỰ ÁN
Xem thêm:
Thiết kế nhà hàng Hàn Quốc
Chúng ta bắt đầu từ phần mặt tiền của mẫu thiết kế nhà hàng nhé. Chúng ta có thể thấy được ngay sự sang trọng từ nét đơn giản của nhà hàng được thể hiện ngay ở mặt tiền của nhà hàng. Chúng tôi sử dụng gỗ ốp gỗ nhựa mặt tiền 500x500x500 màu vàng gỗ để trang trí phần mặt tiền của cửa hàng. Giá nhựa ốp gỗ khoảng 800.000/m2 - 1.200.000/m2 tùy thuộc chất lượng vạt liệu. Để đảm bảo tính thẩm mỹ và độ bền khi ốp ở mặt ngoài cửa hàng, chúng tôi thường tư vấn khách hàng sử dụng loại gỗ nhựa tốt, có giá thành 1.000.000/m2 trở lên.
Phần mặt tiền chúng tôi đã dùng cửa kính 10 ly ( chọn 1 trong 2), cửa tự động, cửa cơ, biển bảng, đèn led viền cửa, sơn sửa + trang trí.
Thiết kế nội thất nhà hàng Hàn Quốc
Tiếp đến là phần thiết kế nội thất nhà hàng. Đầu tiên tôi xin giới thiệu chiếc bàn ở giữa chiếm diện tích lớn nhất không gian. Đây là chiếc bàn ăn kiêm bàn phục vụ, mặt bàn được làm gỗ teak nguyên tấm dày 6 ly; Khung inox nguyên tấm 304; Bếp nướng âm; Hộp kệ để đồ inox 304; Đèn led trang trí gầm bàn và mặt bàn đặc biệt gây sự chú ý là chân bàn được ốp đá sỏi trang trí rất thu hút. Chiếc bàn đang được PenViet cung cấp với gái dao động từ 5.500.000/m2 - 6.500.000/m2.
Thiết kế nội thất nhà hàng Hàn Quốc
Ngoài chiếc bàn ăn dài, nhà hàng còn tự hào bởi giá để rượu 2 tầng phía trên bàn ăn. Đèn trần thả quầy trang trí bên cạnh, 2 thanh gỗ teak là thành phần chính cấu tạo nên chiếc giá.
thiết kế nhà hàng Hàn QUốc 329 Kim Mã
Sau cùng là chúng tôi còn trang trí mảng tường sau quầy phục vụ và phía bên khách . Chúng tôi sử dụng Đèn trang trí , Sơn lại tường , Khung bo, Đèn led, Đèn led viền chân tường kết hợp với nhau để tạo ra một mảng tường đẹp.
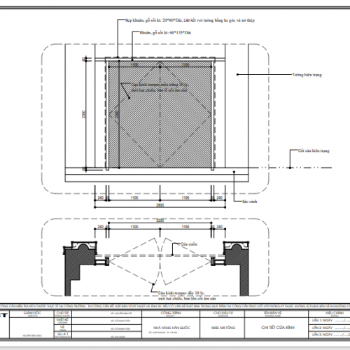
Dưới đây là một số bản vẽ mặt bằng nhà hàng
Bản vẽ mặt bằng nhà hàng Hàn Quốc
.png)
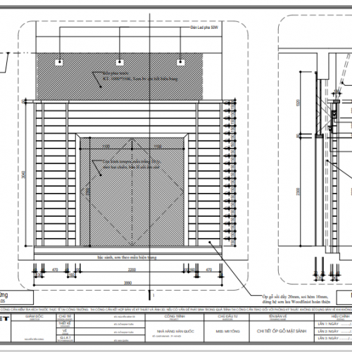
Bản vẽ mặt bằng nhà hàng Hàn Quốc
.png)
Bản vẽ mặt bằng nhà hàng Hàn Quốc
.png)
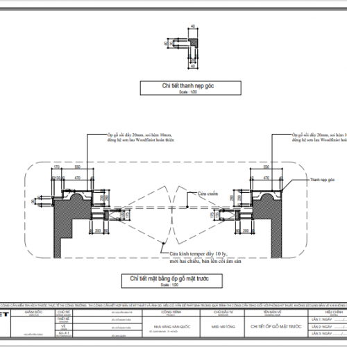
Bản vẽ mặt bằng nhà hàng Hàn Quốc
Nội thất Cosp tự hào là đơn vị thiết kế cửa hàng, thiết kế nhà hàng chuyên nghiệp uy tín nhất Việt Nam với hơn 10 năm kinh nghiệm và hơn 10000 dự án lớn nhỏ.
Q: PenViet có nhận thiết kế và thi công trọn gói không hay chỉ chuyên về thiết kế?
A: PenViet nhận thiết kế và thi công trọn gói trên toàn quốc. Các văn phòng, chi nhánh của PenViet được đặt tại nhiều địa điểm nhằm cung cấp các dịch vụ không chỉ tại các trung tâm của cả nước mà còn phục vụ tới cả vùng biên giới, hải đảo xa xôi.
Q: Thời gian thiết kế và thi công bao lâu thì xong?
A: Vâng, đây là yếu tố được nhiều khách hàng quan tâm khi chuẩn bị thiết kế và thi công nội thất. Với những diện tích nhỏ thì thời gian thi công nhanh. Cụ thể như sau:
- Diện tích <100m2:
+ Thời gian thiết kế: từ 5 đến 7 ngày
+ Thời gian thi công: 10 đến 12 ngày
(Áp dụng trên toàn quốc)
- Diện tích >100m2:
+ Thời gian thiết kế: từ 7 đến 10 ngày
+ Thời gian thi công: 10 đến 15 ngày
(Áp dụng trên toàn quốc)
- Diện tích >500m2: Quý khách vui lòng liên hệ trực tiếp để biết thời gian thiết kế và thi công cụ thể.
Q: Giá thi công của PenViet cao hay thấp?
A. PenViet có hệ thống chi nhánh văn phòng và xưởng sản xuất ở nhiều nơi trên toàn quốc, nên giá thành sản phẩm là giá xuất xưởng, cạnh tranh nhằm đảm bảo chất lượng và dịch vụ phục vụ Khách hàng tốt nhất.
Q: PenViet thiết kế và thi công nội thất như thế nào?
A: PenViet cung cấp dịch vụ tới mọi thành phần kinh tế, chúng tôi cung cấp dịch vụ thiết kế, thi công và bán lẻ các mặt hàng nội thất.
- Với các sản phẩm khách hàng đã có bản vẽ 2D hoặc 3D: PenViet sẽ phân tích bản vẽ và báo giá cạnh tranh.
- Với các sản phẩm cần thiết kế chi tiết: PenViet sẽ báo giá từ thiết kế đến thi công.
- Với những khách hàng mua hàng có sẵn với số lượng lớn: vui lòng liên hệ để nhận báo giá cạnh tranh.
- Đối với các Showroom có diện tích trưng bày sản phẩm rộng lớn: PenViet có khung giá phù hợp với ngân sách của khách hàng.
Q: Khách hàng ở xa thì PenViet có nhận thiết kế và thi công không?
Q: PenViet nhận thiết kế và thi công trên toàn quốc. Ngoài ra, chúng tôi còn xuất khẩu cả sang thị trường nước ngoài.
Q: Chế độ bảo hành và bảo trì của PenViet thế nào?
A: Hầu hết các sản phẩm của PenViet được bảo hành từ 1 đến 2 năm (tùy chủng loại) và bảo trì vĩnh viễn (có tính phí khi thực hiện bảo trì).