Dự án thiết kế nội thất phòng khám mắt kiêm tiệm kính mắt của anh Nguyễn Hữu Đạt tại Thanh Oai, Hà Nội có sự đầu tư bài bản và khoa học trong cải tạo không gian. Dù chỉ với diện tích 36m2, đội ngũ thiết kế đã thành công trong việc tạo nên một không gian tinh tế, hiện đại và tiện nghi, đáp ứng toàn diện các yêu cầu về thẩm mỹ, công năng và tiêu chuẩn y tế.
Hiện trạng trước thiết kế
.jpg)
.jpg)
.jpg)
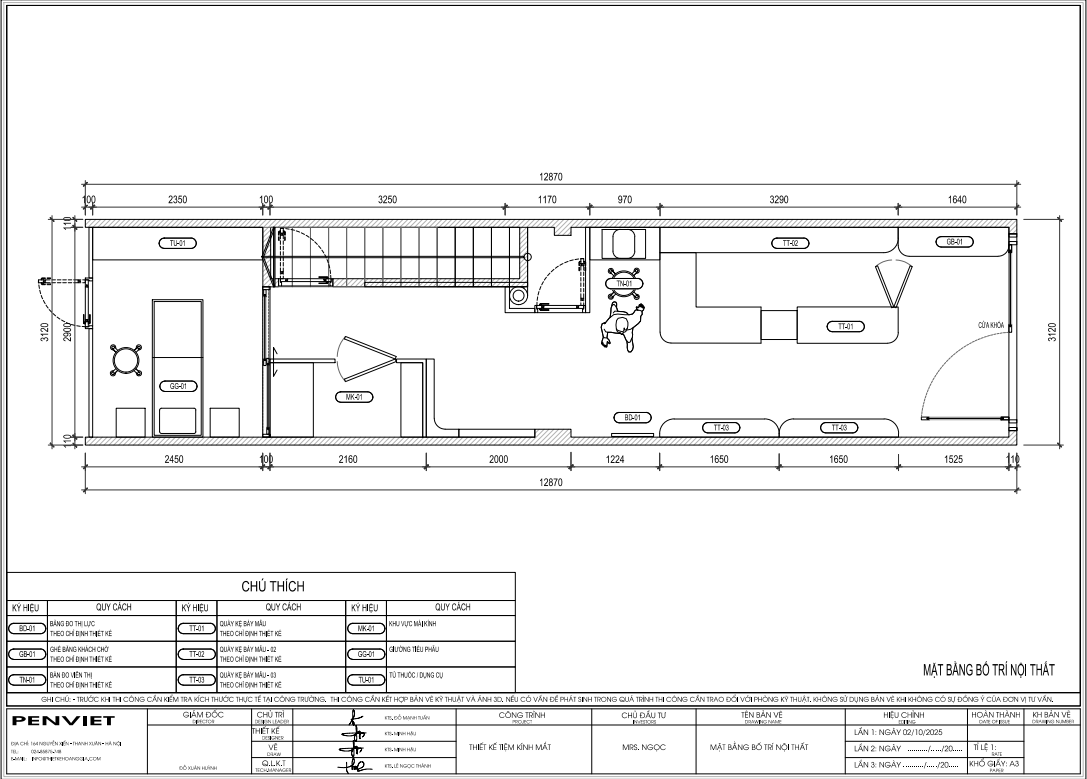
Mặt bằng công năng
.png)
Phòng khám mắt của anh Nguyễn Hữu Đạt nằm trong khu dân cư đông đúc tại Thanh Oai, nơi nhu cầu thăm khám và kiểm tra thị lực ngày càng tăng cao. Với lợi thế mặt bằng tuy nhỏ nhưng vị trí thuận tiện, chủ đầu tư mong muốn tạo dựng một không gian khám mắt chuyên nghiệp, hiện đại và dễ nhận diện thương hiệu.
.jpg)
.jpg)
Yêu cầu của anh Đạt là thiết kế cần đảm bảo đủ các khu vực chức năng cơ bản, gồm khu tiếp đón, khu trưng bày kính thuốc, khu đo khám thị lực và phòng lưu bệnh ngắn hạn. Mục tiêu không chỉ dừng ở việc bố trí hợp lý mà còn phải mang lại cảm giác sang trọng, tinh tế và thân thiện cho khách hàng.
Từ yêu cầu đó, đội ngũ thiết kế đã đề xuất một giải pháp không gian thông minh, tận dụng tối đa diện tích sử dụng, đồng thời áp dụng phong cách thiết kế tối giản nhưng vẫn thể hiện rõ nét sự chuyên nghiệp của một phòng khám chuyên khoa hiện đại.
Thông tin dự án
Chủ đầu tư: Anh Nguyễn Hữu Đạt
Địa điểm: Thanh Oai, Hà Nội
Diện tích : 36m2
Nội dung: Thiết kế phòng khám mắt.
Nhìn từ bên ngoài, phòng khám gây ấn tượng với mặt tiền mang tông màu be sáng, kết hợp cùng hệ đèn viền vàng ánh kim giúp tổng thể trở nên nổi bật và sang trọng. Biển hiệu “Kính Mắt Sài Gòn” được thiết kế tinh gọn, hài hòa với tổng thể kiến trúc, không quá phô trương nhưng vẫn dễ nhận diện từ xa.
.jpg)
Cửa kính trong suốt mở ra không gian nội thất sáng sủa, mang lại cảm giác rộng rãi hơn cho công trình có diện tích nhỏ. Đặc biệt, khu vực trước cửa được bố trí bồn cây xanh nhỏ xinh, tạo điểm chạm tự nhiên và giúp không gian trở nên thân thiện, gần gũi với người qua lại.
Từ góc nhìn thương hiệu, mặt tiền này đóng vai trò quan trọng trong việc tạo dựng hình ảnh một phòng khám hiện đại, thân thiện và đáng tin cậy – yếu tố mà bất kỳ cơ sở y tế nào cũng hướng đến.
Bước vào bên trong, khu vực trưng bày kính là nơi gây ấn tượng mạnh mẽ nhất với khách hàng. Toàn bộ hệ tủ và kệ được thiết kế bằng chất liệu gỗ MDF phủ sơn trắng mịn, kết hợp mặt kính trong suốt, tạo nên không gian tinh tế và sạch sẽ. Ánh sáng vàng nhẹ được bố trí khéo léo trên các kệ giúp tôn lên vẻ đẹp của từng mẫu kính.
.jpg)
Cách bố trí sản phẩm theo chiều ngang, chạy dọc hai bên tường và ở khu vực trung tâm giúp khách hàng dễ dàng quan sát, lựa chọn mà không gây rối mắt. Sự kết hợp giữa đèn trần âm trần và đèn rọi ray định hướng mang lại hiệu ứng ánh sáng hài hòa, vừa đảm bảo chiếu sáng đầy đủ vừa làm nổi bật từng khu vực trưng bày.
.jpg)
Điểm đặc biệt là thiết kế hướng đến trải nghiệm mua hàng cao cấp, nơi khách hàng không chỉ đến để đo mắt mà còn có thể chọn kính trong một không gian sang trọng, tương tự như các cửa hàng thời trang cao cấp.
.jpg)
.jpg)
Phòng đo mắt được bố trí tách biệt phía trong, tạo không gian yên tĩnh và riêng tư cho quá trình kiểm tra thị lực. Gam màu chủ đạo là trắng và xám nhẹ, mang lại cảm giác tập trung và chuyên nghiệp.
Hệ thống chiếu sáng dạng panel trần vuông mang đến nguồn sáng đồng đều, không gây chói lóa, đảm bảo bác sĩ dễ dàng quan sát và thao tác chính xác trong quá trình kiểm tra. Các thiết bị y tế như bảng đo thị lực, máy đo khúc xạ, ghế khám đều được sắp xếp gọn gàng theo trục đối xứng, giúp tiết kiệm diện tích nhưng vẫn đảm bảo công năng.
.jpg)
Không gian được thiết kế với khả năng thay đổi linh hoạt bố cục nếu cần bổ sung thiết bị trong tương lai, điều này giúp chủ đầu tư dễ dàng mở rộng quy mô mà không cần cải tạo lớn.
Một trong những điểm đáng chú ý của dự án là phòng lưu bệnh nhỏ gọn nhưng đầy đủ tiện nghi. Không gian này được thiết kế theo tiêu chuẩn y khoa với giường bệnh inox kết hợp khung gỗ, tạo cảm giác ấm áp và gần gũi hơn so với phòng bệnh truyền thống.
.jpg)
.jpg)
Tường và trần sử dụng tông trắng trung tính, dễ vệ sinh và giúp không gian sáng hơn. Cửa sổ lớn cùng hệ rèm chắn sáng giúp điều tiết ánh sáng tự nhiên linh hoạt, tạo môi trường nghỉ ngơi dễ chịu cho bệnh nhân sau khi điều trị.
Các thiết bị y tế phụ trợ được đặt trên xe đẩy inox di động, đảm bảo tính gọn gàng và thuận tiện trong quá trình thao tác. Dù diện tích không lớn, căn phòng vẫn đáp ứng được đầy đủ tiêu chuẩn an toàn, vô khuẩn và sự riêng tư cần thiết.
.jpg)
Đội ngũ thiết kế đã chọn tông màu be sáng kết hợp trắng ngà làm chủ đạo, tạo nên cảm giác nhẹ nhàng, sạch sẽ và hiện đại.
Hệ thống ánh sáng từ đèn âm trần, đèn rọi ray và từ hệ đèn viền. Sự kết hợp này không chỉ đảm bảo độ sáng phù hợp cho thao tác chuyên môn mà còn mang đến hiệu ứng thị giác sang trọng, làm nổi bật sản phẩm trưng bày.
.jpg)
.jpg)
Việc sử dụng vật liệu phản chiếu ánh sáng như kính và gạch bóng giúp không gian nhỏ trở nên rộng rãi, thoáng đãng hơn. Đây là giải pháp tối ưu thường được áp dụng trong các phòng khám có diện tích hạn chế, đặc biệt phù hợp với công trình 36m2 như của anh Đạt.
Với diện tích 36m2, việc phân chia công năng là thách thức lớn đối với đội ngũ thiết kế. Tuy nhiên, nhờ sự tính toán tỉ mỉ, toàn bộ không gian đã được bố trí hợp lý, đảm bảo dòng di chuyển thông minh và tiện dụng.
Khu vực trưng bày kính được đặt ở trung tâm, vừa là điểm nhấn vừa giúp khách hàng dễ dàng tiếp cận ngay khi bước vào. Phía sau là phòng đo mắt và khu vực kỹ thuật, được ngăn cách bằng vách kính để vẫn đảm bảo tầm nhìn thoáng.
Sự liên kết giữa các khu vực theo chiều sâu giúp không gian tuy nhỏ nhưng vẫn tạo cảm giác rộng và có chiều hướng mở, đáp ứng tốt nhu cầu vận hành thực tế của phòng khám.
Sau khi hoàn thiện, phòng khám mắt của anh Nguyễn Hữu Đạt mang đến một diện mạo hoàn toàn mới chuyên nghiệp và hiện đại. Không gian được đánh giá cao về tính thẩm mỹ, công năng và sự thoải mái cho cả bác sĩ lẫn khách hàng.
Đặc biệt, thiết kế đã góp phần nâng tầm hình ảnh thương hiệu Kính Mắt Sài Gòn, giúp cơ sở thu hút khách hàng ngay từ ánh nhìn đầu tiên. Việc đầu tư đúng hướng trong cải tạo phòng khám là yếu tố tạo nên uy tín và doanh thu lâu dài.
Dự án thiết kế phòng khám mắt của anh Nguyễn Hữu Đạt tại Thanh Oai, Hà Nội với phong cách thiết kế hiện đại, cách bố trí khoa học đáp ứng đầy đủ tiêu chuẩn y khoa và mang lại trải nghiệm tốt cho khách hàng. Đây là hướng tham khảo hữu ích dành cho những chủ đầu tư để cải tạo không gian kinh doanh đậm dấu ấn thương hiệu cá nhân.







A. PenViet có hệ thống chi nhánh văn phòng và xưởng sản xuất ở nhiều nơi trên toàn quốc, nên giá thành sản phẩm là giá xuất xưởng, cạnh tranh nhằm đảm bảo chất lượng và dịch vụ phục vụ Khách hàng tốt nhất.
A: PenViet cung cấp dịch vụ tới mọi thành phần kinh tế, chúng tôi cung cấp dịch vụ thiết kế, thi công và bán lẻ các mặt hàng nội thất.
- Với các sản phẩm khách hàng đã có bản vẽ 2D hoặc 3D: PenViet sẽ phân tích bản vẽ và báo giá cạnh tranh.
- Với các sản phẩm cần thiết kế chi tiết: PenViet sẽ báo giá từ thiết kế đến thi công.
- Với những khách hàng mua hàng có sẵn với số lượng lớn: vui lòng liên hệ để nhận báo giá cạnh tranh.
- Đối với các Showroom có diện tích trưng bày sản phẩm rộng lớn: PenViet có khung giá phù hợp với ngân sách của khách hàng.