Trong bối cảnh các phòng khám tư nhân ngày càng chú trọng đến hình ảnh chuyên nghiệp và trải nghiệm khách hàng, việc đầu tư vào thiết kế nội thất trở thành yếu tố quyết định thành công. Dự án thiết kế phòng khám Tai Mũi Họng của anh Phạm Văn Vượng tại Quảng Trị, với diện tích khiêm tốn chỉ 39m2 là ví dụ cho cách tối ưu không gian, nâng tầm thương hiệu và gia tăng hiệu quả hoạt động kinh doanh.
Hiện trạng trước thiết kế
.jpg)
.jpg)
.jpg)
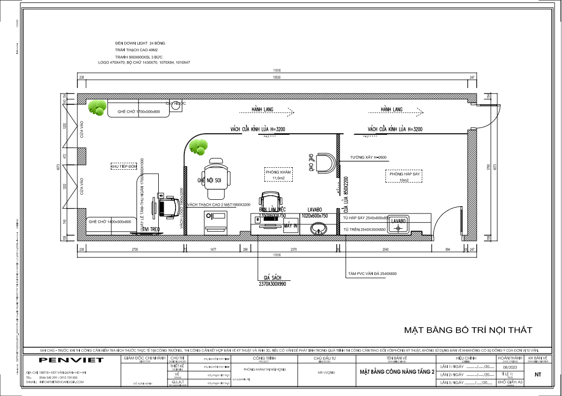
Mặt bằng công năng
.png)
Phòng khám được bố trí trong ngôi nhà phố 3 tầng với mặt tiền mang phong cách tân cổ điển tinh tế. Đây là công trình kết hợp giữa chức năng khám chữa bệnh và không gian sinh hoạt gia đình.
Với tổng diện tích chỉ 39m2, bài toán đặt ra cho đội ngũ thiết kế là làm sao đảm bảo đầy đủ công năng, đáp ứng yêu cầu kỹ thuật y tế, mà vẫn giữ được cảm giác rộng rãi, sạch sẽ và hiện đại.
.jpg)
Từ ngoại thất đến nội thất, mọi chi tiết đều được nghiên cứu kỹ lưỡng, nhằm tạo ra một tổng thể vừa đẹp, vừa tiện nghi, vừa thể hiện được uy tín chuyên môn của phòng khám.
Thông tin dự án
Chủ đầu tư: Anh Phạm Văn Vượng
Địa điểm: Quảng Trị
Diện tích : 39m2
Nội dung: Thiết kế phòng khám Tai Mũi Họng.
Hình ảnh mặt tiền của công trình gây ấn tượng ngay từ cái nhìn đầu tiên. Phong cách tân cổ điển được thể hiện qua các chi tiết phào chỉ, ban công uốn cong nhẹ nhàng, cùng hệ lan can sắt đen tương phản nổi bật trên nền sơn trắng trang nhã.
.jpg)
Dù diện tích xây dựng không lớn, nhưng kiến trúc vẫn tạo cảm giác bề thế nhờ tỷ lệ cân đối và đường nét khỏe khoắn. Từng tầng được phân chia hài hòa, cửa sổ kính lớn giúp đón sáng tự nhiên tối đa, đồng thời tăng khả năng nhận diện cho phòng khám.
Hệ thống đèn tường bố trí ở các trục cột dọc mang lại cảm giác ấm áp, sang trọng khi nhìn từ bên ngoài, đặc biệt khi phòng khám hoạt động vào buổi tối.
Không gian mặt tiền này không chỉ đảm bảo tính thẩm mỹ mà còn góp phần quảng bá thương hiệu.
Với diện tích hạn chế, nhóm thiết kế đã tận dụng tối đa từng mét vuông, phân chia khu vực khoa học để đảm bảo quy trình khám chữa bệnh diễn ra thuận tiện và đúng chuẩn y tế.
.jpg)
.jpg)
Không gian phòng khám gồm các khu vực chính:
Tất cả được sắp xếp liền mạch, giúp dòng di chuyển của bệnh nhân và bác sĩ không bị chồng chéo. Sự khéo léo trong bố trí nội thất giúp phòng vẫn thoáng, dễ vệ sinh, và đáp ứng tiêu chuẩn an toàn cho thiết bị y tế.
Không gian nội thất của thiết kế phòng khám tai mũi họng này có sự phối hợp hài hòa giữa màu trắng tinh khiết và sắc xanh dương nhẹ nhàng. Màu trắng giúp mở rộng không gian, tăng hiệu ứng ánh sáng và tạo cảm giác sạch sẽ. Trong khi đó, màu xanh dương tượng trưng cho sự tin cậy, chuyên nghiệp và an toàn, mang lại cảm giác an tâm cho người bệnh ngay khi bước vào.
.jpg)
Dải sơn ngang màu xanh tím được chạy dọc tường là một chi tiết sáng tạo, vừa có tính nhận diện thương hiệu, vừa giúp phá vỡ sự đơn điệu của nền trắng, tạo hiệu ứng thị giác cân đối.
Khu vực làm việc của bác sĩ được bố trí gọn gàng với bàn làm việc tích hợp hệ tủ lưu trữ, máy tính, máy in và bồn rửa tay tiện lợi. Phía trên là tủ treo tường màu trắng kết hợp gỗ sáng màu, vừa mang tính thẩm mỹ, vừa tối ưu không gian lưu trữ hồ sơ, dụng cụ y tế.
.jpg)
Ghế ngồi và giường khám được lựa chọn đồng bộ tông xanh, thiết kế công thái học, đảm bảo thoải mái cho bệnh nhân và thuận tiện cho bác sĩ thao tác. Sàn lát gạch giả đá vân trắng bóng, phản chiếu ánh sáng tốt, đồng thời dễ dàng lau chùi, vệ sinh là yếu tố bắt buộc trong môi trường khám chữa bệnh.
.jpg)
Hệ thống chiếu sáng được tính toán kỹ, sử dụng đèn LED âm trần ánh sáng trung tính, giúp hạn chế chói mắt nhưng vẫn đủ sáng cho quá trình khám chữa. Bên cạnh đó, cửa sổ kính lớn và hệ thống điều hòa âm trần giúp không gian luôn thoáng mát, dễ chịu, giữ chất lượng không khí ổn định suốt ngày dài. Nhờ cách bố trí hợp lý này, phòng khám không chỉ đáp ứng công năng y tế mà còn tạo cảm giác thư giãn cho bệnh nhân, giúp họ giảm bớt lo lắng khi thăm khám.
Một trong những ưu điểm nổi bật của dự án là khả năng dung hòa giữa công năng y tế và tính thẩm mỹ. Đội ngũ thiết kế đã khéo léo chọn những chi tiết hiện đại, ít chiếm diện tích, nhưng vẫn đáp ứng đầy đủ tiêu chuẩn kỹ thuật.
.jpg)
.jpg)
Những chi tiết tưởng chừng đơn giản nhưng góp phần tạo nên một tổng thể phòng khám nhỏ mà không hề chật chội, vừa đủ riêng tư, vừa mở thoáng.
Đối với các phòng khám tư nhân, thiết kế nội thất không chỉ là làm đẹp mà còn là công cụ truyền thông thương hiệu hiệu quả. Với dự án của anh Vượng, việc lựa chọn phong cách thiết kế tối giản hiện đại giúp xây dựng hình ảnh phòng khám chuyên nghiệp, uy tín, phù hợp với định hướng phát triển lâu dài.
Màu sắc đồng bộ, hệ thống chiếu sáng hợp lý, bố trí khoa học giúp bệnh nhân cảm nhận sự chăm chút và tận tâm. Đây chính là yếu tố gián tiếp củng cố niềm tin của khách hàng, đồng thời nâng cao hiệu quả hoạt động của phòng khám.
Toàn bộ vật liệu được lựa chọn dựa trên tiêu chí:
Chống ẩm, dễ vệ sinh, an toàn y tế
Màu sắc trung tính, tạo cảm giác sạch sẽ
Độ bền cao, phù hợp với tần suất sử dụng lớn
Tủ và bàn làm việc sử dụng gỗ công nghiệp phủ Melamine cao cấp, chịu nước, dễ lau chùi. Sàn gạch vân đá sáng bóng giúp phản chiếu ánh sáng tự nhiên, đồng thời tăng cảm giác rộng cho phòng. Các thiết bị y tế được bố trí trên hệ khung di động, dễ dàng bảo trì, di chuyển khi cần thiết.
Dự án thiết kế phòng khám Tai Mũi Họng của anh Phạm Văn Vượng thể hiện tinh thần “nhỏ mà tinh tế”, nơi mọi chi tiết đều có lý do tồn tại. Không chỉ đáp ứng tiêu chuẩn y tế, phòng khám còn mang đến trải nghiệm thị giác và cảm xúc tích cực cho cả bác sĩ lẫn bệnh nhân.
Tông màu dịu nhẹ, ánh sáng ấm áp, không khí trong lành, tất cả kết hợp hài hòa để tạo nên một không gian chuyên nghiệp nhưng không lạnh lẽo. Đây chính là xu hướng thiết kế phòng khám hiện đại.
Dự án thiết kế phòng khám Tai Mũi Họng của anh Phạm Văn Vượng tại Quảng Trị tuy có không gian nhỏ nhưng vẫn dễ dàng trở nên hiện đại, tiện nghi và chuyên nghiệp nếu được cải tạo đúng cách. Từ kiến trúc tân cổ điển bên ngoài đến nội thất hiện đại bên trong, công trình thể hiện sự đầu tư nghiêm túc và tầm nhìn của chủ đầu tư. Đây là gợi ý hoàn hảo cho các bác sĩ, nhà đầu tư đang tìm kiếm giải pháp cải tạo hoặc mở mới phòng khám.







A. PenViet có hệ thống chi nhánh văn phòng và xưởng sản xuất ở nhiều nơi trên toàn quốc, nên giá thành sản phẩm là giá xuất xưởng, cạnh tranh nhằm đảm bảo chất lượng và dịch vụ phục vụ Khách hàng tốt nhất.
A: PenViet cung cấp dịch vụ tới mọi thành phần kinh tế, chúng tôi cung cấp dịch vụ thiết kế, thi công và bán lẻ các mặt hàng nội thất.
- Với các sản phẩm khách hàng đã có bản vẽ 2D hoặc 3D: PenViet sẽ phân tích bản vẽ và báo giá cạnh tranh.
- Với các sản phẩm cần thiết kế chi tiết: PenViet sẽ báo giá từ thiết kế đến thi công.
- Với những khách hàng mua hàng có sẵn với số lượng lớn: vui lòng liên hệ để nhận báo giá cạnh tranh.
- Đối với các Showroom có diện tích trưng bày sản phẩm rộng lớn: PenViet có khung giá phù hợp với ngân sách của khách hàng.